
3 bedroom terraced house for sale
East View, Settle, North Yorkshire, BD24

- PROPERTY TYPE
Terraced
- BEDROOMS
3
- BATHROOMS
2
- SIZE
1,301 sq ft
121 sq m
- TENUREDescribes how you own a property. There are different types of tenure - freehold, leasehold, and commonhold.Read more about tenure in our glossary page.
Freehold
Key features
- No onward chain
- Generous living/dining area
- Multi fuel stove
- Superb master bedroom with en suite
- Splendid garden and off street parking
- Railway station close by with direct trains to Leeds
- Excellent Primary and Secondary schools close by
Description
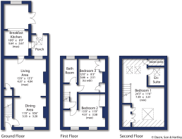
The property briefly comprises entrance vestibule, good size living/dining room with attractive fireplace housing multi fuel stove. To the rear is a breakfast kitchen fitted with a range of wall and base units, including gas oven and hob and space for a fridge/freezer, dishwasher and washing machine.
To the first floor are two good size bedrooms, the bedroom at the front of the property is a particularly good size with fitted cupboards and the bedroom to the rear also benefits from fitted cupboards. There is a contemporary house bathroom with shower over bath, wall mounted wash hand basin and wc. To the second floor is an impressive master suite being open plan with its own en suite shower room. There are two Velux windows offering superb views.
Externally the property has a low maintenance front garden. To the rear is off street parking and an enclosed garden with decked seating area and lawned garden. There is a timber shed in the garden for storage.
The market town of Settle borders the Yorkshire Dales National Park and offers a varied range of amenities including a Market Place with a colourful ‘Tuesday’ market. A railway station on the famous Settle to Carlisle line offers commuter links to Leeds and Bradford. Settle is also well located for commuting to North and West Yorkshire, and the East Lancashire business centres as well as the northern motorway network. Schools include a primary and college, as well as a highly regarded public school in the neighbouring village of Giggleswick. Settle has a medical centre, swimming pool, library, golf club and a wide range of recreational facilities, lovely open countryside is on the doorstep.
Services
Mains electricity, gas, drainage and water are installed. Domestic heating is from a gas fired boiler.
Parking
Private parking area to the rear
Tenure
Freehold
Council Tax
Band C
Internet & Mobile Coverage
The Ofcom website shows internet available from at least 1 provider. Outdoor mobile coverage (excl 5G) likely from at least 1 of the UK’s 4 main providers. Results are predictions not a guarantee & may differ subject to circumstances, exact location & network outages.
Flooding
Check for flooding in England - GOV.UK indicate the long term flood risks for this property are: - Surface Water - Very low; Rivers & the Sea - Very low; Groundwater - Flooding from groundwater is unlikely in this area; Reservoir - Flooding from reservoirs is unlikely in this area.
Leave the Market Place in the direction of Skipton along Duke Street. The property is located on the right hand side approximately quarter of a mile from the Market Place.
Brochures
Particulars- COUNCIL TAXA payment made to your local authority in order to pay for local services like schools, libraries, and refuse collection. The amount you pay depends on the value of the property.Read more about council Tax in our glossary page.
- Band: C
- PARKINGDetails of how and where vehicles can be parked, and any associated costs.Read more about parking in our glossary page.
- Yes
- GARDENA property has access to an outdoor space, which could be private or shared.
- Yes
- ACCESSIBILITYHow a property has been adapted to meet the needs of vulnerable or disabled individuals.Read more about accessibility in our glossary page.
- Ask agent
East View, Settle, North Yorkshire, BD24
Add an important place to see how long it'd take to get there from our property listings.
__mins driving to your place
Get an instant, personalised result:
- Show sellers you’re serious
- Secure viewings faster with agents
- No impact on your credit score
Your mortgage
Notes
Staying secure when looking for property
Ensure you're up to date with our latest advice on how to avoid fraud or scams when looking for property online.
Visit our security centre to find out moreDisclaimer - Property reference SET240243. The information displayed about this property comprises a property advertisement. Rightmove.co.uk makes no warranty as to the accuracy or completeness of the advertisement or any linked or associated information, and Rightmove has no control over the content. This property advertisement does not constitute property particulars. The information is provided and maintained by Dacre Son & Hartley, Settle. Please contact the selling agent or developer directly to obtain any information which may be available under the terms of The Energy Performance of Buildings (Certificates and Inspections) (England and Wales) Regulations 2007 or the Home Report if in relation to a residential property in Scotland.
*This is the average speed from the provider with the fastest broadband package available at this postcode. The average speed displayed is based on the download speeds of at least 50% of customers at peak time (8pm to 10pm). Fibre/cable services at the postcode are subject to availability and may differ between properties within a postcode. Speeds can be affected by a range of technical and environmental factors. The speed at the property may be lower than that listed above. You can check the estimated speed and confirm availability to a property prior to purchasing on the broadband provider's website. Providers may increase charges. The information is provided and maintained by Decision Technologies Limited. **This is indicative only and based on a 2-person household with multiple devices and simultaneous usage. Broadband performance is affected by multiple factors including number of occupants and devices, simultaneous usage, router range etc. For more information speak to your broadband provider.
Map data ©OpenStreetMap contributors.






