
Plot for sale
Pimperne, Blandford Forum, Dorset, DT11
- PROPERTY TYPE
Plot
- SIZE
Ask agent
Key features
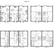
- Development plot for 6 dwellings
- Full Planning Permission
- Village location
- Cranborne Chase
Description
Planning permission has been granted for 6 dwellings. Plots 1-3 have flexibility to be
either 2 bedrooms / 2 baths or 3 bedrooms / 1 bath with either a kitchen / diner and
sitting room , sitting / dining room with separate kitchen. Plots 4-5 are three bedrooms,
again with a flexible ground floor layout as desired.
Plot 6 is detached with 3 bedrooms, 2 bathrooms and a kitchen / diner opening onto
the garden, a utility and separate living room.
Full planning details can be found on the Dorset Planning Portal under reference
P/FUL/2021/05709.
OUTSIDE
The approved design will have Plots 1-5 set back from the main road. All will benefit
from two allocated parking spaces immediately in front of each property and an
enclosed rear garden with access gate.
Plot 6 will share a drive with 2 existing properties and enjoy three allocated parking
spaces and a south facing garden.
SITUATION
Pimperne is a small village situated in the Cranborne Chase AONB, north east of the Georgian town of Blandford. The village is blessed with a great community spirit with a thriving primary school, a well attended church and numerous clubs and associations within the village. There is also a very active Sports Society, including a village cricket team and football squad, and a well used sports field. There are two well regarded pubs within the village. Communications are good with the A354 running from Salisbury to Weymouth allowing for bus services to both destinations and the A350 (2 miles) leading north to the A303 and M3. Blandford offers all every day amenities whilst Salisbury and Bournemouth offer more in the way of retail outlets. The area is well know for the choice of good state and private primary and secondary schools. Leisure activities are well catered for will leisure centres, running clubs, football, rugby and golf clubs in the area.
SERVICES
No services are connected to the site but connections can be made close by.
NOTE: The site can be sold in two lots with Plots 1-5 together or Plot 6 alone. Please ask for more information.
DIRECTIONS
Post Code DT11 8TX
What3words/// aviation.powering.bubbles
From Shaftesbury travel south on the A350. On arriving at Blandford continue straight at the first roundabout then take the first exit at the second roundabout. On arriving at Pimperne, turn first right onto Yarde Lane and the property is the first on the left.
Pimperne, Blandford Forum, Dorset, DT11
NEAREST STATIONS
Distances are straight line measurements from the centre of the postcode- Hamworthy Station11.8 miles



Notes
Disclaimer - Property reference SHA250176. The information displayed about this property comprises a property advertisement. Rightmove.co.uk makes no warranty as to the accuracy or completeness of the advertisement or any linked or associated information, and Rightmove has no control over the content. This property advertisement does not constitute property particulars. The information is provided and maintained by Woolley & Wallis, Shaftesbury. Please contact the selling agent or developer directly to obtain any information which may be available under the terms of The Energy Performance of Buildings (Certificates and Inspections) (England and Wales) Regulations 2007 or the Home Report if in relation to a residential property in Scotland.
Map data ©OpenStreetMap contributors.







