Briscoe Way, Lakenheath, Suffolk, IP279SA

- PROPERTY TYPE
Detached
- BEDROOMS
3
- BATHROOMS
2
- SIZE
Ask developer
- TENUREDescribes how you own a property. There are different types of tenure - freehold, leasehold, and commonhold.Read more about tenure in our glossary page.
Freehold
Key features
- Eco-Friendly & Energy Efficient
- Premium Features & Highly Specified Throughout
- Bosch Oven, Hob & Dishwasher
- Porcelanosa Ceramic Tiling
- LED Downlights to Kitchen, Bathroom & En suite
- En suite & Fitted Wardrobe to Master Bedroom
- Air Source Heat Pump
- Underfloor Heating to Ground Floor
- Garage & Additional Parking
- EV Fast Charger
Description
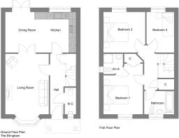
Offering a superb layout, the Ellingham is a three bedroom detached home with spacious accommodation and a high specification throughout. The open-plan kitchen/dining area boasts a range of stylish units and worktops and includes integrated Bosch oven, hob & dishwasher, Porcelanosa ceramic floor tiles, LED downlights and under unit lighting. French doors provide direct access to the enclosed rear garden.
From the dining area, glazed double doors flow into the bay fronted living room and the clever alignment of the glazed doors with the French doors draws in an abundance of natural light. Along the hall you'll find a downstairs WC, further storage and an oak hand-railed staircase leading to the first floor.
Upstairs, the master bedroom benefits from an ensuite and fitted storage. Two further bedrooms, another double and a single, provide space for family or guests. There is also the flexibility of utilising one as an ideal home officeif required.
The family bathroom is off of the landing and, along with the ensuite, is furnished with modern Roper Rhodes fittings, chrome-finish taps, and includes LED downlights and Porcelanosa ceramic wall tiles.
Energy efficient heating is supplied by an air source heat pump which distributes warmth around the home via cosy underfloor heating on the ground floor and thermostatic valve radiators upstairs.
Outside there is a garage, EV fast charger, space for additional parking and private gardens to the front and rear.
Room Dimensions
Ground Floor
- Kitchen/Dining Area: 5.72m x 3.25m
- Living Room (Exc Bay): 4.87m x 3.50m
First Floor
- Master Bedroom: 4.08m x 3.19m
- Bedroom 2: 3.38m x 3.27m
- Bedroom 3: 3.27m x 2.22m
Council Tax Band: Yet to be determined
Annual Residents Management Company maintenance fee: Estimated £195.00
Visiting Cornfields
Our Sales Office and interior designed Show Home is open Thursday through to Monday, 10.00am - 5.00pm when our Home Adviser will be there to welcome you. Please note that the Sales Office will be closed on Sunday 1st March 2026.
About Cornfields
Cornfields offers an exclusive range of homes from two-bedroom bungalows to five-bedroom houses, each meticulously crafted by skilled craftsmen. These traditional built homes boast exceptional build quality and eco-credentials, ensuring energy efficiency throughout. Every home boasts premium features, low maintenance and superb specifications so, at whatever stage you are at, at Cornfields you will find the perfect home to complement your lifestyle.
Lakenheath offers a perfect rural retreat with essential amenities close by. After a brief stroll you will come to the High Street, where you will discover a variety of shops including a local Co-op, traditional pubs, restaurants and essential services such as a pharmacy and post office.
Local schools include Lakenheath Community Primary School and Lakenheath High School.
Enjoying excellent connectivity with major road networks like the A10, A11, and A14, and with the advantage of Lakenheath's own train station, the nearby cities of Cambridge, Ely & Norwich, and towns such as Bury St Edmunds, Thetford and Mildenhall are all within easy reach - making Cornfields an attractive, welcoming and convenient place to come home to.
Disclaimers
All photography and images are illustrative examples only. Internal photographs are indicative of typical homes by Bennett Homes and often depict rooms from an alternative property type, style or angle. Maximum dimensions are shown on all properties. Room dimensions and layouts may vary. All details are subject to change. Terms & Conditions apply to all any Offers & Incentives where applicable.
- COUNCIL TAXA payment made to your local authority in order to pay for local services like schools, libraries, and refuse collection. The amount you pay depends on the value of the property.Read more about council Tax in our glossary page.
- Ask developer
- PARKINGDetails of how and where vehicles can be parked, and any associated costs.Read more about parking in our glossary page.
- Garage,Driveway,Private
- GARDENA property has access to an outdoor space, which could be private or shared.
- Front garden,Private garden,Enclosed garden,Rear garden,Back garden
- ACCESSIBILITYHow a property has been adapted to meet the needs of vulnerable or disabled individuals.Read more about accessibility in our glossary page.
- Ask developer
Briscoe Way, Lakenheath, Suffolk, IP279SA
Add an important place to see how long it'd take to get there from our property listings.
__mins driving to your place
Get an instant, personalised result:
- Show sellers you’re serious
- Secure viewings faster with agents
- No impact on your credit score
Development features
- Traditionally crafted homes boasting exceptional build quality and superb eco-credentials, ensuring energy efficiency alongside a very high specification with premium fittings throughout.
- Two & Three Bedroom Bungalows and Three, Four & Five Bedroom Family Homes
- Excellent road & rail connectivity across East Anglia with Cambridge & Bury St Edmunds easily accessible.
- Vibrant village boasting convenient amenities and facilities including pharmacy, shops, schools and sports & leisure clubs
About Bennett Homes
Escape to a place where countryside charm meets modern living at Cornfields, Lakenheath. Discover a collection of beautifully designed homes tailored for modern life, all nestled in the picturesque landscape of Suffolk.
Cornfields offers an exclusive range of homes from two-bedroom bungalows to five-bedroom houses, each meticulously crafted by skilled craftsmen. These traditionally built homes boast exceptional build quality and eco-credentials, ensuring energy efficiency alongside a very high specification with premium fittings throughout. Designed to cater to everyone, from first-time buyers to growing families and retirees, these homes perfectly complement modern living.
Lakenheath offers a perfect rural retreat with essential amenities close by. Within a short drive, you'll find shops, services, restaurants, a pub, church, doctor's surgery, and primary schools. Additionally, the local Sports Pavilion alongside the playing fields enhances community life with sports and leisure facilities, complementing the existing football and cricket clubs.
Lakenheath also boasts a railway station approximately 2 miles from the centre of the village.
The village is approximately 5 miles from Mildenhall, 6 miles from Brandon and 12 miles from Thetford where a wider range of services and facilities can be found.
Via the A14 it is easy to access Newmarket to the south, Cambridge to the west and Bury St Edmunds to the east with ease. The nearby towns of Ely and Bury St Edmunds are both approximately 15 miles away.
Your mortgage
Notes
Staying secure when looking for property
Ensure you're up to date with our latest advice on how to avoid fraud or scams when looking for property online.
Visit our security centre to find out moreDisclaimer - Property reference Plot54TheEllingham. The information displayed about this property comprises a property advertisement. Rightmove.co.uk makes no warranty as to the accuracy or completeness of the advertisement or any linked or associated information, and Rightmove has no control over the content. This property advertisement does not constitute property particulars. The information is provided and maintained by Bennett Homes. Please contact the selling agent or developer directly to obtain any information which may be available under the terms of The Energy Performance of Buildings (Certificates and Inspections) (England and Wales) Regulations 2007 or the Home Report if in relation to a residential property in Scotland.
*This is the average speed from the provider with the fastest broadband package available at this postcode. The average speed displayed is based on the download speeds of at least 50% of customers at peak time (8pm to 10pm). Fibre/cable services at the postcode are subject to availability and may differ between properties within a postcode. Speeds can be affected by a range of technical and environmental factors. The speed at the property may be lower than that listed above. You can check the estimated speed and confirm availability to a property prior to purchasing on the broadband provider's website. Providers may increase charges. The information is provided and maintained by Decision Technologies Limited. **This is indicative only and based on a 2-person household with multiple devices and simultaneous usage. Broadband performance is affected by multiple factors including number of occupants and devices, simultaneous usage, router range etc. For more information speak to your broadband provider.
Map data ©OpenStreetMap contributors.




