
3 bedroom detached bungalow for sale
Old Chapel Lane, Underwood, Nottingham

- PROPERTY TYPE
Detached Bungalow
- BEDROOMS
3
- BATHROOMS
1
- SIZE
Ask agent
- TENUREDescribes how you own a property. There are different types of tenure - freehold, leasehold, and commonhold.Read more about tenure in our glossary page.
Freehold
Key features
- Detached Bungalow
- Three Bedrooms
- Double Glazing & Electric Storage Heating
- Conservatory
- Driveway & Garage
Description
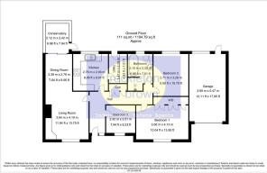
Entrance Hall 3.68m (12'1") x 1.47m (4'10")
With door, coving to ceiling and wall mounted storage heaters, with doors to lounge, utility room, kitchen, three bedrooms and family bathroom
Lounge 4.60m (15'1") x 3.61m (11'10")
With double glazed window to front elevation, coving to ceiling, stone built fire surround with electric fire, wall lights, archway leading through to the dining room
Dining Room 3.02m (9'11") x 2.39m (7'10")
With coving to ceiling, patio doors leading out to the conservatory
Conservatory 2.46m (8'1") x 2.34m (7'8")
A double glazed conservatory with door leading out to the rear garden
Kitchen 2.95m (9'8") x 2.95m (9'8")
With a range of matching base and wall units with roll edge work surfaces over have built in extractor hood, and space for cooker, one and a half bowl single drainer sink unit, tiled splashbacks, space for under counter fridge, double glazed window to rear elevation, door to the utility room
Utility Room 2.46m (8'1") x 1.47m (4'10")
With space and plumbing for washing machine and dishwasher, tiled splashbacks, tiled flooring and double glazed door leading to outside
Bedroom One 4.11m (13'6") x 4.01m (13'2")
With double glazed window to front elevation, coving to ceiling, wall mounted storage heater
Bedroom Two 3.45m (11'4") x 2.69m (8'10")
With double glazed window to rear elevation, wall mounted storage heater
Bedroom Three 2.51m (8'3") x 2.46m (8'1")
With double glazed window to front elevation
Family Bathroom 2.34m (7'8") x 2.08m (6'10")
With panelled bath, wash hand basin, low flush wc and separate walk in shower cubicle, having fully tiled walls and opaque double glazed window
Front Garden
The front is of a good sized being mainly laid to lawn with mature plants and shrubs with large sweeping brick paved driveway providing ample off street parking, access to the garage and rear garden
Garage 5.61m (18'5") x 3.07m (10'1")
With up and over door to front, door leading out to the rear garden. The garage has power and lights.
Rear Garden
The rear garden is of a good size being mainly laid to lawn with mature plants, shrubs and trees enclosed by mature hedgerows
Brochures
Full Property Details- COUNCIL TAXA payment made to your local authority in order to pay for local services like schools, libraries, and refuse collection. The amount you pay depends on the value of the property.Read more about council Tax in our glossary page.
- Ask agent
- PARKINGDetails of how and where vehicles can be parked, and any associated costs.Read more about parking in our glossary page.
- Yes
- GARDENA property has access to an outdoor space, which could be private or shared.
- Yes
- ACCESSIBILITYHow a property has been adapted to meet the needs of vulnerable or disabled individuals.Read more about accessibility in our glossary page.
- Ask agent
Old Chapel Lane, Underwood, Nottingham
Add an important place to see how long it'd take to get there from our property listings.
__mins driving to your place
Get an instant, personalised result:
- Show sellers you’re serious
- Secure viewings faster with agents
- No impact on your credit score
Your mortgage
Notes
Staying secure when looking for property
Ensure you're up to date with our latest advice on how to avoid fraud or scams when looking for property online.
Visit our security centre to find out moreDisclaimer - Property reference FRE1EW2169. The information displayed about this property comprises a property advertisement. Rightmove.co.uk makes no warranty as to the accuracy or completeness of the advertisement or any linked or associated information, and Rightmove has no control over the content. This property advertisement does not constitute property particulars. The information is provided and maintained by Freckleton Brown, Eastwood. Please contact the selling agent or developer directly to obtain any information which may be available under the terms of The Energy Performance of Buildings (Certificates and Inspections) (England and Wales) Regulations 2007 or the Home Report if in relation to a residential property in Scotland.
*This is the average speed from the provider with the fastest broadband package available at this postcode. The average speed displayed is based on the download speeds of at least 50% of customers at peak time (8pm to 10pm). Fibre/cable services at the postcode are subject to availability and may differ between properties within a postcode. Speeds can be affected by a range of technical and environmental factors. The speed at the property may be lower than that listed above. You can check the estimated speed and confirm availability to a property prior to purchasing on the broadband provider's website. Providers may increase charges. The information is provided and maintained by Decision Technologies Limited. **This is indicative only and based on a 2-person household with multiple devices and simultaneous usage. Broadband performance is affected by multiple factors including number of occupants and devices, simultaneous usage, router range etc. For more information speak to your broadband provider.
Map data ©OpenStreetMap contributors.








