Corfe Crescent, Hazel Grove, Stockport SK7 5PR

- PROPERTY TYPE
Semi-Detached
- BEDROOMS
4
- BATHROOMS
1
- SIZE
Ask agent
- TENUREDescribes how you own a property. There are different types of tenure - freehold, leasehold, and commonhold.Read more about tenure in our glossary page.
Freehold
Description
SUMMARY:
Well appointed and extended four bed semi-detached enjoying good size corner plot backing onto sports field. Situated on the fringe of this ever popular residential development; close to schools, shops and bus routes, with just a short walk to village centre and railway station. Good road and rail links. GFCH, double glazing, alarm. Briefly comprises: entrance hall, cloakroom/wc, interconnecting sitting room, dining room and conservatory, contemporary fitted breakfast kitchen, utility room, four bedrooms and contemporary shower room/wc. Detached garage to the rear. Corner plot with easily managed landscaped gardens to three sides.
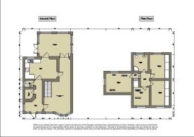
GROUND FLOOR
ENTRANCE HALL
13' 2" x 7' 9" (4.01m x 2.36m) max. including cloakroom/wc and utility room. Double glazed windows and front door, radiator, ceiling downlighters, wood laminate flooring, light oak panelled doors to all rooms, .
CLOAKROOM/WC
Contemporary suite of low level wc, wash hand basin, tiled floor, chrome radiator/towel warmer.
SITTING ROOM
16' 6" x 13' (5.03m x 3.96m) max. Double glazed bow window, smaller double glazed window, wall mounted electric fire, cornice, radiator, wood laminate flooring, staircase to first floor, understairs cupboard, squared opening to dining room.
DINING ROOM
11' 10" x 8' 10" (3.61m x 2.69m) max. Radiator, cornice, ceiling downlighters, wood laminate flooring, double glazed double doors to conservatory.
CONSERVATORY
16' 2" x 11' 5" (4.93m x 3.48m) max. Double glazed windows and double doors, vertical blinds, radiator, ceiling pendant fanlight, wood laminate flooring.
BREAKFAST KITCHEN
16' 2" x 10' (4.93m x 3.05m) max. Contemporary fitted base and wall cabinets incorporating granite work surfaces with wall tiled backs, one and a half bowl inset stainless steel sink unit with mixer tap, recess (for range cooker) with extractor hood over, integral dishwasher, radiator, ceiling downlighters, 2 double glazed windows and double glazed door to conservatory and rear.
UTILITY ROOM
Base cupboards, work surface, plumbed for automatic washing machine, ceiling downlighters, wall mounted gas combination boiler.
FIRST FLOOR
LANDING
Staircase balustrade, access to loft space (with fold-down ladder, part boarded and electric light), light oak doors to all rooms, double glazed window.
BEDROOM 1 (FRONT)
12' 8" x 9' 10" (3.86m x 3m) max. Fitted wardrobes, cupboards and dresser, double glazed window, radiator.
BEDROOM 2 (REAR)
9' 10" x 8' 9" (3m x 2.67m) max. Fitted wardrobes, double glazed window, radiator, cornice.
BEDROOM 3 (FRONT)
9' 4" x 6' 6" (2.84m x 1.98m) max. Fitted bulkhead cupboard, double glazed window, radiator, cornice.
BEDROOM 4 OR STUDY (SIDE)
10' x 7' 9" (3.05m x 2.36m) max. Into eaves, double glazed window and double glazed Velux skylight, radiator.
SHOWER ROOM/WC
6' 8" x 6' 4" (2.03m x 1.93m) max. Contemporary suite of walk-in shower, wash hand basin, low level wc, double glazed window, ceiling downlighters, cornice, chrome towel warmer/radiator, tiled walls and floor.
OUTSIDE
GARAGE
Detached concrete section garage to rear (with vehicular access off Stokesay Drive) with up and over door, power and light.
GARDENS
Corner plot with easily managed hard landscaped gardens to three sides. 'No-mow' lawns to three sides with planted borders, Indian stone pathways and patio. Attractive high walled boundary to side with wrought iron gate. Cold water tap, nightlighting. Hardstanding to rear.
TENURE:
We have been advised by the present owner that the property is Freehold. We would recommend that your conveyancer checks the tenure prior to the exchange of contracts.
COUNCIL TAX:
We are advised that the Council Tax band is C. All enquiries to Stockport MBC.
ENERGY PERFORMANCE CERTIFICATE:
The Energy Efficiency Rating is band C. Further information is available on request and online.
VIEWING:
Strictly by appointment through Woodhall Properties
OPENING HOURS:
Monday - Thursday 9.00am – 5.30pm, Friday 9.00am – 5.00pm, Saturday 9.00am – 4.00pm and Sunday 12.00pm – 4.00pm.
- COUNCIL TAXA payment made to your local authority in order to pay for local services like schools, libraries, and refuse collection. The amount you pay depends on the value of the property.Read more about council Tax in our glossary page.
- Band: C
- PARKINGDetails of how and where vehicles can be parked, and any associated costs.Read more about parking in our glossary page.
- Yes
- GARDENA property has access to an outdoor space, which could be private or shared.
- Yes
- ACCESSIBILITYHow a property has been adapted to meet the needs of vulnerable or disabled individuals.Read more about accessibility in our glossary page.
- Ask agent
Corfe Crescent, Hazel Grove, Stockport SK7 5PR
Add an important place to see how long it'd take to get there from our property listings.
__mins driving to your place
Get an instant, personalised result:
- Show sellers you’re serious
- Secure viewings faster with agents
- No impact on your credit score


Your mortgage
Notes
Staying secure when looking for property
Ensure you're up to date with our latest advice on how to avoid fraud or scams when looking for property online.
Visit our security centre to find out moreDisclaimer - Property reference S1339435. The information displayed about this property comprises a property advertisement. Rightmove.co.uk makes no warranty as to the accuracy or completeness of the advertisement or any linked or associated information, and Rightmove has no control over the content. This property advertisement does not constitute property particulars. The information is provided and maintained by Woodhall Properties, Hazel Grove. Please contact the selling agent or developer directly to obtain any information which may be available under the terms of The Energy Performance of Buildings (Certificates and Inspections) (England and Wales) Regulations 2007 or the Home Report if in relation to a residential property in Scotland.
*This is the average speed from the provider with the fastest broadband package available at this postcode. The average speed displayed is based on the download speeds of at least 50% of customers at peak time (8pm to 10pm). Fibre/cable services at the postcode are subject to availability and may differ between properties within a postcode. Speeds can be affected by a range of technical and environmental factors. The speed at the property may be lower than that listed above. You can check the estimated speed and confirm availability to a property prior to purchasing on the broadband provider's website. Providers may increase charges. The information is provided and maintained by Decision Technologies Limited. **This is indicative only and based on a 2-person household with multiple devices and simultaneous usage. Broadband performance is affected by multiple factors including number of occupants and devices, simultaneous usage, router range etc. For more information speak to your broadband provider.
Map data ©OpenStreetMap contributors.




