Skip to content
Get brand editions for The Norfolk Agents, Kings Lynn

Two Building Plots, Gayton Road, King's Lynn

Guide Price
£300,000
The Norfolk Agents, Kings Lynn
PROPERTY TYPE

Plot

SIZE

Ask agent

Key features

  • SUPERB DEVELOPMENT OPPORTUNITY
  • PLANNING PERMISSION TO CONSTRUCT TWO 4-BEDROOM FAMILY HOMES
  • MATURE 0.35 ACRES SITE
  • CLOSE TO THE HOSPITAL & TOWN CENTRE
  • IMMEDIATE 'EXCHANGE OF CONTRACTS' AVAILABLE
  • INVESTMENT OPPOTUNITY

Description

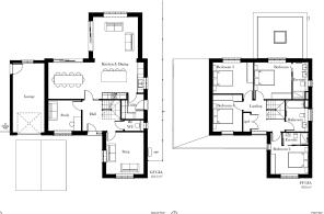
The Norfolk Agents are delighted to offer this superb development opportunity, comprising a mature 0.35 acre (stms) site with planning consent for the construction of two new family homes. The mature plot, which has its own private driveway, is located on the highly sought after Gayton Road, less than a mile from the QE Hospital and only a short drive or bus journey into the town centre. The permission includes the demolition of an existing dwelling, which will be replaced by two spacious 4-bedroom executive style houses with garages. 

The new properties are of a contemporary design and have been arranged to offer bright and spacious living accommodation over two floors. This will include an open-plan kitchen/dining/living space, a separate snug, study and utility room on the ground floor, with four bedrooms upstairs (two of which are en-suite) along with the family bathroom. There is also an attached single garage.

For more information relating to the planning consent, please visit the KL & WN planning website and use the reference: 24/01549/F

SERVICES
We understand that there are connections to mains utilities already available on the site.

AGENTS NOTE
The site is subject to a community infrastructure levy (CIL) charge.

EPC RATING: C

COUNCIL TAX BAND: D

TENURE
Freehold

Pattinson Auction are working in Partnership with the marketing agent on this online auction sale and are referred to below as 'The Auctioneer'.

This auction lot is being sold either under conditional (Modern) or unconditional (Traditional) auction terms and overseen by the auctioneer in partnership with the marketing agent.

The property is available to be viewed strictly by appointment only via the Marketing Agent or The Auctioneer. Bids can be made via the Marketing Agents or via The Auctioneers website.

Please be aware that any enquiry, bid or viewing of the subject property will require your details being shared between both any marketing agent and The Auctioneer in order that all matters can be dealt with effectively.

The property is being sold via a transparent online auction.
In order to submit a bid upon any property being marketed by The Auctioneer, all bidders/buyers will be required to adhere to a verification of identity process in accordance with Anti Money Laundering procedures. Bids can be submitted at any time and from anywhere.
Our verification process is in place to ensure that AML procedure are carried out in accordance with the law.

The advertised price is commonly referred to as a ‘Starting Bid’ or ‘Guide Price’ and is accompanied by a ‘Reserve Price’. The ‘Reserve Price’ is confidential to the seller and the auctioneer and will typically be within a range above or below 10% of the ‘Guide Price’ / ‘Starting Bid’.
These prices are subject to change.

An auction can be closed at any time with the auctioneer permitting for the property (the lot) to be sold prior to the end of the auction.

A Legal Pack associated with this particular property is available to view upon request and contains details relevant to the legal documentation enabling all interested parties to make an informed decision prior to bidding. The Legal Pack will also outline the buyers’ obligations and sellers’ commitments. It is strongly advised that you seek the counsel of a solicitor prior to proceeding with any property and/or Land Title purchase.

Auctioneers Additional Comments
In order to secure the property and ensure commitment from the seller, upon exchange of contracts the successful bidder will be expected to pay a non-refundable deposit equivalent to 5% of the purchase price of the property. The deposit will be a contribution to the purchase price. A non-refundable reservation fee of up to 6% inc VAT (subject to a minimum of £7,200 inc VAT) is also required to be paid upon agreement of sale. The Reservation Fee is in addition to the agreed purchase price and consideration should be made by the purchaser in relation to any Stamp Duty Land Tax liability associated with overall purchase costs.

Both the Marketing Agent and The Auctioneer may believe necessary or beneficial to the customer to pass their details to third party service suppliers, from which a referral fee may be obtained. There is no requirement or indeed obligation to use these recommended suppliers or services.


1. Purchasers will be asked to produce ID to satisfy money laundering regulations and we would ask for your co-operation in providing the relevant documentation.
2. While we endeavour to make our sales details fair, accurate and reliable, they are only a general guide to the property. If there is any point which is of particular importance to you, please contact the office and we will be pleased to make further investigations.
3. The measurements indicated are supplied for guidance only.
4. Please note we have not tested the services or any of the equipment or appliances in this property. We strongly advise prospective buyers to commission their own survey or service reports before finalising their offer to purchase.
5. THESE PARTICULARS ARE ISSUED IN GOOD FAITH BUT DO NOT FORM PART OF ANY OFFER OR CONTRACT. THE MATTERS REFERRED TO IN THESE PARTICULARS SHOULD BE INDEPENDENTLY VERIFIED BY PROSPECTIVE BUYERS OR TENANTS. THE NORFOLK AGENTS LIMITED NOR ANY OF ITS EMPLOYEES HAS ANY AUTHORITY TO MAKE OR GIVE ANY REPRESENTATION OR WARRANTY WHATEVER IN RELATION TO THIS PROPERTY.

Two Building Plots, Gayton Road, King's Lynn

NEAREST STATIONS

Distances are straight line measurements from the centre of the postcode
  • Kings Lynn Station1.0 miles
Get brand editions for The Norfolk Agents, Kings Lynn

About The Norfolk Agents, Kings Lynn

17 Blackfriars Street, King's Lynn, PE30 1NN
Industry affiliations:

At The Norfolk Agents we believe that vendors and Landlords shouldn't still be expected to pay the inflated fees most Traditional agencies charge, vendors, buyers, tenants and landlords alike deserve more than national online agencies can offer. The Norfolk Agents combine the best of both offerings, to provide a cost effective package that you can control, backed up by high quality marketing and first class customer service which is provided locally by our friendly and experienced team.

By reducing overheads and using technology to work smarter, The Norfolk Agents are able to offer you a fully personalised and local estate agency service at a significantly reduced rate compared to a traditional agent. Our range of packages, county wide coverage and modern methods of marketing gives flexibility, choice and an alternative solution that brings together the best of both the traditional and online.

Notes

These notes are private, only you can see them.

Disclaimer - Property reference THN_THN_LFSYCL_911_1041427141. The information displayed about this property comprises a property advertisement. Rightmove.co.uk makes no warranty as to the accuracy or completeness of the advertisement or any linked or associated information, and Rightmove has no control over the content. This property advertisement does not constitute property particulars. The information is provided and maintained by The Norfolk Agents, Kings Lynn. Please contact the selling agent or developer directly to obtain any information which may be available under the terms of The Energy Performance of Buildings (Certificates and Inspections) (England and Wales) Regulations 2007 or the Home Report if in relation to a residential property in Scotland.

Auction Fees: The purchase of this property may include associated fees not listed here, as it is to be sold via auction. To find out more about the fees associated with this property please call The Norfolk Agents, Kings Lynn on 01553 603396.

*Guide Price: An indication of a seller's minimum expectation at auction and given as a “Guide Price” or a range of “Guide Prices”. This is not necessarily the figure a property will sell for and is subject to change prior to the auction.

Reserve Price: Each auction property will be subject to a “Reserve Price” below which the property cannot be sold at auction. Normally the “Reserve Price” will be set within the range of “Guide Prices” or no more than 10% above a single “Guide Price.”

Map data ©OpenStreetMap contributors.