Plot 3 Victoria Gardens, Victoria Street, Wragby, Market Rasen, Lincolnshire, LN8 5PF

- PROPERTY TYPE
Detached
- BEDROOMS
4
- BATHROOMS
2
- SIZE
Ask agent
- TENUREDescribes how you own a property. There are different types of tenure - freehold, leasehold, and commonhold.Read more about tenure in our glossary page.
Freehold
Key features
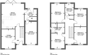
- 4 bed detached New Build
- House type Oak
- 1,761 sq ft
- Integral garage
- Example Internal images for guide only
- Early reservations invited
Description
Detailed Description
Victoria Gardens is in the early stages of construction and will comprise 70 properties with a selection of 1, 2,3 & 4 bedroom properties built to a very high standard. The site is located on Victoria Street which is within walking distance of the centre of Wragby.
The Developer
Somersby Homes have been building family homes for the past four decades, originally known as Hugh Bourn Homes, they have designed and built houses across the length and
breadth of Lincolnshire, helping families and first time home owners buy their first property. With decades of experience supporting and working with local people, Somersby Homes understand that when you're searching for a new home, you also want the perfect location.
A place where people will make friends, enjoy family life and take pride in their neighbourhoods and surroundings whether that's a home in the quiet countryside or close
to the bustling city centre.
They are here to offer help and support from the very beginning of your property search until long after you've moved in. So whether you're looking for your first home or to move up the property ladder, take a look at our wide range of new properties for sale and get in touch today to find out just how easy it is to find your perfect home with Somersby.
Somersby Homes office
Location
Wragby is a pleasant Lincolnshire market town close to the Lincolnshire Wolds which is an area of Outstanding Natural Beauty (AONB). The town is also well positioned for commuters to the historic city of Lincoln just 10 miles away with a fast commuter train to London in just 2 hours and the east coast is around 30 miles away with the well known seaside resorts of Skegness, Mablethorpe and Ingoldmells.
Wragby is the perfect place for new families with schooling, shops, leisure facilties including tennis courts and an indoor swimming pool, Churches, public houses, Co-op and a thriving community which organises some fantastic events such as food festivals, baking competitions, Wragby Show & Country Fayre , Young Famers club and the Scouts so you can really get into the local spirit.
A little further afield lie a collection of beautiful nature reserves, woodland walks and country parks which offer great walking and cycling opportunities. Nearby towns of
Horncastle & Market Rasen offers further schooling and amenities.
The postcode for the the site is LN8 5PF, but for the exact location please use the following:
Accommodation
> Under floor heating
> Air Source heat pump
> Full Fibre broadband
> Bosch Oven
> Bosch Hob
> Bosch Dishwasher
> 60/40 split fridge freezer
> Wren Kitchen with choice of worktops, colour and style of units and handles
> LVT Amtico flooring in Kitchen, Entrance Hall & WC
> Choice of carpet elsewhere
> Loft ladder
> USB sockets
> Bathroom wall half tiled with ceramic floor and wall
> Electric demister bathroom mirror
> Downlights in Kitchen & Bathroom
> Up & Down Lighters front and back
> PIR garage light
> Electric Roller shutter doors with sensor
> Outside tap to rear
* Various upgrades are available on each house type so please contact the selling agent to discuss this in more detail. We shall also recieve further information and imagery as the site progresses so this brochure will be updated.
Viewing
Viewing
Viewings are strictly by appointment with the selling agent on or via Somersby Homes on .
Agent
Brown & Co
5 Oakwood Road
Lincoln, LN6 3LH
Other
BUYER IDENTITY CHECK
Please note that prior to acceptance of any offer, Brown&coJHWalter are required to verify the identity of the buyer to comply with the requirements of the Money Laundering, Terrorist Financing and Transfer of Funds (Information on the Payer) Regulations 2017. Further, when a property is for sale by tender, an ID check must be carried out before a tender can be submitted. We are most grateful for your assistance with this.
Brochures
Brochure- COUNCIL TAXA payment made to your local authority in order to pay for local services like schools, libraries, and refuse collection. The amount you pay depends on the value of the property.Read more about council Tax in our glossary page.
- Ask agent
- PARKINGDetails of how and where vehicles can be parked, and any associated costs.Read more about parking in our glossary page.
- Yes
- GARDENA property has access to an outdoor space, which could be private or shared.
- Yes
- ACCESSIBILITYHow a property has been adapted to meet the needs of vulnerable or disabled individuals.Read more about accessibility in our glossary page.
- Ask agent
Energy performance certificate - ask agent
Plot 3 Victoria Gardens, Victoria Street, Wragby, Market Rasen, Lincolnshire, LN8 5PF
Add an important place to see how long it'd take to get there from our property listings.
__mins driving to your place
Get an instant, personalised result:
- Show sellers you’re serious
- Secure viewings faster with agents
- No impact on your credit score
Your mortgage
Notes
Staying secure when looking for property
Ensure you're up to date with our latest advice on how to avoid fraud or scams when looking for property online.
Visit our security centre to find out moreDisclaimer - Property reference 447909FH. The information displayed about this property comprises a property advertisement. Rightmove.co.uk makes no warranty as to the accuracy or completeness of the advertisement or any linked or associated information, and Rightmove has no control over the content. This property advertisement does not constitute property particulars. The information is provided and maintained by Brown&CoJHWalter, Lincoln. Please contact the selling agent or developer directly to obtain any information which may be available under the terms of The Energy Performance of Buildings (Certificates and Inspections) (England and Wales) Regulations 2007 or the Home Report if in relation to a residential property in Scotland.
*This is the average speed from the provider with the fastest broadband package available at this postcode. The average speed displayed is based on the download speeds of at least 50% of customers at peak time (8pm to 10pm). Fibre/cable services at the postcode are subject to availability and may differ between properties within a postcode. Speeds can be affected by a range of technical and environmental factors. The speed at the property may be lower than that listed above. You can check the estimated speed and confirm availability to a property prior to purchasing on the broadband provider's website. Providers may increase charges. The information is provided and maintained by Decision Technologies Limited. **This is indicative only and based on a 2-person household with multiple devices and simultaneous usage. Broadband performance is affected by multiple factors including number of occupants and devices, simultaneous usage, router range etc. For more information speak to your broadband provider.
Map data ©OpenStreetMap contributors.




