Shortgrove Estate, Saffron Walden, CB11

- PROPERTY TYPE
Country House
- BEDROOMS
5
- BATHROOMS
4
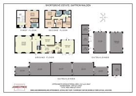
- SIZE
6,856 sq ft
637 sq m
Key features
- Quote Ref: 578115 when calling
- Set in the exclusive Shortgrove Estate
- Five acres of immaculate gardens
- Restored victorian greenhouses
- Turn key proeprty
- Private listed woodland
- Historic grade II listed property dating back to the 1700s
- Excellent transport links to Cambridge and London
- Saffron Walden voted The Sunday Times Best Place To Live In The UK 2025
Description
Set in the 3,123 acre estate this property has a rich history. Built from 1684 the manor house on the Shortgrove Estate was burnt down by the famous Kray brothers in 1966. It is also rumoured to have Britain's oldest swimming bath.
In more recent times, the property has been heavily modernised whilst still in keeping with its history and character. The current owners have meticulously renovated both the house and the gardens to incredibly high standards.
Dramatic gates into the Shortgrove Estate lead over the Matthew Brettingham designed bridge and up the picturesque private drive to the property entry court.
Inside, just off the impressive entrance hall is the drawing room which features high ceilings and 20 foot curtains as well as a large fireplace. Dual aspect windows ensure this statement of a room is filled with natural light. Also on the ground floor is a highly versatile kitchen with stone flooring and high quality American appliances. Off the kitchen is a utility room and spacious dining room as well as a tasteful W/C. Finally, the French doors in the garden room open onto a patio beautifully framing the walled gardens.
The first floor contains the principle suite featuring a three piece en-suite, walk-in wardrobe and spacious bedroom. The second floor offers a further four bedrooms and two bathrooms. Each of these bedrooms has its own theme, all with stunning views of the gardens and estate grounds beyond.
Sat in five acres of private gardens within the estate, three of which are walled gardens with formal borders, a fountain and mature trees. Perfect for hosting garden parties. There are a further two acres of listed woodland that have been cleared and lovingly maintained. The current owners have also restored the Victorian greenhouses to outstanding detail.
Finally, the property is situated just outside of the historic market town of Saffron Walden, which has just been voted ‘the best place to live in Britain’ by The Sunday Times. Saffron Walden offers plenty of independent shops, cafes, restaurants, pubs and other amenities. In terms of transport, Saffron Walden is located on the M11 corridor, just 20 minutes south of Cambridge and an hour north of London. Stansted airport is also just 25 minutes away, all accessible from two train stations that are within walking distance. Saffron Walden also benefits from outstanding primary and secondary schools.
A viewing is highly recommended in order to fully understand the lifestyle that comes with this stunning property.
- COUNCIL TAXA payment made to your local authority in order to pay for local services like schools, libraries, and refuse collection. The amount you pay depends on the value of the property.Read more about council Tax in our glossary page.
- Ask agent
- PARKINGDetails of how and where vehicles can be parked, and any associated costs.Read more about parking in our glossary page.
- Yes
- GARDENA property has access to an outdoor space, which could be private or shared.
- Yes
- ACCESSIBILITYHow a property has been adapted to meet the needs of vulnerable or disabled individuals.Read more about accessibility in our glossary page.
- Ask agent
Energy performance certificate - ask agent
Shortgrove Estate, Saffron Walden, CB11
Add an important place to see how long it'd take to get there from our property listings.
__mins driving to your place
Get an instant, personalised result:
- Show sellers you’re serious
- Secure viewings faster with agents
- No impact on your credit score
About Keller Williams Plus, Covering Nationwide
Suite 1G, Widford Business Centre, 33 Robjohns Road, Chelmsford, CM1 3AG

Affordability
Notes
Staying secure when looking for property
Ensure you're up to date with our latest advice on how to avoid fraud or scams when looking for property online.
Visit our security centre to find out moreDisclaimer - Property reference RX578115. The information displayed about this property comprises a property advertisement. Rightmove.co.uk makes no warranty as to the accuracy or completeness of the advertisement or any linked or associated information, and Rightmove has no control over the content. This property advertisement does not constitute property particulars. The information is provided and maintained by Keller Williams Plus, Covering Nationwide. Please contact the selling agent or developer directly to obtain any information which may be available under the terms of The Energy Performance of Buildings (Certificates and Inspections) (England and Wales) Regulations 2007 or the Home Report if in relation to a residential property in Scotland.
*This is the average speed from the provider with the fastest broadband package available at this postcode. The average speed displayed is based on the download speeds of at least 50% of customers at peak time (8pm to 10pm). Fibre/cable services at the postcode are subject to availability and may differ between properties within a postcode. Speeds can be affected by a range of technical and environmental factors. The speed at the property may be lower than that listed above. You can check the estimated speed and confirm availability to a property prior to purchasing on the broadband provider's website. Providers may increase charges. The information is provided and maintained by Decision Technologies Limited. **This is indicative only and based on a 2-person household with multiple devices and simultaneous usage. Broadband performance is affected by multiple factors including number of occupants and devices, simultaneous usage, router range etc. For more information speak to your broadband provider.
Map data ©OpenStreetMap contributors.




