3 bedroom apartment for sale
Sommers Crescent, Ilfracombe

- PROPERTY TYPE
Apartment
- BEDROOMS
3
- BATHROOMS
2
- SIZE
Ask agent
Key features
- Top floor three bedroom maisonette
- Owned off-road parking
- Exquisite sun roof terrace
- Balcony excelling in sea views
- Close proximity to Ilfracombe Harbour and High Street
- Short walk to local transport routes
- Gas central heating
- Chain-free sale
Description
The property also benefits from two contemporary bathrooms and a rare added luxury: a private roof sun terrace boasting panoramic views across Ilfracombe’s stunning coastline. Combining modern comfort with scenic coastal charm, this exceptional maisonette presents an ideal opportunity for those seeking a spacious seaside retreat. This property also benefits from double-glazed windows, an owned off-road parking space in a private car park opposite.
lfracombe town offers a variety of independent shops, art galleries, restaurants and bars. The picturesque seafront and harbour area is home to artist Damien Hirst's ‘Verity’ statue at the harbour entrance. In addition is the exciting new water sports centre and café making the harbour a hive of activity.
North Devon has a wealth of simply stunning golden sand beaches and has long been a mecca for British surfers. The area has recently been declared a ‘world surfing reserve’, one of just 12 places on the planet along with Australia’s Golden Coast and Malibu in California.
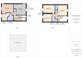
Hallway - 1.67 x 0.96 (5'5" x 3'1") - This spacious entrance hall offers a warm welcome into the home, with ample room for free-standing furniture and built in storage units. A wall-mounted gas radiator provides comfort, while the fully carpeted flooring adds a sense of warmth and cosiness, setting the tone for the rest of the property.
Living Room - 4.31 x 3.21 (14'1" x 10'6") - This well-proportioned living room offers generous space for free-standing furniture, creating a comfortable and versatile setting for everyday living. A UPVC double glazed window allows natural light to fill the room, complemented by a wall-mounted gas radiator for year-round warmth. The space is finished with stylish wood laminate flooring throughout, combining practicality with a modern aesthetic.
Dining Room - 4.00 x 3.25 (13'1" x 10'7") - This generously sized dining room offers ample space for free-standing dining furniture, making it ideal for family meals and entertaining. UPVC double glazed patio doors open directly onto a balcony that boasts stunning sea views, creating a perfect indoor-outdoor flow. A wall-mounted gas radiator ensures comfort, while wood laminate flooring adds a sleek and contemporary finish to the space.
Kitchen - 2.41 x 1.98 (7'10" x 6'5") - A stylish and well-appointed kitchen that features matching wall and floor units that offer both functionality and a modern aesthetic. It includes a four-ring gas hob with an electric fan oven below, a stainless steel sink, and an integrated dishwasher for added convenience. There is also space for a fridge freezer, while a UPVC double glazed window allows natural light to brighten the space. The kitchen is finished with a mosaic effect laminate flooring throughout, combining durability with a contemporary flair.
Landing - 2.09 x 0.86 (6'10" x 2'9") - This spacious landing offers versatility with ample room for free-standing furniture and additional storage. It features a built-in storage cupboard, complete with plumbing and space for both a washing machine and tumble dryer, adding practical functionality. A charming stained glass window enhances the character of the space, while carpeting throughout provides warmth and comfort underfoot.
Bedroom One - 4.01 x 3.31 (13'1" x 10'10" ) - Bedroom One is a generously sized double bedroom offering plenty of space for free-standing furniture. A UPVC double glazed window frames extraordinary sea views, filling the room with natural light and a coastal charm. The room also benefits from a built-in storage cupboard that provides ladder access to the sun roof terrace—an exceptional feature for enjoying panoramic views. Additional highlights include a wall-mounted gas radiator for comfort and sleek wood laminate flooring throughout, blending style with practicality.
Bedroom Two - 4.31 x 3.01 (14'1" x 9'10") - Bedroom Two is a well-proportioned double bedroom offering ample space for free-standing bedroom furniture. A UPVC double glazed window allows for plenty of natural light, while a wall-mounted gas radiator ensures year-round comfort. The room is finished with wood laminate flooring throughout, adding a modern and low-maintenance touch to the space.
Bedroom Three - 3.15 x 3.07 (10'4" x 10'0") - Bedroom Three is another generously sized double bedroom, offering ample space for free-standing furniture. A UPVC double glazed window brings in natural light, while a wall-mounted gas radiator provides comfort. The room is completed with wood laminate flooring throughout, giving it a clean and contemporary finish.
Ground Floor Bathroom - 2.11 x 1.88 (6'11" x 6'2") - Situated on the ground floor, this well-presented three-piece suite features a bath, sink basin, and toilet, offering both comfort and practicality. A wall-mounted heated towel rail and electric extractor fan enhance convenience, while vinyl flooring throughout provides a clean and contemporary finish.
First Floor Bathroom - 2.05 x 1.86 (6'8" x 6'1") - Positioned on the first floor, this stylish three-piece suite comprises a modern shower, sink basin, and toilet. An electric extractor fan ensures ventilation, while wood laminate flooring throughout adds a sleek and practical finish to this contemporary bathroom space.
Rooftop Sun Terrace - 6.71 x 6.47 (22'0" x 21'2") - Accessed via a ladder from Bedroom One, this outstanding roof terrace is a truly unique addition to the property. Elevated above the surrounding rooftops, it offers a generous outdoor space perfect for relaxing or entertaining, with ample room for outdoor furniture, potted plants, or even a bistro set. What truly sets this terrace apart are the uninterrupted panoramic views stretching across Ilfracombe’s charming townscape, rolling hills, and dramatic coastline—providing an ever-changing backdrop of sea and sky. Whether enjoyed at sunrise with a morning coffee or at sunset with evening drinks, this space captures the essence of coastal living at its finest.
Agent Notes - This property has a 999 year lease with 977 remaining and all maintenance to the property is split three ways between all the flats in the block. Private parking opposite the building providing one allocated space.
This is a very well self managed block with no ground rent or monthly service charge. A 2/5ths contribution of communal bills and costs as and when they arise come with this property.
We have been informed by the vendor that gas, electric, water and drainage are all mains connected.
To comply with the property mis-descriptions act we must inform all prospective purchasers that the measurements are taken by an electronic tape measure and are provided as a guide only. We have not tested any mains services, gas or electric appliances or fixtures and fittings mentioned in these details, therefore, prospective purchasers should satisfy themselves before committing to purchase.
Directions - From our office head north-east on High St/A361 towards Oxford Grove and turn left onto Fore Street. Turn left onto Sommers Crescent where the property will be on your right hand side.
Brochures
Sommers Crescent, Ilfracombe- COUNCIL TAXA payment made to your local authority in order to pay for local services like schools, libraries, and refuse collection. The amount you pay depends on the value of the property.Read more about council Tax in our glossary page.
- Band: A
- PARKINGDetails of how and where vehicles can be parked, and any associated costs.Read more about parking in our glossary page.
- Yes
- GARDENA property has access to an outdoor space, which could be private or shared.
- Ask agent
- ACCESSIBILITYHow a property has been adapted to meet the needs of vulnerable or disabled individuals.Read more about accessibility in our glossary page.
- Ask agent
Sommers Crescent, Ilfracombe
Add an important place to see how long it'd take to get there from our property listings.
__mins driving to your place
Get an instant, personalised result:
- Show sellers you’re serious
- Secure viewings faster with agents
- No impact on your credit score
Your mortgage
Notes
Staying secure when looking for property
Ensure you're up to date with our latest advice on how to avoid fraud or scams when looking for property online.
Visit our security centre to find out moreDisclaimer - Property reference 33940984. The information displayed about this property comprises a property advertisement. Rightmove.co.uk makes no warranty as to the accuracy or completeness of the advertisement or any linked or associated information, and Rightmove has no control over the content. This property advertisement does not constitute property particulars. The information is provided and maintained by Turners, Ilfracombe. Please contact the selling agent or developer directly to obtain any information which may be available under the terms of The Energy Performance of Buildings (Certificates and Inspections) (England and Wales) Regulations 2007 or the Home Report if in relation to a residential property in Scotland.
*This is the average speed from the provider with the fastest broadband package available at this postcode. The average speed displayed is based on the download speeds of at least 50% of customers at peak time (8pm to 10pm). Fibre/cable services at the postcode are subject to availability and may differ between properties within a postcode. Speeds can be affected by a range of technical and environmental factors. The speed at the property may be lower than that listed above. You can check the estimated speed and confirm availability to a property prior to purchasing on the broadband provider's website. Providers may increase charges. The information is provided and maintained by Decision Technologies Limited. **This is indicative only and based on a 2-person household with multiple devices and simultaneous usage. Broadband performance is affected by multiple factors including number of occupants and devices, simultaneous usage, router range etc. For more information speak to your broadband provider.
Map data ©OpenStreetMap contributors.







