
3 bedroom detached house for sale
Caro Road, Canvey Island, SS8

- PROPERTY TYPE
Detached
- BEDROOMS
3
- BATHROOMS
1
- SIZE
Ask agent
- TENUREDescribes how you own a property. There are different types of tenure - freehold, leasehold, and commonhold.Read more about tenure in our glossary page.
Freehold
Key features
- Spacious Detached Home
- Prime Cul-de-Sac Location
- Extension Potential
- Large Lounge
- Open-Plan Kitchen/Diner
- Three Good-Sized Bedrooms
- Newly Fitted Wet Room
- Expansive Rear Garden
- Detached Garage & Side Space
- Investment Opportunity
Description
Ideally situated within easy reach of local shops, schools, and transport links, this property blends lifestyle convenience with future possibilities.
Inside, the accommodation is spacious and thoughtfully laid out, featuring a generous lounge and a bright, open-plan kitchen/dining area—perfect for everyday living and entertaining alike. The three bedrooms are all comfortably proportioned, and the home benefits from a recently installed wet room for added modern comfort.
Outside, the large rear garden and detached garage offer both functionality and scope, while the additional space to the side further enhances the property's development potential—making it an ideal choice for growing families or savvy buyers.
Important Notice: We understand the property is currently involved in an active insurance claim for subsidence. Prospective buyers are strongly encouraged to make their own enquiries and obtain professional advice before proceeding.
An excellent opportunity to secure a home full of promise in a well-regarded location.
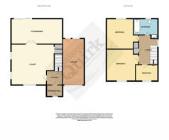
Lounge
16' x 15'8
Kitchen
18'9 x 10'2
Hallway
6'9 x 5'9
Garage
19'6 x 7'10
Landing
12'10 x 5'8
Bedroom One
13'4 x 10'5
Bedroom Two
12'3 x 9'5
Bedroom Three
8' x 6'11
Bathroom
6'9 x 5'4
- COUNCIL TAXA payment made to your local authority in order to pay for local services like schools, libraries, and refuse collection. The amount you pay depends on the value of the property.Read more about council Tax in our glossary page.
- Band: D
- PARKINGDetails of how and where vehicles can be parked, and any associated costs.Read more about parking in our glossary page.
- Yes
- GARDENA property has access to an outdoor space, which could be private or shared.
- Yes
- ACCESSIBILITYHow a property has been adapted to meet the needs of vulnerable or disabled individuals.Read more about accessibility in our glossary page.
- Ask agent
Caro Road, Canvey Island, SS8
Add an important place to see how long it'd take to get there from our property listings.
__mins driving to your place
Get an instant, personalised result:
- Show sellers you’re serious
- Secure viewings faster with agents
- No impact on your credit score

Your mortgage
Notes
Staying secure when looking for property
Ensure you're up to date with our latest advice on how to avoid fraud or scams when looking for property online.
Visit our security centre to find out moreDisclaimer - Property reference RX588817. The information displayed about this property comprises a property advertisement. Rightmove.co.uk makes no warranty as to the accuracy or completeness of the advertisement or any linked or associated information, and Rightmove has no control over the content. This property advertisement does not constitute property particulars. The information is provided and maintained by Anthony Quirk & Co, Canvey Island. Please contact the selling agent or developer directly to obtain any information which may be available under the terms of The Energy Performance of Buildings (Certificates and Inspections) (England and Wales) Regulations 2007 or the Home Report if in relation to a residential property in Scotland.
*This is the average speed from the provider with the fastest broadband package available at this postcode. The average speed displayed is based on the download speeds of at least 50% of customers at peak time (8pm to 10pm). Fibre/cable services at the postcode are subject to availability and may differ between properties within a postcode. Speeds can be affected by a range of technical and environmental factors. The speed at the property may be lower than that listed above. You can check the estimated speed and confirm availability to a property prior to purchasing on the broadband provider's website. Providers may increase charges. The information is provided and maintained by Decision Technologies Limited. **This is indicative only and based on a 2-person household with multiple devices and simultaneous usage. Broadband performance is affected by multiple factors including number of occupants and devices, simultaneous usage, router range etc. For more information speak to your broadband provider.
Map data ©OpenStreetMap contributors.





