
Land for sale
The Common, Dewsbury, WF12
- PROPERTY TYPE
Land
- SIZE
Ask agent
Key features
- LAND FOR SALE
- Planning Permission Granted
- 4 Bed Detached Home
- Residential Home
- Development Opportunity
- Investment Opportunity
- Great Location
- Excellent Motorway & Transport Links
- Close To Wealth of Amenities
- Popular Residential Location
Description
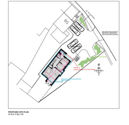
Located in a popular residential area, this unique land presents an exceptional opportunity to own a residential property with development potential. The expansive plot is designated for residential use, offering the chance to create a remarkable 4-bedroom detached home upon it. With planning permission already granted, the property is ready and waiting for its transformation.
This prime piece of land not only provides a fantastic residential development opportunity but also serves as a promising investment opportunity. Its strategic location boasts convenient access to excellent motorway connections and transport links, making commuting a breeze for future residents. This, coupled with its close proximity to a wealth of amenities including shops, schools, and recreational facilities, ensures that daily life is made effortless and enjoyable.
The planned 4-bedroom detached home promises to offer spacious and comfortable living quarters for residents, catering to modern lifestyles. The property's design and layout can be tailored to suit individual preferences, presenting an exciting prospect for prospective buyers looking to create their dream home. The potential of the land presents endless possibilities for customisation and personalisation, allowing the creation of a truly unique living space.
Overall, this land for sale offers a compelling combination of development potential, investment opportunity, and a great location. With planning permission secured and boundless possibilities for customisation, this property is a rare find that is sure to attract discerning buyers looking to create their perfect home. Don't miss out on this chance to own a piece of land with the potential to become a truly remarkable residential property.
Planning Application: 2023/62/91089/E
AGENT NOTES
1.MONEY LAUNDERING REGULATIONS: Intending purchasers will be asked to produce identification documentation at a later stage and we would ask for your co-operation in order that there will be no delay in agreeing the sale.
2. General: While we endeavour to make our sales particulars fair, accurate and reliable, they are only a general guide to the property and, accordingly, if there is any point which is of particular importance to you, please contact the office and we will be pleased to check the position for you, especially if you are contemplating travelling some distance to view the property.
3. The measurements indicated are supplied for guidance only and as such must be considered incorrect.
4. Services: Please note we have not tested the services or any of the equipment or appliances in this property, accordingly we strongly advise prospective buyers to commission their own survey or service reports before finalising their offer to purchase.
5. These particulars are issued in good faith but do not constitute representations of fact or form part of any offer or contract. The matters referred to in these particulars should be independently verified by prospective buyers or tenants. Neither representation or warranty whatever in relation to this property.
The Common, Dewsbury, WF12
NEAREST STATIONS
Distances are straight line measurements from the centre of the postcode- Ravensthorpe Station1.4 miles
- Dewsbury Station1.6 miles
- Batley Station2.7 miles
Notes
Disclaimer - Property reference fa402250-6911-454f-bf36-b71d3a99741d. The information displayed about this property comprises a property advertisement. Rightmove.co.uk makes no warranty as to the accuracy or completeness of the advertisement or any linked or associated information, and Rightmove has no control over the content. This property advertisement does not constitute property particulars. The information is provided and maintained by Ezmuve Estate Agents, Batley. Please contact the selling agent or developer directly to obtain any information which may be available under the terms of The Energy Performance of Buildings (Certificates and Inspections) (England and Wales) Regulations 2007 or the Home Report if in relation to a residential property in Scotland.
Map data ©OpenStreetMap contributors.






