3 bedroom end of terrace house for sale
Bolnore, Haywards Heath, RH16 4FR

- PROPERTY TYPE
End of Terrace
- BEDROOMS
3
- BATHROOMS
2
- SIZE
1,184 sq ft
110 sq m
- TENUREDescribes how you own a property. There are different types of tenure - freehold, leasehold, and commonhold.Read more about tenure in our glossary page.
Freehold
Key features
- Quiet Residential Position
- Ideal Work From Home Office
- Kitchen/Breakfast Room
- Three Bedrooms
- En-Suite To Bedroom One
- West Facing Garden
- Garage
- Easy Access To Bolnore School
- REF MG1259
- Guide Price £450,000-£475,000
Description
REF MG1259.
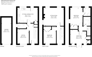
Guide Price £450,000-£475,000. This is an excellent home, located right in the heart of Bolnore Village and tucked away on a quiet no through road with a view towards Woodside playing fields. Internally, there is plenty for a buyer to get excited about, we are big fans of the flexible layout on the three floors. As you walk through the front door, the wood effect floor flows from the entrance hall into the office. This is an excellent space which offers important accommodation for those that may need to work from home. Next door is a cloakroom and off the entrance hall is the kitchen breakfast room. In here you'll find plenty of work surface prep space, with ample storage. Integrated appliances include a dish washer and washing machine and also the range style cooker. There is space for a breakfast table and access out to the garden.
On the first floor is the sitting room and bedroom three. The sitting room benefits from a double aspect and therefore plenty of light into the room, as well as having an electric fire. This is a great room to relax in. Next door is bedroom three which benefits from built in storage. On the second floor are bedrooms one and two. Bedroom one has a double aspect and being located at the top, the views are particularly nice in a south and south westerly direction. There is an en-suite bathroom and built in wardrobes. Bedroom two has a juliette balcony and storage, with the second floor being completed by the family bathroom.
The rear garden is accessed via the kitchen/breakfast room. Favouring a southerly and south westerly aspect, it is a garden that benefits from plenty of daylight sun. A decked area is the perfect spot for table and chairs, whilst a patio are leads you to a rear gate and to the side of the house. The rear gate leads you to the parking, where the garage provides additional storage or space for a car, with parking in front.
Tenure - Freehold
Council Tax Band - E
Annual Service Charge Amount - £320
Service Charge Review Date - Annually
The Local Area? The location of this home in Bolnore is a real selling feature. You are a stone's throw away from the local shops, which include a Co-op, yet you are completely unaffected by any noise. Bolnore Village School, built in 2009, is within walking distance, as is The Woodside Community Centre, a great place to hire or take advantage of the daily events which include everything from Sing and Sign, Pilates and Salsa to Beavers and Scout groups. Haywards Heath station is within 1.5 miles where connecting trains to London are from 46 minutes and Brighton within 20 minutes. Next to the station is a Waitrose, whilst around the corner you can find a Sainsbury's. From Bolnore, the countryside is not far from your front door. National Trust facilities are located locally at Wakehurst Place and Nymans Gardens, with Sheffield Park less than 20 minutes by road. Pretty villages surround the town and include Lindfield, Cuckfield, Ardingly and Wivelsfield Green. Take the A272 ring road and you can be on the A23 within approximately 10 minutes. Brighton can be found 15 miles to the south, whilst a short drive north takes you to Crawley, London Gatwick and the M25
- COUNCIL TAXA payment made to your local authority in order to pay for local services like schools, libraries, and refuse collection. The amount you pay depends on the value of the property.Read more about council Tax in our glossary page.
- Band: E
- PARKINGDetails of how and where vehicles can be parked, and any associated costs.Read more about parking in our glossary page.
- Garage
- GARDENA property has access to an outdoor space, which could be private or shared.
- Private garden
- ACCESSIBILITYHow a property has been adapted to meet the needs of vulnerable or disabled individuals.Read more about accessibility in our glossary page.
- Ask agent
Bolnore, Haywards Heath, RH16 4FR
Add an important place to see how long it'd take to get there from our property listings.
__mins driving to your place
Get an instant, personalised result:
- Show sellers you’re serious
- Secure viewings faster with agents
- No impact on your credit score
Your mortgage
Notes
Staying secure when looking for property
Ensure you're up to date with our latest advice on how to avoid fraud or scams when looking for property online.
Visit our security centre to find out moreDisclaimer - Property reference S1341720. The information displayed about this property comprises a property advertisement. Rightmove.co.uk makes no warranty as to the accuracy or completeness of the advertisement or any linked or associated information, and Rightmove has no control over the content. This property advertisement does not constitute property particulars. The information is provided and maintained by eXp UK, South East. Please contact the selling agent or developer directly to obtain any information which may be available under the terms of The Energy Performance of Buildings (Certificates and Inspections) (England and Wales) Regulations 2007 or the Home Report if in relation to a residential property in Scotland.
*This is the average speed from the provider with the fastest broadband package available at this postcode. The average speed displayed is based on the download speeds of at least 50% of customers at peak time (8pm to 10pm). Fibre/cable services at the postcode are subject to availability and may differ between properties within a postcode. Speeds can be affected by a range of technical and environmental factors. The speed at the property may be lower than that listed above. You can check the estimated speed and confirm availability to a property prior to purchasing on the broadband provider's website. Providers may increase charges. The information is provided and maintained by Decision Technologies Limited. **This is indicative only and based on a 2-person household with multiple devices and simultaneous usage. Broadband performance is affected by multiple factors including number of occupants and devices, simultaneous usage, router range etc. For more information speak to your broadband provider.
Map data ©OpenStreetMap contributors.




