
3 bedroom semi-detached house for sale
Queen Street, Hadfield, SK13 2DW

- PROPERTY TYPE
Semi-Detached
- BEDROOMS
3
- BATHROOMS
1
- SIZE
Ask agent
- TENUREDescribes how you own a property. There are different types of tenure - freehold, leasehold, and commonhold.Read more about tenure in our glossary page.
Freehold
Key features
- Stunning Stone Semi Detached Cottage
- Farmhouse Kitchen
- Three Bedrooms
- Exposed Beams & Mullion Windows
- Multi Fuel Burner
- Stone Flagged Floors
- Cottage garden to side & rear
Description
Country Holmes is delighted to offer for sale this beautifully spacious stone-built semi-detached cottage, brimming with character and charm. This exceptional home seamlessly blends traditional features—such as stunning mullion windows and original exposed beams—with comfortable modern living.
The thoughtfully designed layout includes a superb open-plan kitchen, dining, and living area, ideal for entertaining or relaxing with family. A separate utility area adds convenience, while the inviting lounge offers a cosy retreat. Upstairs, three generously sized bedrooms and a stylish family bathroom provide ample space for comfortable living.
Outside, discover enchanting cottage gardens, complete with growing planters and tranquil seating areas—perfect for al fresco dining or unwinding in your own private oasis.
This is a rare opportunity to own a truly unique home that combines period charm with everyday practicality. Early viewing is highly recommended!
AGENT'S REMARKS
Upon entering the property through the side entrance, you're welcomed by a beautiful solid oak door, setting the tone for the character and quality found throughout the home. This leads into a delightful kitchen-diner that perfectly captures the essence of a traditional stone cottage.
The kitchen features charming farmhouse stone flag flooring, thoughtfully installed by the current owners, along with bespoke solid wood units and worktops. Characterful touches such as exposed beams, mullion windows, a classic Belfast sink with mixer tap, and generous storage space add warmth and functionality. Convenient under-stairs utility area. A solid oak front stable door provides additional access and adds to the property's rustic appeal, while an open archway leads through to the cosy living room.
The living room continues the cottage charm with exposed beams, stone mullion windows fitted with secondary glazing, and a welcoming fireplace complete with a multi-fuel burner set on a stone hearth. A newly fitted carpet adds comfort to this inviting space.
A central staircase, separating the two reception areas, leads to the first floor. Throughout the home, beautifully crafted handmade oak doors further enhance the attention to detail and quality of finish.
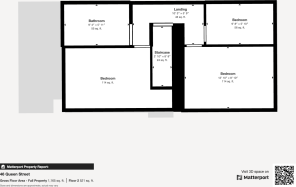
Living Room - 4.57m x 3.94m (15'0" x 12'11")
Kitchen/Diner - 5.66m x 4.57m (18'7" x 15'0")
First Floor
Master Bedroom - 3.94m x 2.69m (12'11" x 8'10")
Bathroom - 2.84m x 1.8m (9'4" x 5'11")
Bedroom 2 - 3.73m x 2.62m (12'3" x 8'7")
Bedroom 3 - 2.95m x 1.78m (9'8" x 5'10")
Side and rear garden
VENDORS COMMENTS
Over the past 6 years the current owners have made the following upgrades:
- Full damp proof course to lower level
- Installed secondary glazing to preserve warmth and retain the character of the original mullion windows
- Upgraded the electrics, including an increase in electrical points from 4 to 17 in the kitchen/diner alone
- Upgraded light fittings throughout
- Installed handmade internal oak doors
-Installed handmade external solid oak doors, including a stable door, with antique stained glass panels
- Boarded out one loft cavity and installed loft ladder and lighting (there are three loft cavities in total)
- Installed a new bathroom and shower
- Levelled the kitchen/diner floor and installed flagstone floor.
- New skirtings in the kitchen/diner
- Two new radiators in the kitchen/diner
- Installed a wood burning stove
- New pure wool carpets, stairs, lounge and 3rd bedroom
- New kitchen configuration
- Installed Rangemaster with extractor
- Installed outside tap (hot and cold)
Brochures
Brochure 1- COUNCIL TAXA payment made to your local authority in order to pay for local services like schools, libraries, and refuse collection. The amount you pay depends on the value of the property.Read more about council Tax in our glossary page.
- Band: C
- PARKINGDetails of how and where vehicles can be parked, and any associated costs.Read more about parking in our glossary page.
- On street
- GARDENA property has access to an outdoor space, which could be private or shared.
- Private garden
- ACCESSIBILITYHow a property has been adapted to meet the needs of vulnerable or disabled individuals.Read more about accessibility in our glossary page.
- Ask agent
Queen Street, Hadfield, SK13 2DW
Add an important place to see how long it'd take to get there from our property listings.
__mins driving to your place
Get an instant, personalised result:
- Show sellers you’re serious
- Secure viewings faster with agents
- No impact on your credit score
Your mortgage
Notes
Staying secure when looking for property
Ensure you're up to date with our latest advice on how to avoid fraud or scams when looking for property online.
Visit our security centre to find out moreDisclaimer - Property reference S1342145. The information displayed about this property comprises a property advertisement. Rightmove.co.uk makes no warranty as to the accuracy or completeness of the advertisement or any linked or associated information, and Rightmove has no control over the content. This property advertisement does not constitute property particulars. The information is provided and maintained by Country Holmes, Glossop. Please contact the selling agent or developer directly to obtain any information which may be available under the terms of The Energy Performance of Buildings (Certificates and Inspections) (England and Wales) Regulations 2007 or the Home Report if in relation to a residential property in Scotland.
*This is the average speed from the provider with the fastest broadband package available at this postcode. The average speed displayed is based on the download speeds of at least 50% of customers at peak time (8pm to 10pm). Fibre/cable services at the postcode are subject to availability and may differ between properties within a postcode. Speeds can be affected by a range of technical and environmental factors. The speed at the property may be lower than that listed above. You can check the estimated speed and confirm availability to a property prior to purchasing on the broadband provider's website. Providers may increase charges. The information is provided and maintained by Decision Technologies Limited. **This is indicative only and based on a 2-person household with multiple devices and simultaneous usage. Broadband performance is affected by multiple factors including number of occupants and devices, simultaneous usage, router range etc. For more information speak to your broadband provider.
Map data ©OpenStreetMap contributors.






