
Whielden Lane, Winchmore Hill , Amersham, HP7

- PROPERTY TYPE
Barn Conversion
- BEDROOMS
3
- BATHROOMS
2
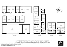
- SIZE
7,374 sq ft
685 sq m
- TENUREDescribes how you own a property. There are different types of tenure - freehold, leasehold, and commonhold.Read more about tenure in our glossary page.
Freehold
Description
• Two new build semi-detached houses, one finished to a particularly high standard and the other a shell
• Further development potential, subject to necessary planning permission, of around 6000sqft of sheds and barns
• Approx. 20 acres of fields on the outskirts of Amersham
• To be sold as a whole
• Beautiful views across the Chiltern Hills
• Sole agent
Entrance Hall
Engineered wood floor, underfloor heating, stairs rising to open plan sitting room, dining room, kitchen.
Kitchen
Vaulted space, engineered wood floor, electric under-floor heating, kitchen fitted with a range of matching base units and wall cabinets, integrated fridge, integrated freezer, integrated Bosch electric fan oven, integrated Bosch microwave fan oven, integrated Neff induction hob with extractor over, integrated Bosch wine cooler, built-in bin unit, white quartz worktop, double stainless steel sink unit with Quooker tap, integrated dishwasher, soft closing drawers, breakfast bar end with pendant lights over, large cupboard housing pressurised hot water system, extractor fan, spotlights.
Utility Room
Vaulted space, engineered wood floor, electric under-floor heating, range of matching base units and wall cabinets, white quartz worktop, stainless steel sink unit with mixer tap, integrated fridge, integrated freezer, plumbing for washing machine, space for condensing tumble dryer, chrome heated towel rail, spotlights.
Cloakroom WC
Engineered wood floor, electric under-floor heating, low flush WC, extractor fan, spotlights.
Hallway
Under stairs storage cupboard housing a water softener, spotlights.
Bedroom Two
Engineered wood floor, electric under-floor heating, built-in wardrobe cupboards with integrated power, air-conditioning unit, spotlights.
Principal Bedroom
Engineered wood floor, electric under-floor heating, built-in wardrobe cupboard, air-conditioning unit, spotlights.
Ensuite
Matching white suite comprising large walk-in shower cubicle with rainwater shower head and handheld shower, wash hand basin with mixer tap and drawers under, floating enclosed WC, chrome heated towel rail, Porcelain tile marble effect floor with electric under-floor heating, fully tiled, extractor fan, spotlights.
Bedroom Three
Engineered wood floor, electric under-floor heating, built-in wardrobe cupboards, storage cupboard, radiator, air-conditioning unit, spotlights.
Bathroom
White suite comprising panel bath with mixer tap and shower attachments, large walk-in shower cubicle with rainwater shower head and handheld shower, wash hand basin with mixer tap and drawers under, floating enclosed WC, chrome heated towel rail, porcelain tiled marble effect floor, electric under floor heating, fully tiled, extractor fan, spotlights.
Outside
Historically a cattle farm of approximately 20 acres, split into four large fields and trimmed by ancient woodland. Approximately 6000sq ft of sheds, barns, workshops and stables all with potential to convert subject to necessary planning permission. A small courtyard garden to the finished semidetached house. The property also benefits from a yard with a concrete surface, a small orchard and further hard standing space.
Brochures
Brochure 1- COUNCIL TAXA payment made to your local authority in order to pay for local services like schools, libraries, and refuse collection. The amount you pay depends on the value of the property.Read more about council Tax in our glossary page.
- Band: F
- PARKINGDetails of how and where vehicles can be parked, and any associated costs.Read more about parking in our glossary page.
- Ask agent
- GARDENA property has access to an outdoor space, which could be private or shared.
- Yes
- ACCESSIBILITYHow a property has been adapted to meet the needs of vulnerable or disabled individuals.Read more about accessibility in our glossary page.
- Ask agent
Whielden Lane, Winchmore Hill , Amersham, HP7
Add an important place to see how long it'd take to get there from our property listings.
__mins driving to your place
Get an instant, personalised result:
- Show sellers you’re serious
- Secure viewings faster with agents
- No impact on your credit score
Affordability
Notes
Staying secure when looking for property
Ensure you're up to date with our latest advice on how to avoid fraud or scams when looking for property online.
Visit our security centre to find out moreDisclaimer - Property reference RX585155. The information displayed about this property comprises a property advertisement. Rightmove.co.uk makes no warranty as to the accuracy or completeness of the advertisement or any linked or associated information, and Rightmove has no control over the content. This property advertisement does not constitute property particulars. The information is provided and maintained by Jeremy Swan, Great Missenden. Please contact the selling agent or developer directly to obtain any information which may be available under the terms of The Energy Performance of Buildings (Certificates and Inspections) (England and Wales) Regulations 2007 or the Home Report if in relation to a residential property in Scotland.
*This is the average speed from the provider with the fastest broadband package available at this postcode. The average speed displayed is based on the download speeds of at least 50% of customers at peak time (8pm to 10pm). Fibre/cable services at the postcode are subject to availability and may differ between properties within a postcode. Speeds can be affected by a range of technical and environmental factors. The speed at the property may be lower than that listed above. You can check the estimated speed and confirm availability to a property prior to purchasing on the broadband provider's website. Providers may increase charges. The information is provided and maintained by Decision Technologies Limited. **This is indicative only and based on a 2-person household with multiple devices and simultaneous usage. Broadband performance is affected by multiple factors including number of occupants and devices, simultaneous usage, router range etc. For more information speak to your broadband provider.
Map data ©OpenStreetMap contributors.








