
Grafton Lane, Binton, Stratford-Upon-Avon
- PROPERTY TYPE
Plot
- SIZE
5,022 sq ft
467 sq m
Key features
- A stunning prime rural land with Full Planning Permission
- Planning granted to build an exceptional 5,022sqft executive home
- A proposed five bedroom, five bathroom dwelling to replace existing bungalow
- Planning Ref - 23/02803/REM
- 2.15 acres set in stunning countryside
- 5 miles from Stratford Upon Avon
- Detached double garage with accommodation above
- Services connections in close proximity
- Freehold
- Viewing strictly by appointment
Description
An outstanding opportunity to acquire 2.15 acres of prime land in a beautiful rural setting, complete with full planning permission to build an impressive 5,022 sq ft executive family home with a detached double garage.
Nestled in stunning countryside, the approved plans allow for the demolition of the existing bungalow and the construction of a new home set more centrally within the expansive grounds. This thoughtful positioning enhances both privacy and curb appeal, offering generous landscaped gardens to the front and rear.
For more information, please contact the Sheldon Bosley Knight Land & New Homes team.
Please note: Boundary lines shown are for marketing purposes only and should not be relied upon for legal accuracy.
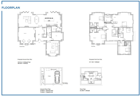
Proposed Accommodation - Ground Floor (2,534 sq ft):
Grand entrance hall
Spacious media room
Study
Private retreat room
Cloakroom / W.C.
Utility / boot room
Expansive open-plan kitchen, dining, and family area with dual-aspect bi-fold doors opening to a rear patio – ideal for entertaining and enjoying uninterrupted views
First Floor (2,488 sq ft):
Luxurious principal suite with dressing area and large en-suite
Four additional double bedrooms – each with its own en-suite
All bedrooms feature breathtaking views over rolling countryside
Planning Permission - District Council - Stratford District Council
23/02803/REM pursuant to outline application ref. 20/01526/VARY
Address
Grafton Lodge Nurseries Binton Stratford-upon-Avon CV37 9TX
Proposal
Submission of reserved matters relating to details of the appearance, landscaping, layout and scale, pursuant to outline application ref. 20/01526/VARY for the construction of one dwelling and a separate garage.
Application Type
Approval of Reserved Matters
Status
Approval of Reserved Matters
Decision
Approval of Reserved Matters
Date Decision Issued
26/03/2025
Former Nursery Site
Outline planning permission has also been granted for the demolition of the adjacent buildings and the residential development of four prestigious executive homes. These future residences will be accessed via the existing private entrance, ensuring a cohesive and exclusive development.
Full details of the planning application can be viewed on the Stratford-on-Avon District Council Planning Portal under reference 19/02940/OUT. The Reserved Matters application is due to be submitted shortly.
Location - Binton
Binton is a picturesque village and civil parish located in the Stratford-on-Avon district of Warwickshire, England, approximately 5 miles (8 km) west of Stratford-upon-Avon. It is conveniently situated near the A46 and A439 roads, facilitating easy car travel to neighbouring towns, including Stratford-upon-Avon, Warwick, and Leamington Spa.
While it is a tranquil village, essential amenities are available in nearby towns:
Education: The nearest primary school is located in Temple Grafton, with secondary schools in Stratford-upon-Avon and Alcester.
Shopping and Services: Stratford-upon-Avon offers a wide range of shops, supermarkets, healthcare facilities, and entertainment options.
For more detailed information about Binton, including community events and local governance, you can visit the Binton Parish Council website.
Services - We have been informed by the sellers that services connections are in close proximity to the plot. The site benefits from main sewerage, three-phase electrics, and water connection near the road. Prospective purchasers should make their own enquiries with the appropriate utility companies for the verification as to the availability, or otherwise, of services.
Rights Of Way, Easements And Wayleaves - The land is sold subject to and with the benefit of all rights and any other wayleaves or easements.
The vendor is not aware of any rights, however it is for the purchaser to satisfy their enquiries of the routes thereof.
Viewings - Viewings are strictly by appointment only.
Tenure - The land and property is freehold.
Brochures
BINTON BROCHURE.pdfGrafton Lane, Binton, Stratford-Upon-Avon
NEAREST STATIONS
Distances are straight line measurements from the centre of the postcode- Wilmcote Station2.9 miles
- Stratford-upon-Avon Parkway Station3.2 miles
- Stratford-upon-Avon Station3.7 miles
Notes
Disclaimer - Property reference 33952280. The information displayed about this property comprises a property advertisement. Rightmove.co.uk makes no warranty as to the accuracy or completeness of the advertisement or any linked or associated information, and Rightmove has no control over the content. This property advertisement does not constitute property particulars. The information is provided and maintained by Sheldon Bosley Knight, Land & New Homes, Warwickshire. Please contact the selling agent or developer directly to obtain any information which may be available under the terms of The Energy Performance of Buildings (Certificates and Inspections) (England and Wales) Regulations 2007 or the Home Report if in relation to a residential property in Scotland.
Map data ©OpenStreetMap contributors.






