
Lea Road, Stone, ST15

- PROPERTY TYPE
Detached Bungalow
- BEDROOMS
2
- BATHROOMS
1
- SIZE
Ask agent
- TENUREDescribes how you own a property. There are different types of tenure - freehold, leasehold, and commonhold.Read more about tenure in our glossary page.
Freehold
Key features
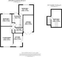
- Detached bungalow offering two generously sized double bedrooms, a spacious attic room, plus a family bathroom with a bath/shower duo, sink, and W/C.
- Bright lounge/diner, practical U-shaped kitchen, plus a further flexible reception room that could be ideal as a dressing room, home office or even a creative hobby room.
- Geneorusly sized rear garden with sunny patio seating space and lush grass lawns, the perfect spot for summer BBQs and weekend lounging.
- The front of the home offers a generously sized driveway with off-road parking for several vehicles plus a single garage for secure storage.
- Perfectly located in Walton near shops, healthcare services, eateries and Stone's busy centre. Amazing commuter links via bus, road, and rail.
Description
L is for the way you look at me… And this beautiful two bedroom detached bungalow in Walton is sure to catch your eye – and your heart. From the moment you step in, you will feel the love woven into every corner of this warm and cosy home. Enter into a well-designed, U-shaped kitchen with sleek cabinetry, ample space for appliances and plenty of room for culinary creations. Continuing through into the open-plan living/dining room, it's an ideal space for curling up with loved ones or entertaining guests in true Come Dine With Me style. On the ground floor, discover two spacious double bedrooms, plus a flexible second reception space that could be a stylish dressing room, productive home office, or a creative home space. The bathroom features a bath/shower, sink, and W/C. Upstairs reveals a spacious attic room that is perfect for a little extra space, a creative hobby room or storage. Plus, with a recently replaced boiler, this home is as efficient and worry-free as it is charming. Step outside to a generously sized rear garden with lush lawns and a sunny patio seating area, ideal for summer BBQs, weekend lounging or pottering about with plants. To the front is a driveway with ample off-road parking for several vehicles and a single garage for secure storage. Tucked away in Walton, you’re conveniently close to shops, eateries, healthcare facilities and Stone’s busy town centre. Commuters will appreciate the nearby bus routes, quick access to the A34 and the nearby Stone train station. So whether it’s the way this home looks at you, the way it offers more than you’ve ever dreamed, or the way it simply feels like home, one thing’s for sure… L is for the way you’ll fall in love with it.
EPC Rating: D
- COUNCIL TAXA payment made to your local authority in order to pay for local services like schools, libraries, and refuse collection. The amount you pay depends on the value of the property.Read more about council Tax in our glossary page.
- Band: C
- PARKINGDetails of how and where vehicles can be parked, and any associated costs.Read more about parking in our glossary page.
- Yes
- GARDENA property has access to an outdoor space, which could be private or shared.
- Yes
- ACCESSIBILITYHow a property has been adapted to meet the needs of vulnerable or disabled individuals.Read more about accessibility in our glossary page.
- Ask agent
Lea Road, Stone, ST15
Add an important place to see how long it'd take to get there from our property listings.
__mins driving to your place
Get an instant, personalised result:
- Show sellers you’re serious
- Secure viewings faster with agents
- No impact on your credit score

Your mortgage
Notes
Staying secure when looking for property
Ensure you're up to date with our latest advice on how to avoid fraud or scams when looking for property online.
Visit our security centre to find out moreDisclaimer - Property reference 493f7315-f9bb-4814-8974-eb91bb5b5aaf. The information displayed about this property comprises a property advertisement. Rightmove.co.uk makes no warranty as to the accuracy or completeness of the advertisement or any linked or associated information, and Rightmove has no control over the content. This property advertisement does not constitute property particulars. The information is provided and maintained by James Du Pavey, Stone. Please contact the selling agent or developer directly to obtain any information which may be available under the terms of The Energy Performance of Buildings (Certificates and Inspections) (England and Wales) Regulations 2007 or the Home Report if in relation to a residential property in Scotland.
*This is the average speed from the provider with the fastest broadband package available at this postcode. The average speed displayed is based on the download speeds of at least 50% of customers at peak time (8pm to 10pm). Fibre/cable services at the postcode are subject to availability and may differ between properties within a postcode. Speeds can be affected by a range of technical and environmental factors. The speed at the property may be lower than that listed above. You can check the estimated speed and confirm availability to a property prior to purchasing on the broadband provider's website. Providers may increase charges. The information is provided and maintained by Decision Technologies Limited. **This is indicative only and based on a 2-person household with multiple devices and simultaneous usage. Broadband performance is affected by multiple factors including number of occupants and devices, simultaneous usage, router range etc. For more information speak to your broadband provider.
Map data ©OpenStreetMap contributors.






