
4 bedroom end of terrace house for sale
Polefield Road, Blackley, Manchester, M9

- PROPERTY TYPE
End of Terrace
- BEDROOMS
4
- BATHROOMS
1
- SIZE
Ask agent
Key features
- 4 BEDROOMED PERIOD (1850's) END TERRACED
- IN NEED OF UPGRADING
- LEASEHOLD - £7 PER ANNUM
- NO CHAIN
- COUNCIL TAX BAND B
- CELLAR ROOM
- SOUTH FACING REAR GARDEN
- WITHIN WALKING DISTANCE OF BOGGART HOLE CLOUGH
- 3 MILES FROM MANCHESTER CITY CENTRE
Description
Henstock Property Services are delighted to market this 4 Bedroomed end Victorian Terraced house built in the 1850’s and retaining many original features and characteristics. The property sits on a generous plot with off-road parking to front, and benefits from an impressive South facing rear garden. The living accommodation, in need of upgrading, briefly comprises; entrance hallway, large front lounge, middle reception room, bright kitchen into sunroom with door to rear garden. The middle floor has large bathroom and 2 bedrooms, with 2 more bedrooms on the 2nd floor. Well situated in this much sought after location, just over 3 miles from Manchester City Centre, and within walking distance of Boggart Hole Clough.
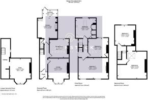
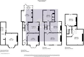
Entrance hallway
Front Lounge
3.91m x 4.75m (12' 10" x 15' 7")
Dining Room/Reception 2
3.67m x 3.54m (12' 0" x 11' 7")
Kitchen into Sunroom
Kitchen Area 3.69m x 3.90m (12' 1" x 12' 10")
Sunroom 2.84m x 1.26m (9' 4" x 4' 2")
Hallway
Steps down from under stair door, leading to hallway and access into front cellar room.
Cellar Room
3.96m x 4.78m (13' 0" x 15' 8")
Bathroom
3.82m x 3.75m (12' 6" x 12' 4")
Bedroom 4
3.78m x 3.48m (12' 5" x 11' 5")
Bedroom 1
5.56m x 3.93m (18' 3" x 12' 11")
Bedroom 3
3.62m x 3.81m (11' 11" x 12' 6")
Bedroom 2
5.6m x 5.15m (18' 4" x 16' 11")
Brochures
Brochure 1- COUNCIL TAXA payment made to your local authority in order to pay for local services like schools, libraries, and refuse collection. The amount you pay depends on the value of the property.Read more about council Tax in our glossary page.
- Band: B
- PARKINGDetails of how and where vehicles can be parked, and any associated costs.Read more about parking in our glossary page.
- Yes
- GARDENA property has access to an outdoor space, which could be private or shared.
- Yes
- ACCESSIBILITYHow a property has been adapted to meet the needs of vulnerable or disabled individuals.Read more about accessibility in our glossary page.
- Ask agent
Polefield Road, Blackley, Manchester, M9
Add an important place to see how long it'd take to get there from our property listings.
__mins driving to your place
Get an instant, personalised result:
- Show sellers you’re serious
- Secure viewings faster with agents
- No impact on your credit score

Your mortgage
Notes
Staying secure when looking for property
Ensure you're up to date with our latest advice on how to avoid fraud or scams when looking for property online.
Visit our security centre to find out moreDisclaimer - Property reference 29162779. The information displayed about this property comprises a property advertisement. Rightmove.co.uk makes no warranty as to the accuracy or completeness of the advertisement or any linked or associated information, and Rightmove has no control over the content. This property advertisement does not constitute property particulars. The information is provided and maintained by Henstock Property Services, Middleton. Please contact the selling agent or developer directly to obtain any information which may be available under the terms of The Energy Performance of Buildings (Certificates and Inspections) (England and Wales) Regulations 2007 or the Home Report if in relation to a residential property in Scotland.
*This is the average speed from the provider with the fastest broadband package available at this postcode. The average speed displayed is based on the download speeds of at least 50% of customers at peak time (8pm to 10pm). Fibre/cable services at the postcode are subject to availability and may differ between properties within a postcode. Speeds can be affected by a range of technical and environmental factors. The speed at the property may be lower than that listed above. You can check the estimated speed and confirm availability to a property prior to purchasing on the broadband provider's website. Providers may increase charges. The information is provided and maintained by Decision Technologies Limited. **This is indicative only and based on a 2-person household with multiple devices and simultaneous usage. Broadband performance is affected by multiple factors including number of occupants and devices, simultaneous usage, router range etc. For more information speak to your broadband provider.
Map data ©OpenStreetMap contributors.





