
Fodder Fen Road, Manea, March
- PROPERTY TYPE
Land
- SIZE
Ask agent
Key features
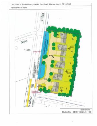
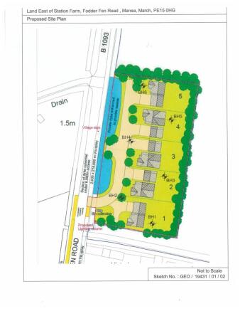
- Development Land
- Five Plots with the erection of Two Storey Dwellings on each plot
- Planning Ref. F/YR23/0072/O
- Outskirts of Village of Manea
- Rural Location
- Convenient to Train Station
Description
SUMMARY
Ideal Opportunity to purchase a small development of five building plots with outline planning permission for the erection of a two storey dwelling. Situated on the outskirts of the Village of Manea, with easy access to Manea Train Station. Planning Ref. F/YR23/0072/O
DESCRIPTION
Ideal Opportunity to purchase a small development of five building plots with outline planning permission for the erection of a two storey dwelling. Situated on the outskirts of the Village of Manea, with easy access to Manea Train Station. Planning Ref. F/YR23/0072/O
Size
Each Plot is approx 61ft frontage x 118ft depth (sts)
1. MONEY LAUNDERING REGULATIONS: Intending purchasers will be asked to produce identification documentation at a later stage and we would ask for your co-operation in order that there will be no delay in agreeing the sale.
2. General: While we endeavour to make our sales particulars fair, accurate and reliable, they are only a general guide to the property and, accordingly, if there is any point which is of particular importance to you, please contact the office and we will be pleased to check the position for you, especially if you are contemplating travelling some distance to view the property.
3. The measurements indicated are supplied for guidance only and as such must be considered incorrect.
4. Services: Please note we have not tested the services or any of the equipment or appliances in this property, accordingly we strongly advise prospective buyers to commission their own survey or service reports before finalising their offer to purchase.
5. THESE PARTICULARS ARE ISSUED IN GOOD FAITH BUT DO NOT CONSTITUTE REPRESENTATIONS OF FACT OR FORM PART OF ANY OFFER OR CONTRACT. THE MATTERS REFERRED TO IN THESE PARTICULARS SHOULD BE INDEPENDENTLY VERIFIED BY PROSPECTIVE BUYERS OR TENANTS. NEITHER SEQUENCE (UK) LIMITED NOR ANY OF ITS EMPLOYEES OR AGENTS HAS ANY AUTHORITY TO MAKE OR GIVE ANY REPRESENTATION OR WARRANTY WHATEVER IN RELATION TO THIS PROPERTY.
Brochures
PDF Property ParticularsFull DetailsFodder Fen Road, Manea, March
NEAREST STATIONS
Distances are straight line measurements from the centre of the postcode- Manea Station0.1 miles
- March Station5.6 miles
Notes
Disclaimer - Property reference MCH113417. The information displayed about this property comprises a property advertisement. Rightmove.co.uk makes no warranty as to the accuracy or completeness of the advertisement or any linked or associated information, and Rightmove has no control over the content. This property advertisement does not constitute property particulars. The information is provided and maintained by William H. Brown, March. Please contact the selling agent or developer directly to obtain any information which may be available under the terms of The Energy Performance of Buildings (Certificates and Inspections) (England and Wales) Regulations 2007 or the Home Report if in relation to a residential property in Scotland.
Map data ©OpenStreetMap contributors.







