Duncan Drive, Irvine, KA12

- PROPERTY TYPE
Semi-detached Villa
- BEDROOMS
3
- BATHROOMS
2
- SIZE
Ask agent
- TENUREDescribes how you own a property. There are different types of tenure - freehold, leasehold, and commonhold.Read more about tenure in our glossary page.
Freehold
Key features
- Large Extensive Plot
- Three Double Bedrooms
- Recently Fitted Bathroom
- Conservatory
- Spacious Lounge/ Diner
- Double Garage
- Central Location
- Multi Car Driveway
Description
***CLOSING DATE FRIDAY 27TH JUNE AT 12 NOON***
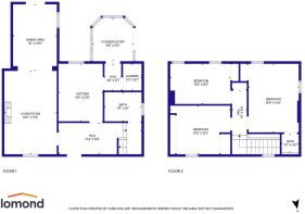
Occupying a large plot with extensive garden grounds and ample parking and outbuildings. 2 Duncan Drive offers generous living space with three bedrooms, large lounge/ diner, conservatory, kitchen, and newly fitted bathroom. The location will appeal to the family market, and those seeking ease of access to the town, schools and main road networks.
Into greater detail the entrance hallway is spacious and welcoming and is flooded with natural light. The lounge/ diner stretches the full length of the property with French doors and views to the garden. To the rear of the property off the entrance hallway is the kitchen offering a range of floor and wall mounted units and with free standing cooker, and integrated hood. Off the kitchen the utility area leads to the rear facing conservatory a perfect space for todays modern living and working from home.
The bathroom is located on the half landing; a recent upgrade with both, and over shower, with WC and WHB all finished to modern fixtures, fittings and tiling. All three bedrooms are double in size. The master bedrooms feature full length fitted wardrobes, with dual aspect windows and a master en suite with WC. Bedroom 2 features full length fitted wardrobes, whilst bedroom 3 also benefits from dual aspect windows.
Externally the property occupies an extensive plot, with multi car driveway, double garage and large family sized gardens. The whole garden is geared towards entertaining, family gatherings and socialising. The timber shed has its very own bar.
Travel Directions
For Sat Nav Purposes the postcode KA12 0HY
Brochures
Home Report- COUNCIL TAXA payment made to your local authority in order to pay for local services like schools, libraries, and refuse collection. The amount you pay depends on the value of the property.Read more about council Tax in our glossary page.
- Band: C
- PARKINGDetails of how and where vehicles can be parked, and any associated costs.Read more about parking in our glossary page.
- Yes
- GARDENA property has access to an outdoor space, which could be private or shared.
- Yes
- ACCESSIBILITYHow a property has been adapted to meet the needs of vulnerable or disabled individuals.Read more about accessibility in our glossary page.
- Ask agent
Energy performance certificate - ask agent
Duncan Drive, Irvine, KA12
Add an important place to see how long it'd take to get there from our property listings.
__mins driving to your place
Get an instant, personalised result:
- Show sellers you’re serious
- Secure viewings faster with agents
- No impact on your credit score
Your mortgage
Notes
Staying secure when looking for property
Ensure you're up to date with our latest advice on how to avoid fraud or scams when looking for property online.
Visit our security centre to find out moreDisclaimer - Property reference 29170354. The information displayed about this property comprises a property advertisement. Rightmove.co.uk makes no warranty as to the accuracy or completeness of the advertisement or any linked or associated information, and Rightmove has no control over the content. This property advertisement does not constitute property particulars. The information is provided and maintained by Lomond, Irvine. Please contact the selling agent or developer directly to obtain any information which may be available under the terms of The Energy Performance of Buildings (Certificates and Inspections) (England and Wales) Regulations 2007 or the Home Report if in relation to a residential property in Scotland.
*This is the average speed from the provider with the fastest broadband package available at this postcode. The average speed displayed is based on the download speeds of at least 50% of customers at peak time (8pm to 10pm). Fibre/cable services at the postcode are subject to availability and may differ between properties within a postcode. Speeds can be affected by a range of technical and environmental factors. The speed at the property may be lower than that listed above. You can check the estimated speed and confirm availability to a property prior to purchasing on the broadband provider's website. Providers may increase charges. The information is provided and maintained by Decision Technologies Limited. **This is indicative only and based on a 2-person household with multiple devices and simultaneous usage. Broadband performance is affected by multiple factors including number of occupants and devices, simultaneous usage, router range etc. For more information speak to your broadband provider.
Map data ©OpenStreetMap contributors.




