Upper Kitesnest, Whiteshill, Stroud

- PROPERTY TYPE
Detached
- BEDROOMS
3
- BATHROOMS
2
- SIZE
1,399 sq ft
130 sq m
- TENUREDescribes how you own a property. There are different types of tenure - freehold, leasehold, and commonhold.Read more about tenure in our glossary page.
Freehold
Key features
- Elevated Village Location
- Fabulous Far Reaching Views
- 3 Bedrooms
- Flexible Ground Floor Rooms
- 2 Bathrooms
- Workshop
- Off Street Parking
- Garage
- Viewing Advised
- No Onward Chain, EPC D 59/78
Description
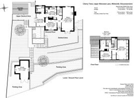
Description - Cherry Trees is well worth an internal inspection, not only to appreciate the property and its flexible spaces, but mainly to enjoy the fabulous far reaching views. Steps lead up from the parking area to a lovely, decked terrace with sociable al fresco entertaining space.
Internally, the entrance hall feeds into a sociable, dual aspect sitting/dining room with direct access to the terrace. Opposite, a second reception room could easily double up as a fourth bedroom if required or dining room/home office, with conservatory beyond. The fitted kitchen can also be accessed both from the hallway or the conservatory with its windows allowing for the light to flood in. As illustrated on the floor plan, a modern bathroom is also located upon this level. On the first floor, two of the double bedrooms are located to the front with the windows framing the view and the master offering wall to wall fitted wardrobes, together with a single bedroom to the side/rear. These are serviced by a shower room.
A rarity for the area, the property offers off street parking for several vehicles together with a garage. The side and the front elevations are interspersed with established shrubs and trees, both offering lovely terraced seating areas, together with a feature pond and large shed/workshop and covered area. An additional enclosed garden area is located to the rear.
Brochures
Upper Kitesnest, Whiteshill, Stroud- COUNCIL TAXA payment made to your local authority in order to pay for local services like schools, libraries, and refuse collection. The amount you pay depends on the value of the property.Read more about council Tax in our glossary page.
- Band: E
- PARKINGDetails of how and where vehicles can be parked, and any associated costs.Read more about parking in our glossary page.
- Yes
- GARDENA property has access to an outdoor space, which could be private or shared.
- Yes
- ACCESSIBILITYHow a property has been adapted to meet the needs of vulnerable or disabled individuals.Read more about accessibility in our glossary page.
- Ask agent
Upper Kitesnest, Whiteshill, Stroud
Add an important place to see how long it'd take to get there from our property listings.
__mins driving to your place
Get an instant, personalised result:
- Show sellers you’re serious
- Secure viewings faster with agents
- No impact on your credit score
Your mortgage
Notes
Staying secure when looking for property
Ensure you're up to date with our latest advice on how to avoid fraud or scams when looking for property online.
Visit our security centre to find out moreDisclaimer - Property reference 33484483. The information displayed about this property comprises a property advertisement. Rightmove.co.uk makes no warranty as to the accuracy or completeness of the advertisement or any linked or associated information, and Rightmove has no control over the content. This property advertisement does not constitute property particulars. The information is provided and maintained by Murrays Estate Agents, Stroud. Please contact the selling agent or developer directly to obtain any information which may be available under the terms of The Energy Performance of Buildings (Certificates and Inspections) (England and Wales) Regulations 2007 or the Home Report if in relation to a residential property in Scotland.
*This is the average speed from the provider with the fastest broadband package available at this postcode. The average speed displayed is based on the download speeds of at least 50% of customers at peak time (8pm to 10pm). Fibre/cable services at the postcode are subject to availability and may differ between properties within a postcode. Speeds can be affected by a range of technical and environmental factors. The speed at the property may be lower than that listed above. You can check the estimated speed and confirm availability to a property prior to purchasing on the broadband provider's website. Providers may increase charges. The information is provided and maintained by Decision Technologies Limited. **This is indicative only and based on a 2-person household with multiple devices and simultaneous usage. Broadband performance is affected by multiple factors including number of occupants and devices, simultaneous usage, router range etc. For more information speak to your broadband provider.
Map data ©OpenStreetMap contributors.




