
Plot for sale
Cattle Buildings at Great Cotton Farm, Dartmouth
- PROPERTY TYPE
Plot
- BEDROOMS
6
- BATHROOMS
4
- SIZE
Ask agent
Key features
- Class Q Approval for 7 Unit
- Situated in Dartmouth
- Access Approved | Unique Opportunity
- Fantastic Position
- Energy Efficient Homes
- Two 1-bedroom units | One 2-bedroom unit
- Four 3-bedroom units
- Development Opportunity
- Services Nearby
Description
DESCRIPTION
Luscombe Maye are delighted to bring to market the Cattle Buildings at Great Cotton Farm, an excellent opportunity for a development on the outskirts of Dartmouth with the Full Planning Consent for the conversion of 7 residential dwellings following Class Q approval. The development is of contemporary design that incorporates landscaping, biodiversity enhancement and renewable energy technology. For planning documents please download the 'brochures' below or search 0768/25/PDM on South Hams District Council Planning Portal.
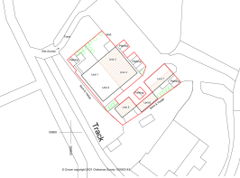
It is proposed to convert the range of farm buildings into 7 residential dwellings under Class Q. The application is supported by a Structural Appraisal for the buildings prepared by HB Surveying Ltd which confirms that the barns are in good structural order and can therefore be converted under the Class Q criteria. The Structural Appraisal contains a Schedule of Construction Elements confirming that the proposal will involve the conversion of each of the buildings utilising the existing materials and structure.
Detailed as-existing and as-proposed elevation drawings and floor plans accompany
the application showing how the site is to be laid out. The existing silage barn, comprising the larger building to the north, will be split into 4 3-bedroom units, each having a floor area of 100m².
The cluster of 3 dairy buildings to the south will each be converted into 2 1-bedroom units, comprising 50m²and 54m² and a 2-bedroom unit of 70m² internal floor area respectively. The application is also supported by a Preliminary Ecological Appraisal confirming that
no protected species will be impacted by this proposal, but wildlife provision is made in the plans with the insertion of bat and bird boxes as per the recommendations.
DARTMOUTH
The ancient town and deepwater port of Dartmouth is set in a picturesque location, with steep wooded hillsides framing the valley, leading you down to the famous River Dart at the bottom of the valley. The town itself sits right on the river with the embankment being a promenade which runs the length of the town. In addition to the views, the town has a wide selection bistros, restaurants, boutiques and specialist shops lining its narrow streets. There is a strong historic atmosphere in the town with its preserved medieval buildings and structures- the Cherub pub and Agincourt House are both 14th century buildings, the timber on the Butterwalk arcade dates from the 1630s and the Cobbled Bayards Cove has changed little since 1539.
There are plenty of opportunities for sailing and fishing and the South Hams’ rolling countryside and excellent beaches are within immediate reach.
SERVICES
Water and electricity are available near by. Prospective purchasers to address enquires with South West Water and Western Power respectively.
DIRECTIONS
What3Words - quick.amplifier.hairspray
Access from Venn Lane
Brochures
Brochure 1Brochure 2Brochure 3Brochure 4Brochure 5Brochure 6Brochure 7Cattle Buildings at Great Cotton Farm, Dartmouth
NEAREST STATIONS
Distances are straight line measurements from the centre of the postcode- Paignton Station6.5 miles
Notes
Disclaimer - Property reference S1347502. The information displayed about this property comprises a property advertisement. Rightmove.co.uk makes no warranty as to the accuracy or completeness of the advertisement or any linked or associated information, and Rightmove has no control over the content. This property advertisement does not constitute property particulars. The information is provided and maintained by Luscombe Maye, Totnes. Please contact the selling agent or developer directly to obtain any information which may be available under the terms of The Energy Performance of Buildings (Certificates and Inspections) (England and Wales) Regulations 2007 or the Home Report if in relation to a residential property in Scotland.
Map data ©OpenStreetMap contributors.










