Hanson Avenue, Normanton, Normanton, West Yorkshire

- PROPERTY TYPE
Semi-Detached
- BEDROOMS
3
- BATHROOMS
2
- SIZE
Ask agent
- TENUREDescribes how you own a property. There are different types of tenure - freehold, leasehold, and commonhold.Read more about tenure in our glossary page.
Freehold
Key features
- No Onward Chain
- Semi-Detached Property
- Entrance Hall
- Spacious Lounge
- Modern Fitted Kitchen
- Ground Floor Bathroom
- Master Bedroom with En-suite
- Two Further Bedrooms
- Gardens to Front & Rear
- Driveway
Description
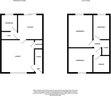
HALLWAY Having central heating radiator.
LOUNGE 13' 7" x 13' 10" (4.14m x 4.22m) Having electric fire with brass trim, modern surround, back and hearth, central heating radiator, double glazed window, under stairs store cupboard and telephone point.
KITCHEN 9' 3" x 10' 8" (2.82m x 3.25m) Having a comprehensive range of white high-gloss units to high and low-level with steel handles, contrasting work surface, sink and drainer with mixer tap, peninsular breakfast bar, built-in double over, ceramic hob with extractor above, brick set tiled splash backs, combination condensing boiler and patio doors to rear garden.
INNER HALLWAY
BATHROOM 5' 6" x 5' 11" (1.68m x 1.8m) Having white three-piece suite comprising; low flush W.C, pedestal hand basin with mixer tap, panel bath with tiled splash backs, window with obscured glass and central heating radiator.
STAIR CASE TO FIRST FLOOR LANDING Having double glazed window and access to roof space.
BEDROOM ONE 16' 2.82" x 10' 4" (4.93m x 3.15m) Central heating radiator and double glazed window.
EN-SUITE SHOWER ROOM 6' 0" x 6' 7" (1.83m x 2.01m) Having a white three-piece suite comprising; low flush W.C, sink unit with storage beneath, tiled shower cubicle with mains shower and an extractor fan.
BEDROOM TWO 12' 6" x 9' 2" (3.81m x 2.79m) Central heating radiator and a double glazed window overlooking rear garden.
BEDROOM THREE 7' 3" x 9' 3" (2.21m x 2.82m) Central heating radiator and a double glazed window overlooking rear garden.
EXTERIOR To the front of the property there is a lawned garden with planted beds, a concrete driveway provides ample off street parking and leads to rear garden, having a concrete patio, lawn garden, greenhouses and sheds.
BOUNDARIES The boundaries and ownerships have not been checked on the Title Deeds for any discrepancies or rights of way. All prospective purchasers should make their own enquiries before proceeding to exchange of contracts.
FLOOR PLANS These floor plans are intended as a rough guide only and are not intended as an exact representation and should not be scaled. We can not confirm the accuracy of these plans.
MEASUREMENTS There is a six inch measurement tolerance or metric equivalent. All measurements are for general guidance purposes only and are approximate. Due to variations and tolerances in metric and imperial measurements, measurements contained in these particulars must not be relied upon for ordering carpets, furniture etc.
NOTES None of the installed services and equipment have been tested and no warranties of any kind can be given accordingly, prospective purchasers should bear this in mind when formulating their offers. The sellers do not include in the sale any carpets, light fittings, floor covering, curtains, blinds, furnishing, electrical/gas appliances (whether connected or not) or any other fixtures and fittings unless expressly mentioned in these particulars.
- COUNCIL TAXA payment made to your local authority in order to pay for local services like schools, libraries, and refuse collection. The amount you pay depends on the value of the property.Read more about council Tax in our glossary page.
- Ask agent
- PARKINGDetails of how and where vehicles can be parked, and any associated costs.Read more about parking in our glossary page.
- Off street
- GARDENA property has access to an outdoor space, which could be private or shared.
- Yes
- ACCESSIBILITYHow a property has been adapted to meet the needs of vulnerable or disabled individuals.Read more about accessibility in our glossary page.
- Ask agent
Hanson Avenue, Normanton, Normanton, West Yorkshire
Add an important place to see how long it'd take to get there from our property listings.
__mins driving to your place
Get an instant, personalised result:
- Show sellers you’re serious
- Secure viewings faster with agents
- No impact on your credit score



Your mortgage
Notes
Staying secure when looking for property
Ensure you're up to date with our latest advice on how to avoid fraud or scams when looking for property online.
Visit our security centre to find out moreDisclaimer - Property reference 102063054225. The information displayed about this property comprises a property advertisement. Rightmove.co.uk makes no warranty as to the accuracy or completeness of the advertisement or any linked or associated information, and Rightmove has no control over the content. This property advertisement does not constitute property particulars. The information is provided and maintained by Chris North Properties LTD, Normanton. Please contact the selling agent or developer directly to obtain any information which may be available under the terms of The Energy Performance of Buildings (Certificates and Inspections) (England and Wales) Regulations 2007 or the Home Report if in relation to a residential property in Scotland.
*This is the average speed from the provider with the fastest broadband package available at this postcode. The average speed displayed is based on the download speeds of at least 50% of customers at peak time (8pm to 10pm). Fibre/cable services at the postcode are subject to availability and may differ between properties within a postcode. Speeds can be affected by a range of technical and environmental factors. The speed at the property may be lower than that listed above. You can check the estimated speed and confirm availability to a property prior to purchasing on the broadband provider's website. Providers may increase charges. The information is provided and maintained by Decision Technologies Limited. **This is indicative only and based on a 2-person household with multiple devices and simultaneous usage. Broadband performance is affected by multiple factors including number of occupants and devices, simultaneous usage, router range etc. For more information speak to your broadband provider.
Map data ©OpenStreetMap contributors.




