Restaurant to lease
61 Osborne Road, Southsea, Hampshire, PO5 3LS
- SIZE AVAILABLE
969-1,603 sq ft
90-149 sq m
- SECTOR
Restaurant to lease
Lease details
- Lease available date:
- Ask agent
Key features
- Central location within Southsea
- Thriving retail and leisure destination
- Commercial kitchen with existing extraction
- Open-plan dining area with approximately 52 covers
- The occupier may be entitled to 100% Small Business Rate relief
- New FRI lease, subject to vacant possession
- Rent £32,500 pax
- Premium sought for fixture and fittings
- Occupiers in the vicinity including Waitrose, Queens Hotel, Southsea Coffee, Rapscallions and Rocka
Description
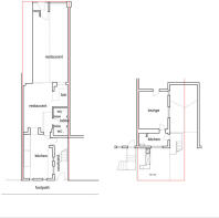
The property comprises a ground floor restaurant premises arranged to provide an open-plan dining area with approximately 52 covers, a bar, a fully fitted commercial kitchen to the rear, and customer WC facilities. Additionally, there is a basement storage area accessed via a trap door.
Location
Osborne Road, Palmerston Road and Marmion Road form the main commercial centre of Southsea. The area is a popular, established retail and leisure destination, with national and independent occupiers in the vicinity including Waitrose, Queens Hotel, Southsea Coffee, Rapscallions and Rocka.
Planning
A new Use Classes Order (UCO) came into effect on 1st September 2020. Under the new UCO a new Use Class E was introduced to cover commercial, business and service uses. Use Class E encompasses A1, A2, A3, B1 and some D1 and D2 uses under the former UCO. We therefore understand that the premises benefit from Class E 'Commercial Business and Service' use within the Use Classes Order 2020.
The property also benefits from a premises licence.
VAT
We understand that the property is not elected for VAT.
Accommodation
The accommodation has the following approximate Net Internal Area (NIA):
Business Rates / Council Tax Band
Rateable Value (2023): £11,500
Rateable Value (Scheduled for Implementation from 1st April 2026): £12,750
Occupiers will pay approximately 50% of this per annum (on sub £50,001 Rateable Values) and approximately 55% on Ratable Values above.
Interested parties should make their own enquiries to satisfy themselves of their business rates liability:
EPC
We understand the property has an EPC rating of B-50.
Legal Fees
The tenant will be responsible for their own legal costs and a contribution to the landlords legal fees will be required of £1,250 plus VAT.
Brochures
61 Osborne Road, Southsea, Hampshire, PO5 3LS
NEAREST STATIONS
Distances are straight line measurements from the centre of the postcode- Portsmouth & Southsea Station0.9 miles
- Fratton Station1.1 miles
- Portsmouth Harbour Station1.1 miles
Notes
Disclaimer - Property reference 7120LH. The information displayed about this property comprises a property advertisement. Rightmove.co.uk makes no warranty as to the accuracy or completeness of the advertisement or any linked or associated information, and Rightmove has no control over the content. This property advertisement does not constitute property particulars. The information is provided and maintained by Flude Property Consultants, Portsmouth. Please contact the selling agent or developer directly to obtain any information which may be available under the terms of The Energy Performance of Buildings (Certificates and Inspections) (England and Wales) Regulations 2007 or the Home Report if in relation to a residential property in Scotland.
Map data ©OpenStreetMap contributors.






