
3 bedroom detached bungalow for sale
Bowling Green Close, Bishops Castle

- PROPERTY TYPE
Detached Bungalow
- BEDROOMS
3
- BATHROOMS
2
- SIZE
Ask agent
- TENUREDescribes how you own a property. There are different types of tenure - freehold, leasehold, and commonhold.Read more about tenure in our glossary page.
Freehold
Key features
- A most attractive detached bungalow
- 3 Bedrooms, family bathroom and shower room
- Living room, kitchen, study, large hallway
- Sitting in a sizeable peaceful plot
- Open plan gardens to front, private gardens to rear
- Within a short walk to all the town's amenities
Description
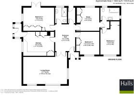
General Remarks - 15 Bowling Green Close occupies one of the most desirable and exclusive locations in this wonderful and historic market town. One of only 17 on this quiet cul-de-sac, set in large gardens and only a short walk from the town centre, this individual bungalow is worthy of closer inspection. Built in the late 1970's, the accommodation briefly comprises a welcoming and large entrance hall off which all other rooms lie, including the light and spacious living room with windows to three elevations, kitchen/breakfast with access to the side gardens, 3 good sized bedrooms, modern shower room and separate bathroom together with a good study/office which could be adapted to provide a 4th bedroom if required.
A notable feature are the gardens which comprise an open plan section to the front with generous drive and parking area, and a delightful side patio with access to the kitchen porch and to the path which leads into town. To the rear are most private and landscaped gardens which feature a covered patio, ornamental pond and a wide selection of mature shrubs, herbaceous borders and shrubs and useful garden buildings.
Situation - Bowling Green Close is situated in a most convenient position, close to the heart of the town but retaining a picturesque tranquility, each occupying a large plot which is rare on any modern development. It is just a short walk to the main streets of Bishops Castle which offers an excellent range of local amenities and services whilst also being accessible to the surrounding countryside, most of which is designated as being of Outstanding Natural Beauty. The larger towns of Shrewsbury and Ludlow are both within comfortable driving distance and have access to the national road and railway network.
Accommodation - Approached by a private drive and turning area, the accommodation comprises:
Entrance Porch - Into a:
Entrance Hall - 3.99m x 3.00m (13'1" x 9'10") - A large space connecting to the other rooms with double doors to:
Living Room - 6.58m x 4.78m (21'7" x 15'8") - With windows to three elevations and views to distant hillsides, feature fireplace, fitted carpet, radiator, WiFi and TV points.
Kitchen/Diner - 4.70m x 3.61m (15'5" x 11'10") - With a range of timber base and wall units inset with a stainless steel sink unit, four ring electric hob and oven with pull-out extractor, space for table and chairs, window to side patio and porch and recessed pantry cupboard.
Bedroom 1 - 4.70m x 3.48m (15'5" x 11'5") - Currently used as a sitting room but with French windows to the rear gardens. Fitted wardrobes, fitted carpet and radiator.
Shower Room - Comprising fully tiled walls with a walk-in shower, WC, wash basin and vanity cupboard.
Off the hallway is a short passage with an external glazed door to the rear gardens.
Study - 3.48m x 2.82m (11'5" x 9'3") - Overlooking the covered patio and gardens with radiator, fitted shelving and cupboards with further access to:
Bedroom 2 - 4.50m x 2.87m (14'9" x 9'5") - With window to the front gardens, fitted carpet and radiator.
Bedroom 3 - 3.40m x 2.90m (11'2" x 9'6") - With window to the front gardens, fitted carpet, radiator and fitted wardrobe.
Bathroom - With panelled bath, WC, wash basin, vinyl floor and chrome towel radiator.
Outside - To the front is the private drive with open lawned gardens with specimen trees and bushes. At the side is a large patio with direct access to the kitchen and the path which leads into town. This leads to the well screened and sizeable rear gardens which feature lawned areas bordered by a variety of mature shrubs, plants and trees.
Along the rear of the bungalow is a covered patio area which can be used all times of the year and overlooking the raised water feature. In addition are some useful buildings including the Greenhouse (12' x 8') timber workshop, tool shed and hobby shed, most of which are tucked away from view.
Services - Mains water, electricity and drainage are connected. Oil central heating and double-glazing are installed. NOTE: None of the services or installations have been tested by the Agents.
Viewing - Strictly through the Agents: Halls, 33b Church Street, Bishops Castle, SY9 5DA. Telephone: .
Council Tax - Shropshire Council - Band D.
Anti Money Laundering Regulations (Aml) Checks - We are legally obligated to undertake anti-money laundering checks on all property purchasers. Whilst we are responsible for ensuring that these checks, and any ongoing monitoring, are conducted properly; the initial checks will be handled on our behalf by a specialist company, Movebutler, who will reach out to you once your offer has been accepted. The charge for these checks is £30 (including VAT) per purchaser, which covers the necessary data collection and any manual checks or monitoring that may be required. This cost must be paid in advance, directly to Movebutler, before a memorandum of sale can be issued, and is non-refundable. We thank you for your cooperation.
Brochures
Bowling Green Close, Bishops Castle- COUNCIL TAXA payment made to your local authority in order to pay for local services like schools, libraries, and refuse collection. The amount you pay depends on the value of the property.Read more about council Tax in our glossary page.
- Ask agent
- PARKINGDetails of how and where vehicles can be parked, and any associated costs.Read more about parking in our glossary page.
- Yes
- GARDENA property has access to an outdoor space, which could be private or shared.
- Yes
- ACCESSIBILITYHow a property has been adapted to meet the needs of vulnerable or disabled individuals.Read more about accessibility in our glossary page.
- Ask agent
Bowling Green Close, Bishops Castle
Add an important place to see how long it'd take to get there from our property listings.
__mins driving to your place
Get an instant, personalised result:
- Show sellers you’re serious
- Secure viewings faster with agents
- No impact on your credit score




Your mortgage
Notes
Staying secure when looking for property
Ensure you're up to date with our latest advice on how to avoid fraud or scams when looking for property online.
Visit our security centre to find out moreDisclaimer - Property reference 33966537. The information displayed about this property comprises a property advertisement. Rightmove.co.uk makes no warranty as to the accuracy or completeness of the advertisement or any linked or associated information, and Rightmove has no control over the content. This property advertisement does not constitute property particulars. The information is provided and maintained by Halls Estate Agents, Bishops Castle. Please contact the selling agent or developer directly to obtain any information which may be available under the terms of The Energy Performance of Buildings (Certificates and Inspections) (England and Wales) Regulations 2007 or the Home Report if in relation to a residential property in Scotland.
*This is the average speed from the provider with the fastest broadband package available at this postcode. The average speed displayed is based on the download speeds of at least 50% of customers at peak time (8pm to 10pm). Fibre/cable services at the postcode are subject to availability and may differ between properties within a postcode. Speeds can be affected by a range of technical and environmental factors. The speed at the property may be lower than that listed above. You can check the estimated speed and confirm availability to a property prior to purchasing on the broadband provider's website. Providers may increase charges. The information is provided and maintained by Decision Technologies Limited. **This is indicative only and based on a 2-person household with multiple devices and simultaneous usage. Broadband performance is affected by multiple factors including number of occupants and devices, simultaneous usage, router range etc. For more information speak to your broadband provider.
Map data ©OpenStreetMap contributors.





