3 bedroom terraced house for sale
Tyleri Gardens, Victor Road, Abertillery

- PROPERTY TYPE
Terraced
- BEDROOMS
3
- BATHROOMS
2
- SIZE
893 sq ft
83 sq m
- TENUREDescribes how you own a property. There are different types of tenure - freehold, leasehold, and commonhold.Read more about tenure in our glossary page.
Freehold
Key features
- 3 Bedrooms
- Driveway
- Ensuite Shower
- First floor family bathroom
- Gas Combi Boiler
- Indian Sandstone Rear Patio
- Modern Kitchen
- UPVC Windows And Doors
Description
The ground floor comprises a welcoming lounge with open-plan staircase leading to the first floor. There is a bay window to the rear and a window to the front aspect bringing in loads of natural light.
The modern fitted kitchen features a range of wall and base units and a built-in electric oven, and a hob. There is space and plumbing for the washing machine, fridge freezer and tumble dryer.
To the rear, there is a porch area which leads to a ground floor bedroom, complete with ensuite bathroom - ideal for guests or multi-generational living.
Upstairs, you'll find two further bedrooms and a contemporary family bathroom, offering ample space and flexibility.
Externally, the property benefits from a private driveway with parking for two vehicles to the front. To the rear, there is a beautifully presented Indian sandstone patio area, perfect for outdoor dining and entertaining.
This is a fantastic opportunity to purchase a modern family home in a convenient and desirable location.
Early viewing is highly recommended.
.
,
Council Tax Band: B (BGCBC Council Tax)
Tenure: Freehold
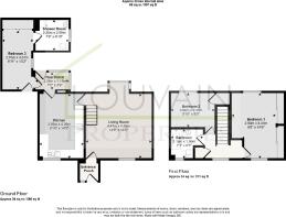
Porch
1.28m x 1.32m
uPVC door. Plastered walls, textured ceiling. Tiles as laid. Oak door opens to the lounge.
Lounge
4.52m x 4.34m
uPVC window to the front aspect. uPVC bay window to the rear. Open plan stairs. Plastered walls, 2 walls wallpapered. Plastered ceiling with coving around. Feature light fittings. Laminate flooring as laid. Door to the kitchen.
Kitchen
4.64m x 2.95m
uPVC window aspect, wood window and door to the rear aspect. Plastered walls and ceiling. Laminate as laid. White kitchen with a range of wall and base units, contrasting worktops over, tiled splashbacks around. Built-in electric oven and hob. Space and plumbing for the washing machine, tumble dryer. and fridge freezer.
Rear Porch
1.14m x 2.24m
uPVC windows and door to the rear aspect. Carpet as laid.
Bedroom 3
1.97m x 4.5m
Bedroom 3 is situated to the ground floor. Built in mirror fitted wardrobes. Plastered walls and ceiling. Carpet as laid. uPVC window to the side aspect. uPVC door to the front aspect. Feature light fittings. Door to the en-suite.
En-Suite Shower Room
2.19m x 2.08m
En-suite shower room comprising of a walk-in shower cubicle, with large shower head. Built-in W.C. and vanity wash hand basin, with built under draw and cupboard storage. Tiled to the walls and floor. Decorative cladding with feature light fittings.
Landing
Doors to all rooms. uPVC window to the front aspect. Plastered walls textured ceiling. Carpet as laid. Cupboard housing the gas combi boiler.
Bedroom 1
3.7m x 4.38m
uPVC windows to the front and rear aspect. Fitted mirror wardrobes along the one wall. Plastered walls and ceiling. Carpet as laid.
Bedroom 2
2.41m x 2.96m
uPVC window to the rear aspect. Plastered walls and ceiling. One wallpapered wall. Carpet as laid. Built-in wardrobe.
First Floor Bathroom
Modern bathroom with a bath and shower over. W.C vanity wash hand basin with under cupboard storage. Tiled to the walls and floor. Feature light fittings. Mirror on the wall. Towel radiator. uPVC window to the front aspect.
Garden
To the rear of the property is an enclosed Indian sandstone patio area and lap fencing around.
Garden
To the front of the property is a driveway for 2 cars and a gravel area.
Brochures
Brochure- COUNCIL TAXA payment made to your local authority in order to pay for local services like schools, libraries, and refuse collection. The amount you pay depends on the value of the property.Read more about council Tax in our glossary page.
- Band: B
- PARKINGDetails of how and where vehicles can be parked, and any associated costs.Read more about parking in our glossary page.
- Driveway
- GARDENA property has access to an outdoor space, which could be private or shared.
- Enclosed garden
- ACCESSIBILITYHow a property has been adapted to meet the needs of vulnerable or disabled individuals.Read more about accessibility in our glossary page.
- Ask agent
Tyleri Gardens, Victor Road, Abertillery
Add an important place to see how long it'd take to get there from our property listings.
__mins driving to your place
Get an instant, personalised result:
- Show sellers you’re serious
- Secure viewings faster with agents
- No impact on your credit score
Your mortgage
Notes
Staying secure when looking for property
Ensure you're up to date with our latest advice on how to avoid fraud or scams when looking for property online.
Visit our security centre to find out moreDisclaimer - Property reference RS2704. The information displayed about this property comprises a property advertisement. Rightmove.co.uk makes no warranty as to the accuracy or completeness of the advertisement or any linked or associated information, and Rightmove has no control over the content. This property advertisement does not constitute property particulars. The information is provided and maintained by Louvain Properties, Tredegar. Please contact the selling agent or developer directly to obtain any information which may be available under the terms of The Energy Performance of Buildings (Certificates and Inspections) (England and Wales) Regulations 2007 or the Home Report if in relation to a residential property in Scotland.
*This is the average speed from the provider with the fastest broadband package available at this postcode. The average speed displayed is based on the download speeds of at least 50% of customers at peak time (8pm to 10pm). Fibre/cable services at the postcode are subject to availability and may differ between properties within a postcode. Speeds can be affected by a range of technical and environmental factors. The speed at the property may be lower than that listed above. You can check the estimated speed and confirm availability to a property prior to purchasing on the broadband provider's website. Providers may increase charges. The information is provided and maintained by Decision Technologies Limited. **This is indicative only and based on a 2-person household with multiple devices and simultaneous usage. Broadband performance is affected by multiple factors including number of occupants and devices, simultaneous usage, router range etc. For more information speak to your broadband provider.
Map data ©OpenStreetMap contributors.





