
5 bedroom detached house for sale
High Road, Trimley St. Mary, Felixstowe

- PROPERTY TYPE
Detached
- BEDROOMS
5
- BATHROOMS
2
- SIZE
Ask agent
- TENUREDescribes how you own a property. There are different types of tenure - freehold, leasehold, and commonhold.Read more about tenure in our glossary page.
Freehold
Key features
- FIVE BEDROOMS
- TWO KITCHENS
- QUARTER ACRE PLOT
- FORMER DAY NURSERY
- THREE RECEPTION ROOMS
- DETACHED ANNEXE
- OFF ROAD PARKING
- PP FOR ADDITIONAL BUILDING
Description
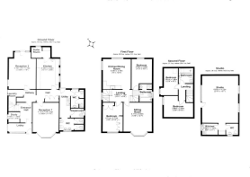
ENTRANCE LOBBY WITH DOOR TO ENTRANCE HALL With stairs to first floor and door to study.
STUDY (NW) 4' 10" x 4' 9" (1.47m x 1.45m)
INNER HALL With doors to the reception rooms, kitchen, utility and laundry room.
LAUNDRY ROOM (NW) With plumbing for washing machine etc.
RECEPTION ROOM 1 (SW) 13' 6" x 11' 10" (4.11m x 3.61m) max. With South West facing bay window.
RECEPTION ROOM 2 (NW & NE) 16' 11" x 11' 9" (5.16m x 3.58m) max. With external door to the rear.
KITCHEN (SE) 14' 11" x 9' 8" (4.55m x 2.95m) With fitted units - formerly a commercial kitchen.
UTILITY ROOM With external door to the North East. Fitted base and sink unit.
GIRLS WC'S With two low level WC's and a wash basin.
BOYS WC'S Three WC's, two urinals and two wash basins.
FIRST FLOOR LANDING With access to three bedrooms and a kitchen (which could be converted back to a bedroom). A staircase then rises to the second floor.
BEDROOM (SW) 13' 6" x 12' 7" (4.11m x 3.84m) A lovely light room which is at present used as a sitting room.
BEDROOM (SW) 13' 6" x 8' 10" (4.11m x 2.69m) With fitted wardrobe cupboards.
BEDROOM (NE) 11' 3" x 10' 1" (3.43m x 3.07m) Another double bedroom.
KITCHEN (NW & NE) 14' x 12' 5" (4.27m x 3.78m) This was formerly a bedroom, but is used as a kitchen at present.
BATHROOM (SE) Fitted with a five piece suite comprising, panel bath, shower, bidet, wash basin and low level WC.
SECOND FLOOR LANDING With doors to two further bedrooms and a wet room.
BEDROOM (NW) 12' 9" x 9' 10" (3.89m x 3m)
BEDROOM (NW) 12' 6" x 6' 2" (3.81m x 1.88m)
WET ROOM Fitted with a shower, basin and low level WC.
THE ANNEXE 21' 9" x 15' 7" (6.63m x 4.75m) A fully furnished and equipped annexe - everything included in the sale.
ANNEXE BATHROOM Walk in shower, vanity unit and low level WC.
KITCHEN Fully fitted and equipped including washing machine, fridge and cooking appliances.
OUTSIDE The house is well set back off the road and has an in and out drive and ample parking for several vehicles.
The remainder of the gardens are laid to lawn with the exception of an area outside the Annexe which is down to Astro-turf.
There are numerous sheds, two of which have power connected.
The plot extends to just over a quarter of an acre.
Brochures
brochure- COUNCIL TAXA payment made to your local authority in order to pay for local services like schools, libraries, and refuse collection. The amount you pay depends on the value of the property.Read more about council Tax in our glossary page.
- Ask agent
- PARKINGDetails of how and where vehicles can be parked, and any associated costs.Read more about parking in our glossary page.
- Off street
- GARDENA property has access to an outdoor space, which could be private or shared.
- Yes
- ACCESSIBILITYHow a property has been adapted to meet the needs of vulnerable or disabled individuals.Read more about accessibility in our glossary page.
- Ask agent
High Road, Trimley St. Mary, Felixstowe
Add an important place to see how long it'd take to get there from our property listings.
__mins driving to your place
Get an instant, personalised result:
- Show sellers you’re serious
- Secure viewings faster with agents
- No impact on your credit score
Your mortgage
Notes
Staying secure when looking for property
Ensure you're up to date with our latest advice on how to avoid fraud or scams when looking for property online.
Visit our security centre to find out moreDisclaimer - Property reference 100958007937. The information displayed about this property comprises a property advertisement. Rightmove.co.uk makes no warranty as to the accuracy or completeness of the advertisement or any linked or associated information, and Rightmove has no control over the content. This property advertisement does not constitute property particulars. The information is provided and maintained by Diamond Mills & Co, Felixstowe. Please contact the selling agent or developer directly to obtain any information which may be available under the terms of The Energy Performance of Buildings (Certificates and Inspections) (England and Wales) Regulations 2007 or the Home Report if in relation to a residential property in Scotland.
*This is the average speed from the provider with the fastest broadband package available at this postcode. The average speed displayed is based on the download speeds of at least 50% of customers at peak time (8pm to 10pm). Fibre/cable services at the postcode are subject to availability and may differ between properties within a postcode. Speeds can be affected by a range of technical and environmental factors. The speed at the property may be lower than that listed above. You can check the estimated speed and confirm availability to a property prior to purchasing on the broadband provider's website. Providers may increase charges. The information is provided and maintained by Decision Technologies Limited. **This is indicative only and based on a 2-person household with multiple devices and simultaneous usage. Broadband performance is affected by multiple factors including number of occupants and devices, simultaneous usage, router range etc. For more information speak to your broadband provider.
Map data ©OpenStreetMap contributors.









