Office for sale
Unit 8, Hollinswood Court, Telford, TF3 3DE
- SIZE AVAILABLE
2,554 sq ft
237 sq m
- SECTOR
Office for sale
Key features
- Modern two storey end of terrace office building.
- Prominent location at the entrance to Stafford Court.
- Within a short walking distance of Telford Central Railway Station.
- Attractive landscaped setting.
- 10 on-site car spaces.
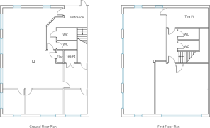
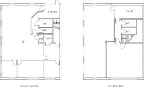
- Mixture of open plan and cellular accommodation.
Description
The offices provide high quality accommodation incorporating perimeter trunking, carpeted flooring and suspended ceiling with inset LED lighting.
The accommodation is well appointed providing a mixture of open plan and cellular accommodation over 2 floors, with staff facilities and W.Cs on both floors.
The offices are available as a whole or on a floor by floor basis.
The property occupies a highly prominent and convenient location within Hollinswood Court at the entrance to the Stafford Court office development. The property is located approx. 1 mile north of Telford Town Centre and benefits from excellent public transport links, with Telford Central Train Station being a short 10-minute walk away.
Hollinswood Court is a premier office location in Stafford Park, located just off the main A442 Queensway, giving access to the north and south of Telford, and within 1 mile of the M54 motorway. The business park has attracted a number of high profile occupiers, such as the NHS, Permission Homes, Telford and Wrekin Council, and has a number of facilities including Earlyworld Nursery an 24/7 Fitness Gym.
Located within the heart of England, Telford boasts major road and rail networks with the County Town of Shrewsbury situated 15 miles west and stands on the M54 motorway which provides a gateway to the M6, M5, M42 and M4 motorways.
The property is available To Let on a new lease. Rent £30,000 per annum exclusive.
The property is also available For Sale inviting offers in the region of £395,000 with the benefit of vacant possession upon completion.
Brochures
Unit 8, Hollinswood Court, Telford, TF3 3DE
NEAREST STATIONS
Distances are straight line measurements from the centre of the postcode- Telford Central Station0.3 miles
- Oakengates Station1.1 miles
- Shifnal Station2.8 miles
Notes
Disclaimer - Property reference 303685-1. The information displayed about this property comprises a property advertisement. Rightmove.co.uk makes no warranty as to the accuracy or completeness of the advertisement or any linked or associated information, and Rightmove has no control over the content. This property advertisement does not constitute property particulars. The information is provided and maintained by Towler Shaw Roberts, Shrewsbury. Please contact the selling agent or developer directly to obtain any information which may be available under the terms of The Energy Performance of Buildings (Certificates and Inspections) (England and Wales) Regulations 2007 or the Home Report if in relation to a residential property in Scotland.
Map data ©OpenStreetMap contributors.





