
The Crescent, Shepperton, TW17

- PROPERTY TYPE
Detached
- BEDROOMS
5
- BATHROOMS
3
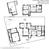
- SIZE
3,188 sq ft
296 sq m
- TENUREDescribes how you own a property. There are different types of tenure - freehold, leasehold, and commonhold.Read more about tenure in our glossary page.
Freehold
Key features
- Substantial 5 bedroom family home
- 3 bathrooms (2 ensuite, one with sauna)
- Large adjoining reception rooms
- Adaptable accommodation
- Detached double garage with recreational room, changing room & WC
- Large 1st floor room over the garage, ideal as a gym/office/studio
- Extensive parking area with EV charging point
- 0.19 acre south westerly gardens with swimming pool
Description
The property is located on a generous 0.19 acre plot on the River Ash Private Estate and offers 5 bedrooms, 3 Reception rooms, 3 bathrooms.
In addition, and separate to the main house is a large annexe with floor to ceiling windows overlooking the grounds and pool. It is supplied with all utilities and is currently used as a gym, but could also be used as an apartment, office or studio.
The main house ground floor consists of an open plan reception and dining area giving access to the garden and leading to the kitchen and breakfast rooms. There is a second reception room and a further two double bedrooms, one with ensuite and Sauna, a large main bathroom and Utility Room.
Upstairs comprises of a principal suite consisting of a large bedroom with built in storage, a beautifully appointed ensuite bathroom and walk in dressing area. There is also a sunny balcony with views over the garden. There are also a further 2 double bedrooms.
This stunning detached house is located in a much sought after area and offers a bright and sophisticated living space, it is very secluded for ultimate privacy. The house, gardens and swimming pool are well maintained. It is a fantastic place for families to entertain and for kids to relax and play.
Brochures
Particulars- COUNCIL TAXA payment made to your local authority in order to pay for local services like schools, libraries, and refuse collection. The amount you pay depends on the value of the property.Read more about council Tax in our glossary page.
- Band: G
- PARKINGDetails of how and where vehicles can be parked, and any associated costs.Read more about parking in our glossary page.
- Yes
- GARDENA property has access to an outdoor space, which could be private or shared.
- Yes
- ACCESSIBILITYHow a property has been adapted to meet the needs of vulnerable or disabled individuals.Read more about accessibility in our glossary page.
- Ask agent
The Crescent, Shepperton, TW17
Add an important place to see how long it'd take to get there from our property listings.
__mins driving to your place
Get an instant, personalised result:
- Show sellers you’re serious
- Secure viewings faster with agents
- No impact on your credit score
Your mortgage
Notes
Staying secure when looking for property
Ensure you're up to date with our latest advice on how to avoid fraud or scams when looking for property online.
Visit our security centre to find out moreDisclaimer - Property reference CSN030001. The information displayed about this property comprises a property advertisement. Rightmove.co.uk makes no warranty as to the accuracy or completeness of the advertisement or any linked or associated information, and Rightmove has no control over the content. This property advertisement does not constitute property particulars. The information is provided and maintained by Curchods Estate Agents, Shepperton. Please contact the selling agent or developer directly to obtain any information which may be available under the terms of The Energy Performance of Buildings (Certificates and Inspections) (England and Wales) Regulations 2007 or the Home Report if in relation to a residential property in Scotland.
*This is the average speed from the provider with the fastest broadband package available at this postcode. The average speed displayed is based on the download speeds of at least 50% of customers at peak time (8pm to 10pm). Fibre/cable services at the postcode are subject to availability and may differ between properties within a postcode. Speeds can be affected by a range of technical and environmental factors. The speed at the property may be lower than that listed above. You can check the estimated speed and confirm availability to a property prior to purchasing on the broadband provider's website. Providers may increase charges. The information is provided and maintained by Decision Technologies Limited. **This is indicative only and based on a 2-person household with multiple devices and simultaneous usage. Broadband performance is affected by multiple factors including number of occupants and devices, simultaneous usage, router range etc. For more information speak to your broadband provider.
Map data ©OpenStreetMap contributors.







