
3 bedroom apartment for sale
West Queen Street, Broughty Ferry, Dundee, DD5

- PROPERTY TYPE
Apartment
- BEDROOMS
3
- BATHROOMS
3
- SIZE
Ask agent
- TENUREDescribes how you own a property. There are different types of tenure - freehold, leasehold, and commonhold.Read more about tenure in our glossary page.
Freehold
Key features
- Immaculate Main Door Apartment
- Part of a converted former hotel
- Open Plan Lounge with Kitchen
- Master Bedroom & Ensuite
- Master Suite, Dressing Room & Ensuite
- Bedroom 3, Bathroom
- Study/Home Office
- Utility Room, Store
- GCH; DG; EPC - B
- Off Street Parking
Description
Forming part of a charming, converted former hotel in Broughty Ferry, this three-bedroom, three-bathroom main-door apartment, offers spacious accommodation over two levels. The property offers immaculately presented, contemporary interiors and is wonderfully light and airy . The home benefits from an excellent location within easy strolling distance of all that Broughty Ferry has to offer, such as a range of shops, schools, transport links, and scenic open spaces, including the beach. Extras: All window coverings, light fittings, and integrated kitchen appliances will be included in the sale.
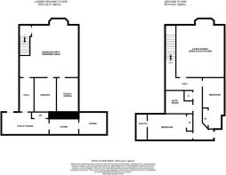
The property which benefits from double glazing, gas heating, security alarm system comprises hall, spacious open plan lounge/ kitchen, master bedroom with en suite, bedroom three, family bathroom, stairs leading to master suite, study/ home office, utility room and walk in store.
Externally there are two designated parking spaces to the rear.
Viewing is highly recommended.
NB Some items of furniture may be sold by separate negotiation.
Living Room / Kitchen
6.7m x 5m (22' 0" x 16' 5")
Master Suite With Dressing Room & Study / Lounge Area
6.7m x 5.7m (22' 0" x 18' 8")
With separate lounge / study area (2.5m x 3.8m)
Master Bedroom En Suite
2.4m x 3.5m (7' 10" x 11' 6")
Bedroom 2
4.7m x 3.3m (15' 5" x 10' 10")
Bedroom 2 En Suite
1.2m x 2.6m (3' 11" x 8' 6")
Bedroom 3
2.2m x 5.4m (7' 3" x 17' 9")
Utility Room
6.25m x 2.8m (20' 6" x 9' 2")
Family Bathroom
2.8m x 2.2m (9' 2" x 7' 3")
Brochures
Brochure 1Brochure 2- COUNCIL TAXA payment made to your local authority in order to pay for local services like schools, libraries, and refuse collection. The amount you pay depends on the value of the property.Read more about council Tax in our glossary page.
- Ask agent
- PARKINGDetails of how and where vehicles can be parked, and any associated costs.Read more about parking in our glossary page.
- Yes
- GARDENA property has access to an outdoor space, which could be private or shared.
- Ask agent
- ACCESSIBILITYHow a property has been adapted to meet the needs of vulnerable or disabled individuals.Read more about accessibility in our glossary page.
- Ask agent
West Queen Street, Broughty Ferry, Dundee, DD5
Add an important place to see how long it'd take to get there from our property listings.
__mins driving to your place
Get an instant, personalised result:
- Show sellers you’re serious
- Secure viewings faster with agents
- No impact on your credit score
Your mortgage
Notes
Staying secure when looking for property
Ensure you're up to date with our latest advice on how to avoid fraud or scams when looking for property online.
Visit our security centre to find out moreDisclaimer - Property reference 28790173. The information displayed about this property comprises a property advertisement. Rightmove.co.uk makes no warranty as to the accuracy or completeness of the advertisement or any linked or associated information, and Rightmove has no control over the content. This property advertisement does not constitute property particulars. The information is provided and maintained by Thorntons Property Services, Dundee. Please contact the selling agent or developer directly to obtain any information which may be available under the terms of The Energy Performance of Buildings (Certificates and Inspections) (England and Wales) Regulations 2007 or the Home Report if in relation to a residential property in Scotland.
*This is the average speed from the provider with the fastest broadband package available at this postcode. The average speed displayed is based on the download speeds of at least 50% of customers at peak time (8pm to 10pm). Fibre/cable services at the postcode are subject to availability and may differ between properties within a postcode. Speeds can be affected by a range of technical and environmental factors. The speed at the property may be lower than that listed above. You can check the estimated speed and confirm availability to a property prior to purchasing on the broadband provider's website. Providers may increase charges. The information is provided and maintained by Decision Technologies Limited. **This is indicative only and based on a 2-person household with multiple devices and simultaneous usage. Broadband performance is affected by multiple factors including number of occupants and devices, simultaneous usage, router range etc. For more information speak to your broadband provider.
Map data ©OpenStreetMap contributors.








