Land for sale
Attleborough Road, Caston
- PROPERTY TYPE
Land
- SIZE
Ask agent
Key features
- Breckland planning ref: 3PL/2019/0518/F / 3PL/2022/0605/VAR
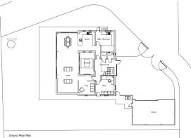
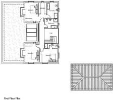
- Planning approved for an individual 4 bedroom, 2 storey property
- New self-build dwelling plot
- Great opportunity!
- Rural location on the outskirts of an attractive village
- Plot measures approx. 101' x 148'
- Currently laid to lawn with hedging and trees close to boundary edges & field views to 2 aspects
- Services installed, water, electricity and BT connection
- Water treatment plant installed
- Shared driveway access
Description
A building plot on the outskirts of this popular village, measuring approx. 101' x 148' with self-build planning approved for an individual 4 bedroom detached property with shared driveway access and field views to 2 aspects. Driveway access from the road and the site is currently laid to lawn. The property has their own choice of heating system, determined by personal preference. Services installed, water, electricity and BT connection and driveway completed.
APPROVED PLANNING PERMISSION
Approved planning exists for the erection of an individual 4 bedroom, 2 storey property, to be accessed via a shared driveway, over which the existing properties adjacent to the sites will enjoy Right of Way. For more information please see Breckland District Council reference: 3PL/2019/0518/F/ 3PL/2022/0605/VAR
Currently the site is laid to lawn with trees and hedging close to the boundaries plus field views and drainage ditch to the left-hand side at the boundary.
DIRECTIONS
From Attleborough head towards Caston on the B1077, passing through Great Ellingham and Rocklands en-route. Continue on this road and just after the right turning into Carbrooke Road the plot is located on the right-hand side as you enter the village of Caston.
We offer a professional, ARLA accredited Lettings and Management Service via our affiliated agency, Dragonfly Lettings. If you are considering renting your property in order to purchase, are looking at buy to let or would like a free, no obligation review of your current portfolio then please contact the office to discuss this further.
DISCLAIMER
Whilst we have endeavoured to ensure these details are a fair and accurate representation of the property at the point of listing, please note that they are for guidance purposes only and we do not seek advice from the seller's legal representative or liaise with management companies, planning departments or building control in their preparation. We strongly advise that you inspect the property and surrounding area on Google maps and street view prior to viewing. Please also note the photographs do not infer that items shown are included in the sale, the measurements quoted are approximate and the fixtures, fittings and appliances have not been tested, therefore no guarantee can be given that they are in working order. If there is any point which is of particular importance to you then please obtain professional confirmation of it.
Should you wish to view one of our properties, we will require certain pieces of personal information from you in order to provide a professional service to you and our client, the seller. The personal information you provide to us will be shared with the seller, but it will not be shared with any other third parties without your consent.
Should you wish to proceed and make an offer on a property, some of the personal information you provide to us will be passed to the seller. Again, it will not be shared with any other third parties without your consent.
More information on how we hold and process your data is available upon request or on our website.
LOCAL AUTHORITY
Breckland
COUNCIL TAX BAND
TBC
Attleborough Road, Caston
NEAREST STATIONS
Distances are straight line measurements from the centre of the postcode- Eccles Road Station5.9 miles



Notes
Disclaimer - Property reference PZZ-54723548. The information displayed about this property comprises a property advertisement. Rightmove.co.uk makes no warranty as to the accuracy or completeness of the advertisement or any linked or associated information, and Rightmove has no control over the content. This property advertisement does not constitute property particulars. The information is provided and maintained by Hammond & Stratford, Attleborough. Please contact the selling agent or developer directly to obtain any information which may be available under the terms of The Energy Performance of Buildings (Certificates and Inspections) (England and Wales) Regulations 2007 or the Home Report if in relation to a residential property in Scotland.
Map data ©OpenStreetMap contributors.






