
5 bedroom detached house for sale
Drury Lane, Tybroughton, Whitchurch, SY13

- PROPERTY TYPE
Detached
- BEDROOMS
5
- BATHROOMS
1
- SIZE
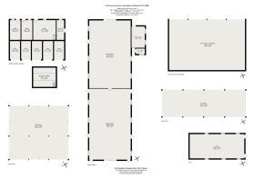
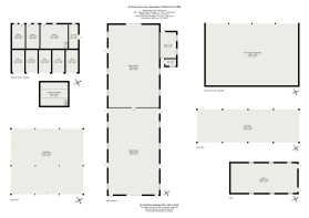
3,263 sq ft
303 sq m
- TENUREDescribes how you own a property. There are different types of tenure - freehold, leasehold, and commonhold.Read more about tenure in our glossary page.
Freehold
Key features
- 5 bedrooms
- 3 reception rooms
- 1 bathroom
- 8.17 acres
- Outbuildings
- Detached
- Farm House
Description
Stairs rise to the first floor where two primary bedrooms are found to the front of the house, both with open countryside views. Three further bedrooms are found on this floor, served by a large family bathroom. Stairs rise again to the second floor, which comprises of two large, vaulted loft rooms which could serve as additional bedroom space or a variety of other uses, depending on an owners requirements.
Garden and Grounds
The Drury, and its wonderful range of outbuildings, stands centrally, flanked by paddocks offering excellent privacy and protection. The land is arranged into two primary fields to the side and rear of the house and buildings. Within the land are two large pools, surrounded by wooded areas.
To the side of the house, and with a separate road access, is a range of traditional barns and buildings. These include a range of brick barns (The Old Dairy), dutch barns and portal frame buildings. These have scope for alternative uses, for example a change of use to equestrian, subject to consents being obtained, and residential conversion, if the local authority reviews its position on private drainage systems – the reason given for a recent refusal. Plans for this refused proposed scheme can be provided, by request.
Near to the house is a garage building with the capacity for three vehicles, and a cobbled courtyard.
Property Information
Tenure: Freehold
Services: Mains water and electricity. Oil fired central heating. Private drainage via a septic tank.
Local Authority & Council Tax Band: Wrexham Council. Council tax band H
Agents Note:
Please note planning for conversion to residential use on the outbuildings has recently been refused on the grounds of drainage. Plans for this refused proposed scheme can be provided, by request.
The Drury is situated in a delightful location, just within Wales, on the South Cheshire/Shropshire/Welsh boarder. The property occupies a peaceful and private position, with far reaching views over the surrounding countryside. There are many scenic walks on the Bickerton Hills and local outriding via an array of bridal paths, making it an ideal property for those with equestrian interests.
The Drury is about 4 miles from the picturesque village of Malpas and 7 miles from Whitchurch, both of which have an excellent range of shops, pubs (The Hanmer Arms) and restaurants. Carden Park (7 miles) has two championship golf courses, an excellent fitness club and spa.
There is a wide range of schooling in the area, including Bishop Heber High, Kings and Queens schools in Chester, Sir John Talbot's in Whitchurch, as well as Ellesmere College and Moreton Hall in Shropshire.
Chester (18 miles) is a leading retail and commercial centre and provides access to motorway and rail networks. London Euston can be reached in about 2 hours from Chester and 1½ hours from Crewe station (23 miles).
Directions (Postcode SY13 3BD)
From Whitchurch: Leave Whitchurch on the Tilstock Road, continue on Tilstock Road for 0.4miles until you reach the roundabout. At the roundabout take the fourth exit onto the Whitchurch Bypass/ A41. Continue on this road for 1.4miles. At this roundabout take the first exit onto A525/ Wrexham Road. Continue on this road for 3.6 miles until you turn right at the right-hand turn signed for Ty Broughton/Lower Wych/Malpas. Follow this road for 0.2miles then take the first left. Follow this road for 0.8miles then turn right onto Drury Lane. The Property is the first on the left.
What3words: ///belief.forecast.coats
Brochures
More Details- COUNCIL TAXA payment made to your local authority in order to pay for local services like schools, libraries, and refuse collection. The amount you pay depends on the value of the property.Read more about council Tax in our glossary page.
- Band: H
- PARKINGDetails of how and where vehicles can be parked, and any associated costs.Read more about parking in our glossary page.
- Driveway
- GARDENA property has access to an outdoor space, which could be private or shared.
- Yes
- ACCESSIBILITYHow a property has been adapted to meet the needs of vulnerable or disabled individuals.Read more about accessibility in our glossary page.
- Ask agent
Drury Lane, Tybroughton, Whitchurch, SY13
Add an important place to see how long it'd take to get there from our property listings.
__mins driving to your place
Get an instant, personalised result:
- Show sellers you’re serious
- Secure viewings faster with agents
- No impact on your credit score
Your mortgage
Notes
Staying secure when looking for property
Ensure you're up to date with our latest advice on how to avoid fraud or scams when looking for property online.
Visit our security centre to find out moreDisclaimer - Property reference SHR012563192. The information displayed about this property comprises a property advertisement. Rightmove.co.uk makes no warranty as to the accuracy or completeness of the advertisement or any linked or associated information, and Rightmove has no control over the content. This property advertisement does not constitute property particulars. The information is provided and maintained by Knight Frank, Shrewsbury. Please contact the selling agent or developer directly to obtain any information which may be available under the terms of The Energy Performance of Buildings (Certificates and Inspections) (England and Wales) Regulations 2007 or the Home Report if in relation to a residential property in Scotland.
*This is the average speed from the provider with the fastest broadband package available at this postcode. The average speed displayed is based on the download speeds of at least 50% of customers at peak time (8pm to 10pm). Fibre/cable services at the postcode are subject to availability and may differ between properties within a postcode. Speeds can be affected by a range of technical and environmental factors. The speed at the property may be lower than that listed above. You can check the estimated speed and confirm availability to a property prior to purchasing on the broadband provider's website. Providers may increase charges. The information is provided and maintained by Decision Technologies Limited. **This is indicative only and based on a 2-person household with multiple devices and simultaneous usage. Broadband performance is affected by multiple factors including number of occupants and devices, simultaneous usage, router range etc. For more information speak to your broadband provider.
Map data ©OpenStreetMap contributors.






