Children's Day Nursery Development, Main Road, Nutbourne, PO18 8RL
- SIZE AVAILABLE
5,772 sq ft
536 sq m
- SECTOR
Commercial development for sale
Key features
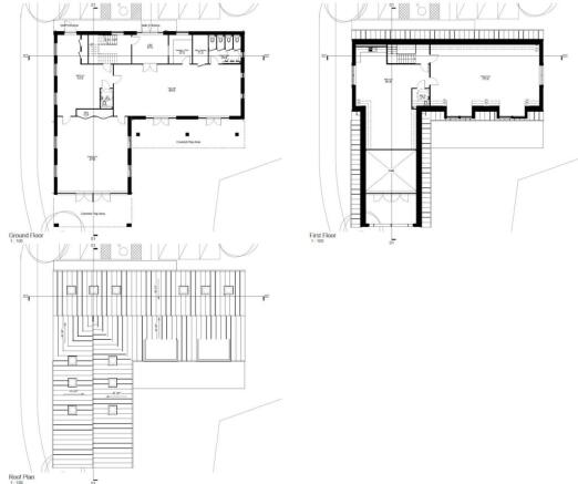
- Planning permission granted for 5,772 sq ft (536 sq.m) Children's day nursery
- Situated on a residential development of 103 dwellings
- Convenient access to A259
- 17 car parking spaces
- Space for an enclosed garden
- Freehold available
Description
The property comprises a consented children’s day nursery development extending to 5,772 sq ft (536 sq.m), forming part of a 103-unit residential scheme in the village of Nutbourne, West Sussex.
Situated along Main Road, the nursery occupies a central position within the development, benefiting from direct access, on-site parking, and landscaped surroundings. The scheme includes a wildlife corridor and green infrastructure, enhancing the setting for both staff and children.
This is a strong opportunity to deliver early years provision in a growing community, with a built-in catchment and excellent connectivity to Chichester, Portsmouth, and the wider South Coast via the A27.
Location
The property comprises a development site located on Main Road in the village of Nutbourne, West Sussex, positioned between Chichester and Emsworth. Nutbourne is a small semi-rural settlement within the Chichester District, surrounded by open countryside and close to the South Downs National Park.
Nutbourne lies approximately 5 miles (8 km) west of Chichester city centre and around 12 miles (19 km) east of Portsmouth. The village benefits from its proximity to the A27, providing convenient road access to the wider south coast network, including links to the A3(M) and M27, supporting both local and regional connectivity.
Tenure
Freehold.
Planning
This nursery development was granted planning permission on Monday 17 April 2023 under application reference 22/01283/FULEIA. The approved proposal includes the demolition of existing structures and a mixed-use development comprising 103 dwellings and a children's nursery, along with associated access, parking, landscaping (including the provision of a wildlife corridor), and other related works.
Local Authority
Chichester District Council.
Services
Electric and water services will be provided to the boundary of the site.
Guide Price
Offers are invited.
VAT
VAT will be applicable at the prevailing rate.
Viewing
Strictly by appointment only, through Savills. Contact details overleaf. Prospective purchasers should be made aware that inspections are made entirely at their own risk and no liability is accepted by the owner or their agents.
AML
Regulations require Savills to conduct various checks on purchasers and tenants. Further details are available upon request.
Brochures
Children's Day Nursery Development, Main Road, Nutbourne, PO18 8RL
NEAREST STATIONS
Distances are straight line measurements from the centre of the postcode- Southbourne Station0.6 miles
- Nutbourne Station0.6 miles
- Emsworth Station1.9 miles
Notes
Disclaimer - Property reference 303845-1. The information displayed about this property comprises a property advertisement. Rightmove.co.uk makes no warranty as to the accuracy or completeness of the advertisement or any linked or associated information, and Rightmove has no control over the content. This property advertisement does not constitute property particulars. The information is provided and maintained by Savills, Southampton - Licensed Leisure. Please contact the selling agent or developer directly to obtain any information which may be available under the terms of The Energy Performance of Buildings (Certificates and Inspections) (England and Wales) Regulations 2007 or the Home Report if in relation to a residential property in Scotland.
Map data ©OpenStreetMap contributors.





