4 bedroom detached house for sale
Southacre, Callow Hill, Rock, DY14 9XB

- PROPERTY TYPE
Detached
- BEDROOMS
4
- BATHROOMS
4
- SIZE
3,369 sq ft
313 sq m
- TENUREDescribes how you own a property. There are different types of tenure - freehold, leasehold, and commonhold.Read more about tenure in our glossary page.
Freehold
Key features
- Detached, 4 bed, 3 bath, study, laundry, annexe, double garage, paddock, stables
- Prime lifestyle home with house, stables, paddock, barn circa 1 acre+
- In all – excess of 3300sq ft accommodation including ancillary blocks
- Flexible accommodation with integral independent living and access containing kitchen, lounge, bathroom, bedroom with balcony
- Study/office plus laundry/utility room
- South Facing with well stocked, easily maintained gardens
- Integral double garage with personal access to side
- An opportunity to purchase a classic country-style home in a convenient location which has been well maintained and cherished ready for its next owner.
Description
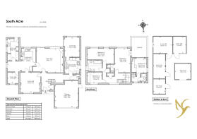
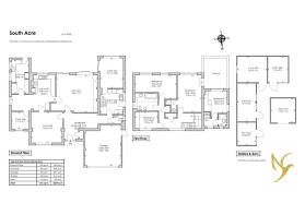
Accommodation briefly comprises:
Reception hall with storage cupboard - lounge - dining room - kitchen/breakfast room - study - utility - hallway - downstairs cloakroom
Annexe - kitchen - garden room(possible use to run a business and/or work from home) - landing area (potential to knock into main house) - bathroom - bedroom - access to balcony
Main first floor landing - bedroom 1 master bedroom facing the rear garden with en-suite shower room and access to balcony - bedroom 2 facing the rear garden - bedroom 3 facing front of the property - bedroom 4 annexe bedroom facing rear - family bathroom with spa bath and shower over - landing area with 2 storage cupboards including airing cupboard
Garage (potential to knock into main house hallway) - stable block comprising 3 loose boxes and feed store - barn which has roadside access.
All in circa 1 acre +
Discover the perfect blend of comfort and elegance in this prime lifestyle home featuring a house, garden, annexe, stables, paddock and barn. With over 3300sq ft of flexible accommodation including the annexe wing with its separate access containing a lounge, kitchen, bathroom and bedroom, this property offers a unique opportunity for multi-generational living. A spacious balcony with shared access from the main and annex bedrooms offers the opportunity to become a roof terrace ideal for relaxation.
Located in Callow Hill near the historic town of Bewdley, this detached house gives the opportunity to own a classic country-style home. It sits on over an acre of land and provides ample space for both living and leisure. The stables, barn and paddock add to the properties appeal for those interested in equestrian activities. The property is located opposite two entrances to the Wyre Forest - the largest native woodland in England covering 1,455 hectares - providing endless recreation for runners, walkers, cyclists as well as horse riders.
The property is designed to accommodate various lifestyle needs while maintaining its classic charm.
The stable, paddock, and barn add to the property's appeal for those interested in equestrian activities or seeking additional storage space. There is a 40x20yard riding surface.
A personal access door to the garage enhances convenience, making daily life easier. This house has been meticulously maintained and cherished, ready for its next owners to enjoy.
Its location is convenient for easy access to local amenities in Far Forest, Bewdley and Kidderminster with Worcester, Malvern and Birmingham within easy reach. Nearby schools and transport links to the West Midlands, mid Wales and motorway network make it an ideal choice for families seeking a well-rounded community environment.
Don’t miss this rare opportunity to secure a stunning, spacious home with diverse features.
Contact us today to learn more about this exceptional property.
#WelcomeHome to Southacre
PRACTICAL POINTS:
Main electricity
No Gas - its on LPG
Mains Water
Mains drain and sewer
Whole property is well maintained with some recent re-pointing
Boiler recently replaced
BUYER'S FEE:
A buyer's fee is payable on completion of sale and through the solicitors only of £2500.00 + VAT (if the purchase price is lower than £250,000) or 1% + VAT of the eventual selling price (if purchase price is higher than £250,000), in addition to the agreed purchase price.
Payment of the buyer's fee being instructed by the seller and forming part of the property seller's sale contract.
It is the buyer’s responsibility to seek advice as to whether stamp duty land tax (SDLT) is payable on the buyer’s fee via their selected solicitor.
ENVIRONMENTAL:
We are striving to be #CarbonNeutral so do not create/print/post any physical details.
ANTI MONEY LAUNDERING:
It is a legal requirement for Estate Agents to verify both sellers and buyers on any transaction. FreeAgent247.com have partnered with ‘Lifetime Legal’, a third-party company, to help process our checks to comply with HMRC guidelines. There is a £55 fee for these checks paid directly to Lifetime Legal. Anyone completing these checks will be entitled to a range of benefits from Lifetime Legal. Full details will be provided by them.
DETAILS DISCLAIMER:
Any information provided by FreeAgent247.com, whether in writing or verbally, is intended for general guidance purposes only and should not be relied upon as such nor considered as part of a sale contract due to the potential for errors or omissions. Our role is to market the property based on the information that we are provided by vendors. We do not provide any warranty as to the information that is given. Purchasers are advised to verify all details and obtain their independent advice on all aspects from their own qualified professionals. FreeAgent247.com cannot be held liable for any matters arising in connection with the property and/or its clients.
Brochures
Brochure 1Brochure 2- COUNCIL TAXA payment made to your local authority in order to pay for local services like schools, libraries, and refuse collection. The amount you pay depends on the value of the property.Read more about council Tax in our glossary page.
- Band: F
- PARKINGDetails of how and where vehicles can be parked, and any associated costs.Read more about parking in our glossary page.
- Yes
- GARDENA property has access to an outdoor space, which could be private or shared.
- Yes
- ACCESSIBILITYHow a property has been adapted to meet the needs of vulnerable or disabled individuals.Read more about accessibility in our glossary page.
- Ask agent
Southacre, Callow Hill, Rock, DY14 9XB
Add an important place to see how long it'd take to get there from our property listings.
__mins driving to your place
Get an instant, personalised result:
- Show sellers you’re serious
- Secure viewings faster with agents
- No impact on your credit score
Your mortgage
Notes
Staying secure when looking for property
Ensure you're up to date with our latest advice on how to avoid fraud or scams when looking for property online.
Visit our security centre to find out moreDisclaimer - Property reference RX585295. The information displayed about this property comprises a property advertisement. Rightmove.co.uk makes no warranty as to the accuracy or completeness of the advertisement or any linked or associated information, and Rightmove has no control over the content. This property advertisement does not constitute property particulars. The information is provided and maintained by FreeAgent247.com HQ, Worcestershire. Please contact the selling agent or developer directly to obtain any information which may be available under the terms of The Energy Performance of Buildings (Certificates and Inspections) (England and Wales) Regulations 2007 or the Home Report if in relation to a residential property in Scotland.
*This is the average speed from the provider with the fastest broadband package available at this postcode. The average speed displayed is based on the download speeds of at least 50% of customers at peak time (8pm to 10pm). Fibre/cable services at the postcode are subject to availability and may differ between properties within a postcode. Speeds can be affected by a range of technical and environmental factors. The speed at the property may be lower than that listed above. You can check the estimated speed and confirm availability to a property prior to purchasing on the broadband provider's website. Providers may increase charges. The information is provided and maintained by Decision Technologies Limited. **This is indicative only and based on a 2-person household with multiple devices and simultaneous usage. Broadband performance is affected by multiple factors including number of occupants and devices, simultaneous usage, router range etc. For more information speak to your broadband provider.
Map data ©OpenStreetMap contributors.





