
Ford Square, London, E1

- PROPERTY TYPE
Flat
- BEDROOMS
2
- BATHROOMS
1
- SIZE
Ask agent
Key features
- Well Presented Two Bedroom Apartment
- Fantastic Location Overlooking Ford Square
- Period Appeal And Modern Interiors
- Bright And Spacious Reception Room
- Well Equipped Kitchen
- Family Bathroom
- Communal Gardens
- Long Lease
- Close To Whitechapel Station
- Easy Access Fashionable Shops And Amenities
Description
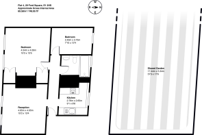
Well presented two bedroom property with access to attractive communal gardens, ideally situated in the heart of historic Whitechapel, with a pleasant outlook over delightful Ford Square and no onward chain. Features include a generous reception room, separate well equipped kitchen, family bathroom, gas central heating, inbuilt storage, access to private garden with bicycle storage and long lease.
Accommodation comprises entrance hall leading into the reception room with ample space for relaxing, entertaining and dining. The separate kitchen, with exposed brickwork, comprises a modern range of matching white fronted wall and base units with work surfaces incorporating inset sink unit and further space for appliances. There are two well sized bedrooms, with inbuilt wardrobes to the larger room, plus a family bathroom with white three piece suite.
The property is conveniently located within a short distance of Whitechapel station offering fantastic cross-London connections, as well as numerous regular bus routes linking the surrounding area. The fashionable areas of nearby Shoreditch, Spitalfields and Brick Lane provide an array of stylish shops, cafes, bars and restaurants, and the immediate area provides a further abundance of local amenities.
Viewings are highly recommended.
Lease Information
Lease expiry date - 28th September 2175
Ground rent - peppercorn for lifetime of the lease
Service charge - £2,703.15 p/a paid in arrears half-yearly. Reviewed annually, the building is managed by agents appointed by the residents (right to manage company).
All prospective purchasers are advised to make their own enquiries and verify this information with a solicitor.
Property ownership information
Ground rent review period: No review period
Service charge review period: Every 1 year
Lease end date: 27/09/2175
Property Description Disclaimer
This is a general description of the property only, and is not intended to constitute part of an offer or contract. It has been verified by the seller(s), unless marked as 'draft'. Purplebricks conducts some valuations online and some of our customers prepare their own property descriptions, so if you decide to proceed with a viewing or an offer, please note this information may have been provided solely by the vendor, and we may not have been able to visit the property to confirm it. If you require clarification on any point then please contact us, especially if you’re traveling some distance to view. All information should be checked by your solicitor prior to exchange of contracts.
Successful buyers will be required to complete anti-money laundering and proof of funds checks. Our partner, Lifetime Legal Limited, will carry out the initial checks on our behalf. The current non-refundable cost is £80 inc. VAT per offer. You’ll need to pay this to Lifetime Legal and complete all checks before we can issue a memorandum of sale. The cost includes obtaining relevant data and any manual checks and monitoring which might be required, and includes a range of benefits. Purplebricks will receive some of the fee taken by Lifetime Legal to compensate for its role in providing these checks.
Brochures
Brochure- COUNCIL TAXA payment made to your local authority in order to pay for local services like schools, libraries, and refuse collection. The amount you pay depends on the value of the property.Read more about council Tax in our glossary page.
- Band: C
- PARKINGDetails of how and where vehicles can be parked, and any associated costs.Read more about parking in our glossary page.
- Ask agent
- GARDENA property has access to an outdoor space, which could be private or shared.
- Ask agent
- ACCESSIBILITYHow a property has been adapted to meet the needs of vulnerable or disabled individuals.Read more about accessibility in our glossary page.
- Ask agent
Ford Square, London, E1
Add an important place to see how long it'd take to get there from our property listings.
__mins driving to your place
Get an instant, personalised result:
- Show sellers you’re serious
- Secure viewings faster with agents
- No impact on your credit score
Your mortgage
Notes
Staying secure when looking for property
Ensure you're up to date with our latest advice on how to avoid fraud or scams when looking for property online.
Visit our security centre to find out moreDisclaimer - Property reference 1916150-1. The information displayed about this property comprises a property advertisement. Rightmove.co.uk makes no warranty as to the accuracy or completeness of the advertisement or any linked or associated information, and Rightmove has no control over the content. This property advertisement does not constitute property particulars. The information is provided and maintained by Purplebricks, covering East London. Please contact the selling agent or developer directly to obtain any information which may be available under the terms of The Energy Performance of Buildings (Certificates and Inspections) (England and Wales) Regulations 2007 or the Home Report if in relation to a residential property in Scotland.
*This is the average speed from the provider with the fastest broadband package available at this postcode. The average speed displayed is based on the download speeds of at least 50% of customers at peak time (8pm to 10pm). Fibre/cable services at the postcode are subject to availability and may differ between properties within a postcode. Speeds can be affected by a range of technical and environmental factors. The speed at the property may be lower than that listed above. You can check the estimated speed and confirm availability to a property prior to purchasing on the broadband provider's website. Providers may increase charges. The information is provided and maintained by Decision Technologies Limited. **This is indicative only and based on a 2-person household with multiple devices and simultaneous usage. Broadband performance is affected by multiple factors including number of occupants and devices, simultaneous usage, router range etc. For more information speak to your broadband provider.
Map data ©OpenStreetMap contributors.





