
Haslemere, Victoria Road, Felixstowe, IP11

- PROPERTY TYPE
Apartment
- BEDROOMS
1
- BATHROOMS
1
- SIZE
Ask agent
- TENUREDescribes how you own a property. There are different types of tenure - freehold, leasehold, and commonhold.Read more about tenure in our glossary page.
Ask agent
Key features
- Share Of Freehold
- Ground Floor
- Two Allocated Parking Spaces
- Close to Town
- One Bedroom + Basement room
- Close to seafront
Description
Wainwrights is pleased to present this beautifully appointed ground floor flat forming part of a characterful Victorian conversion. This elegant property offers a rare combination of period charm and modern convenience, benefiting from a long lease and a share of the freehold, providing added peace of mind for discerning buyers.
The flat features spacious, well-proportioned rooms with high ceilings and sash windows, complemented by a converted basement, ideal for use as additional living space, a home office, or storage. Externally, the property boasts two private parking spaces, a valuable asset in this sought-after central location.
Positioned just a short walk from Felixstowe town centre, the seafront, and local transport links, this unique home would suit a range of buyers, including first-time purchasers, downsizers, or investors. Combining Victorian elegance with practical features and outdoor space, Haslemere is a rare find in an enviable setting.
Property additional info
Outside front: There is a shared large driveway with allocated parking for two vehicles front to back
Communal front door opens into pleasant lobby with further internal doors leading to a personal front door
Entrance hallway:
Personal front door opens into the internal hallway which has double glazed safety glass stained glass windows and carpets with doors to:
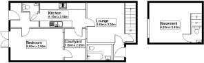
Bathroom: 2.36m x 1.47m (7' 9" x 4' 10")
Tiled flooring, fully tiled walls all around, window to rear aspect, radiator, bath with shower screen and shower over, hand wash basin, WC.
Reception Room: 3.98m x 3.03m (13' 1" x 9' 11")
Window to rear aspect, radiator, feature fireplace with wooden surround and mantle, matching wooden cupboards in alcoves either side, tiled hearth and surround. Doors to:
Basement Room: 4.79m x 3.46m (15' 9" x 11' 4")
Radiator, tilt and swing window which doubles as a fire escape to the private courtyard, carpet, chimney breast, under stairs storage cupboard, according to the vendor the area has been fully tanked 10 years ago, door to cloakroom with hand wash basin, WC, fully tiled walls, tiled flooring.
Kitchen: 4.23m x 2.09m (13' 11" x 6' 10")
The wooden door leads from reception room into the kitchen. UPVC fully double glazed door to private courtyard, wood effect tiled flooring, chrome radiator, partially tiled walls, skylight Velux to ceiling, laminate worktops with single bowl stainless steel sink, inset electric hob, range of wood effect cupboards and drawers at floor level and matching eyelevel cupboards, stainless steel splash back behind hob, stainless steel hood. Under-counter fridge, under-counter freezer, under-counter dishwasher, washing machine.
Rear lobby: 2.25m x 1.26m (7' 5" x 4' 2")
Additional alcove which houses the wall mounted valiant gas Combi boiler firing the central heating system. Carpet, fire alarm call point, BT open reach master socket, partially glazed door with glazed side panel leading to the rear garden, and doors from the rear lobby leading to a cloakroom and the bedroom
Bedroom: 4.67m x 2.92m (15' 4" x 9' 7")
UPVC door fully double glazed with glazed side panels either side to rear garden aspect, UPVC double glazed window to private courtyard and seperate door to private courtyard, radiator, carpet.
Cloakroom:
Sliding wooden door opens from rear lobby into the cloakroom, fully tiled walls, chrome radiator, hand wash basin with cupboard under, WC, vinyl flooring, extractor fan.
Outside rear: 9.00m x 19.00m (29' 6" x 62' 4")
The outside area is shared with the other residents of the building and there are two rotary washing lines, a storage shed which is subdivided with cupboard space for each resident. There is a paved area immediately outside the back door and leading from the bedroom door with space for exterior seating/table, there are paved pathways, lawn areas, mature trees and shrubs and a variety of flowering plants, wall perimeter to the far end and wooden fencing with concrete posts to the sides. Padestrian gate to the rear providing access to Orwell Road.
Additional Information:
Wainwrights Estate & Lettings Agent Ltd. Co No. 14699401. Trading Address: 156-158 Hamilton Road, Felixstowe, Suffolk, IP11 7DS. Misrepresentation Act 1967 and Property Misrepresentations Act 1991. This advertisement or these particulars do not constitute any part of an offer or contract. All measurements are given as a guide, and no liability can be accepted for any errors arising from. No responsibility is taken for any other error, omission, or misstatement in these particulars not for any expenses incurred by the applicants for whatever reason. No representation or warranty is made in relation to this property whether in these particulars, during negotiations or otherwise. Intending purchasers will be asked to produce identification documentation and proof of funds at a later stage. Wainwrights has not sought to verify the legal title of the property and the buyers must obtain verification from their solicitor. Council tax band A(2025/2026: £1,472.20) We believe from the vendor the service charge is £120.00 pcm includes buildings insurance, gardening, repairs etc and there is no ground rent. There is 995 years remaining on the lease. 1/6th Share of Freehold. There are NO PETS allowed at the property.
Brochures
Brochure 1- COUNCIL TAXA payment made to your local authority in order to pay for local services like schools, libraries, and refuse collection. The amount you pay depends on the value of the property.Read more about council Tax in our glossary page.
- Band: A
- PARKINGDetails of how and where vehicles can be parked, and any associated costs.Read more about parking in our glossary page.
- Yes
- GARDENA property has access to an outdoor space, which could be private or shared.
- Yes
- ACCESSIBILITYHow a property has been adapted to meet the needs of vulnerable or disabled individuals.Read more about accessibility in our glossary page.
- Ask agent
Haslemere, Victoria Road, Felixstowe, IP11
Add an important place to see how long it'd take to get there from our property listings.
__mins driving to your place
Get an instant, personalised result:
- Show sellers you’re serious
- Secure viewings faster with agents
- No impact on your credit score
About Wainwrights Estate & Lettings Agent Ltd, Felixstowe
156-158 Hamilton Road, Felixstowe, IP11 7DS


Your mortgage
Notes
Staying secure when looking for property
Ensure you're up to date with our latest advice on how to avoid fraud or scams when looking for property online.
Visit our security centre to find out moreDisclaimer - Property reference wainwrights_717724457. The information displayed about this property comprises a property advertisement. Rightmove.co.uk makes no warranty as to the accuracy or completeness of the advertisement or any linked or associated information, and Rightmove has no control over the content. This property advertisement does not constitute property particulars. The information is provided and maintained by Wainwrights Estate & Lettings Agent Ltd, Felixstowe. Please contact the selling agent or developer directly to obtain any information which may be available under the terms of The Energy Performance of Buildings (Certificates and Inspections) (England and Wales) Regulations 2007 or the Home Report if in relation to a residential property in Scotland.
*This is the average speed from the provider with the fastest broadband package available at this postcode. The average speed displayed is based on the download speeds of at least 50% of customers at peak time (8pm to 10pm). Fibre/cable services at the postcode are subject to availability and may differ between properties within a postcode. Speeds can be affected by a range of technical and environmental factors. The speed at the property may be lower than that listed above. You can check the estimated speed and confirm availability to a property prior to purchasing on the broadband provider's website. Providers may increase charges. The information is provided and maintained by Decision Technologies Limited. **This is indicative only and based on a 2-person household with multiple devices and simultaneous usage. Broadband performance is affected by multiple factors including number of occupants and devices, simultaneous usage, router range etc. For more information speak to your broadband provider.
Map data ©OpenStreetMap contributors.





