
Cat Street, Upper Hartfield, Hartfield, East Sussex, TN7

- PROPERTY TYPE
Detached
- SIZE
Ask agent
- TENUREDescribes how you own a property. There are different types of tenure - freehold, leasehold, and commonhold.Read more about tenure in our glossary page.
Freehold
Key features
- Planning Permission granted for a detached four bedroom family home utilising existing access on Cat Street
- Wealden District Council - Reference WD/2024/0785/F
- Exceptional, convenient semi-rural location with a private approach drive and generous sized gardens
- Plot of approximately 0.23 acres
- Tunbridge Wells about 9 miles, Cowden station about 5.2 miles and East Grinstead 6.6 miles, all with frequent services into London
- Direct access to Ashdown Forest and Pooh Bridge
- The popular, sought after Hartfield village is about 1 mile, with The Bear Inn, village hall, church and cricket club
- Proposed house of approximately 2,300 sqft
Description
Description
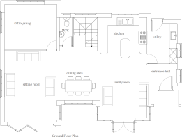
Found located on the outskirts of the pretty village of Hartfield is this generously sized plot of approximately 0.23 acres with full planning permission granted for a modern family home. The proposed plans for the modern, detached dwelling are comprised of an open-plan kitchen/dining/sitting room area, entered directly from the entrance hall. To the rear of the property within the ground floor is a separate office/snug. There is also a separate utility room found next to the kitchen area as well as a WC off the dining area.
The first floor plans depict a potential four double bedrooms, with three being located on the west-wing of the house, and a generously sized principal bedroom with en suite shower room. A further family bathroom is found off the landing.
To the front of the property is a private driveway for the Land At Orchard Cottage which leads up to parking for multiple cars to the right hand side of the property. There is also a large, lawned garden with a hedge-lined boundary to the front of the property.
The total plot, including the proposed accommodation, is approximately 0.23 acres.
Full planning permission has been granted by Wealden District Council - Reference WD/2024/0785/F for the proposed self-build detached dwelling utilising existing access.
Location
The heart of the forest lies about three miles from the property, being one of the largest public access spaces in the South East of England, made famous by AA Milne’s Winnie the Pooh stories (Milne having lived neighbouring the plot). The Forest is an ancient area of open heathland occupying the highest sandy ridge within the High Weald Area of Outstanding Natural Beauty and was originally a deer hunting forest in Norman times.
There are excellent amenities in Hartfield including a general store, butchers/farm shop, The Bear public house, Pooh Corner - the popular café and museum, the neighbouring church, a gift shop, tennis, cricket and football clubs, children’s play area, as well as the medical centre and the historic Hatch Inn at Colemans Hatch is just 1.2 miles away as well as the popular Gallipot Inn being 0.3 miles from the plot.
The larger village of Forest Row is reached in 3.2 miles and offers a wide range of small independent shops, cafes, galleries and services.
The nearest main towns are Crowborough (6.7 miles with a large Waitrose supermarket & café) Tunbridge Wells (9.4 miles), East Grinstead (6.8 miles) and Sevenoaks which lies to the north (17 miles). Gatwick airport is 15.5 miles to the west and the M25 providing links to the national motorway network is 17 miles.
There are many public footpaths in the vicinity; sporting options include horse riding by permit on the Ashdown Forest, racing at Lingfield Park, the Royal Ashdown Forest Golf Club, Holtye Golf Club and Crowborough Beacon Golf Club are amongst the many in the area.
Mainline rail: Commuter services to London Bridge, Cannon Street, Charing Cross and London Victoria are available from Cowden (5.4 miles), Dormansland (8.8 miles), Tunbridge Wells and East Grinstead.
Schools: Church of England Primary schools in Hartfield, Forest Row, Withyham and Groombridge. Other highly regarded schools include Holmewood House, (Langton Green), Brambletye (East Grinstead) and Cumnor House (Danehill) preparatory schools. At secondary level The Beacon in Crowborough, Uckfield Community College and Sackville School (East Grinstead). Private: the Michael Hall Steiner (Forest Row), Bedes in Upper Dicker, Brighton College, Sevenoaks School, Tonbridge School for boys, Mayfield School for Girls and Ardingly and Hurstpierpoint Colleges.
All distances are approximate.
Additional Info
Local Authority: Wealden District Council
Services: Mains water, electricity, gas and drainage.
Brochures
Web DetailsParticulars- COUNCIL TAXA payment made to your local authority in order to pay for local services like schools, libraries, and refuse collection. The amount you pay depends on the value of the property.Read more about council Tax in our glossary page.
- Band: TBC
- PARKINGDetails of how and where vehicles can be parked, and any associated costs.Read more about parking in our glossary page.
- Yes
- GARDENA property has access to an outdoor space, which could be private or shared.
- Yes
- ACCESSIBILITYHow a property has been adapted to meet the needs of vulnerable or disabled individuals.Read more about accessibility in our glossary page.
- Ask agent
Energy performance certificate - ask agent
Cat Street, Upper Hartfield, Hartfield, East Sussex, TN7
Add an important place to see how long it'd take to get there from our property listings.
__mins driving to your place
Get an instant, personalised result:
- Show sellers you’re serious
- Secure viewings faster with agents
- No impact on your credit score
Your mortgage
Notes
Staying secure when looking for property
Ensure you're up to date with our latest advice on how to avoid fraud or scams when looking for property online.
Visit our security centre to find out moreDisclaimer - Property reference TUS250192. The information displayed about this property comprises a property advertisement. Rightmove.co.uk makes no warranty as to the accuracy or completeness of the advertisement or any linked or associated information, and Rightmove has no control over the content. This property advertisement does not constitute property particulars. The information is provided and maintained by Savills, Tunbridge Wells. Please contact the selling agent or developer directly to obtain any information which may be available under the terms of The Energy Performance of Buildings (Certificates and Inspections) (England and Wales) Regulations 2007 or the Home Report if in relation to a residential property in Scotland.
*This is the average speed from the provider with the fastest broadband package available at this postcode. The average speed displayed is based on the download speeds of at least 50% of customers at peak time (8pm to 10pm). Fibre/cable services at the postcode are subject to availability and may differ between properties within a postcode. Speeds can be affected by a range of technical and environmental factors. The speed at the property may be lower than that listed above. You can check the estimated speed and confirm availability to a property prior to purchasing on the broadband provider's website. Providers may increase charges. The information is provided and maintained by Decision Technologies Limited. **This is indicative only and based on a 2-person household with multiple devices and simultaneous usage. Broadband performance is affected by multiple factors including number of occupants and devices, simultaneous usage, router range etc. For more information speak to your broadband provider.
Map data ©OpenStreetMap contributors.






