Pound Farm Barns, Chawton, GU34

- PROPERTY TYPE
Barn Conversion
- BEDROOMS
4
- BATHROOMS
3
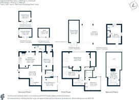
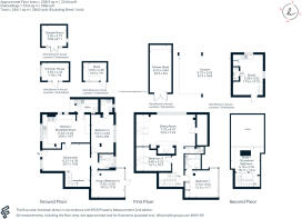
- SIZE
2,737 sq ft
254 sq m
- TENUREDescribes how you own a property. There are different types of tenure - freehold, leasehold, and commonhold.Read more about tenure in our glossary page.
Freehold
Key features
- Superb Vaulted Sitting Room with an Inglenook Fireplace and Exposed Beams
- Dining Hall
- Kitchen/Breakfast Room
- Utility Room
- 4 Bedrooms
- En Suite Bathroom
- En Suite Shower Room
- Bathroom
- Study/ Occasional Bedroom
- Front and Rear Gardens
Description
Outside
The garden is a very special feature of the property with several areas of interest and a principally south aspect to the rear. A paved terrace adjoins the dining hall and provides an ideal and very attractive outside seating area. The garden has been landscaped to take full advantage of the setting with areas of lawn, flower and shrub borders and a variety of young and mature trees. Of special note, there is a lovely enclosed ‘Mediterranean garden’ to the rear providing a beautiful outside seating area with a central fountain and a pergola walkway. For practicality, the property is complemented by a double car barn to the front together with a studio barn with a shower room and kitchenette. The shingle driveway is approached via a 5-bar gate providing ample space for parking and access to the double car barn. There is a further area of garden to the opposite side of the driveway with areas of lawn and several flowering cherries. There is an ideally positioned summer house and an area of decking within this area of the garden, providing a further outdoor entertaining area, and garden room. A pergola adorned by climbing plants anchors this area of the garden together with a paved pathway to a further gated area with a 20’5/6.2m mower shed and compost area.
Situation
Chawton is one of the most attractive villages in Hampshire and is set within the northern borders of the South Downs National Park. There is an active community with a church, primary school, ‘The Greyfriars’ public house and cafe. The village is home to Jane Austen’s House and Museum, a Grade I listed building, with a lovely landscaped garden. The surrounding countryside provides ample opportunity for a number of country pursuits. The thriving market town of Alton has a good range of individual shops, Waitrose food shop, M&S Simply Food, cinema, sports centre, two secondary schools, 6th form college and railway station to London Waterloo. The A31 provides a link to the A3 and M3 with routes to London, the south west and beyond.
What3words location: scoots.glosses.dancer
Property Ref Number:
HAM-51374Brochures
Brochure- COUNCIL TAXA payment made to your local authority in order to pay for local services like schools, libraries, and refuse collection. The amount you pay depends on the value of the property.Read more about council Tax in our glossary page.
- Band: G
- PARKINGDetails of how and where vehicles can be parked, and any associated costs.Read more about parking in our glossary page.
- Garage,Off street
- GARDENA property has access to an outdoor space, which could be private or shared.
- Private garden
- ACCESSIBILITYHow a property has been adapted to meet the needs of vulnerable or disabled individuals.Read more about accessibility in our glossary page.
- Ask agent
Pound Farm Barns, Chawton, GU34
Add an important place to see how long it'd take to get there from our property listings.
__mins driving to your place
Get an instant, personalised result:
- Show sellers you’re serious
- Secure viewings faster with agents
- No impact on your credit score
Your mortgage
Notes
Staying secure when looking for property
Ensure you're up to date with our latest advice on how to avoid fraud or scams when looking for property online.
Visit our security centre to find out moreDisclaimer - Property reference a1nQ5000008KoFWIA0. The information displayed about this property comprises a property advertisement. Rightmove.co.uk makes no warranty as to the accuracy or completeness of the advertisement or any linked or associated information, and Rightmove has no control over the content. This property advertisement does not constitute property particulars. The information is provided and maintained by Hamptons, Alton. Please contact the selling agent or developer directly to obtain any information which may be available under the terms of The Energy Performance of Buildings (Certificates and Inspections) (England and Wales) Regulations 2007 or the Home Report if in relation to a residential property in Scotland.
*This is the average speed from the provider with the fastest broadband package available at this postcode. The average speed displayed is based on the download speeds of at least 50% of customers at peak time (8pm to 10pm). Fibre/cable services at the postcode are subject to availability and may differ between properties within a postcode. Speeds can be affected by a range of technical and environmental factors. The speed at the property may be lower than that listed above. You can check the estimated speed and confirm availability to a property prior to purchasing on the broadband provider's website. Providers may increase charges. The information is provided and maintained by Decision Technologies Limited. **This is indicative only and based on a 2-person household with multiple devices and simultaneous usage. Broadband performance is affected by multiple factors including number of occupants and devices, simultaneous usage, router range etc. For more information speak to your broadband provider.
Map data ©OpenStreetMap contributors.







