Clarendon Park Road, Clarendon Park, Leicester

- PROPERTY TYPE
Terraced
- BEDROOMS
2
- BATHROOMS
1
- SIZE
786 sq ft
73 sq m
- TENUREDescribes how you own a property. There are different types of tenure - freehold, leasehold, and commonhold.Read more about tenure in our glossary page.
Freehold
Key features
- An Impressive Bay Fronted Period Home on Clarendon Park Road
- Gas Central Heating, Double Glazing
- Two Reception Rooms, Inner Lobby
- Kitchen
- First Floor Landing
- Two Bedrooms, Family Bathroom
- Rear Garden
Description
Located on the highly regarded Clarendon Park Road, this attractive bay-fronted terrace presents an excellent opportunity for any buyer. The property offers well-proportioned accommodation arranged over two floors, comprising dual reception rooms with period character, an entrance lobby, a thoughtfully appointed kitchen, two generous double bedrooms, a family bathroom, and a charming mature rear garden with established planting.
The home combines original period features with practical modern living, creating versatile spaces ideal for contemporary family life. The delightful cottage-style garden provides a peaceful outdoor retreat in this residential location.
For further details and to arrange a viewing, please contact our Clarendon Park office.
The property is well located for everyday amenities and services, including local public and private schooling together with nursery day-care, Leicester City Centre and the University of Leicester, Leicester Royal Infirmary and Leicester General Hospital. Victoria Park and Queens Road shopping parade with its specialist shops, bars, boutiques and restaurants are also within close proximity.
Shared Access
There is a shared access alleyway, with neighbouring properties benefiting from a right of access. Responsibility for maintenance should be confirmed via legal enquiries.
EPC Rating: D
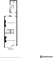
Reception Room One
4.29m x 3.46m
With a double-glazed bay window to the front elevation, a wooden door to the front elevation, a chimney breast, feature fireplace with surround and hearth, coving to the ceiling, polished wooden flooring, TV point, radiator.
Reception Room Two
3.64m x 3.46m
With a double-glazed sash window to the rear elevation, chimney breast, feature empty fireplace with surround and tiled hearth, TV point, understairs cupboard, door providing access to the stairs, radiator.
Inner Lobby
With tiled flooring, space for a freestanding fridge-freezer, double-glazed door providing access to the rear garden.
Kitchen
3.16m x 1.82m
With a double-glazed sash window to the side elevation, tiled flooring, a sink and drainer unit with a range of wall and base units with work surfaces over, a four-ring gas hob, oven, extractor fan, plumbing for a washing machine, radiator.
First Floor Landing
With a loft inspection hatch.
Bedroom One
3.5m x 3.46m
With a double-glazed sash window to the front elevation, a chimney breast, radiator.
Bedroom Two
3.64m x 2.56m
With a double-glazed window to the rear elevation, an over-stairs cupboard, radiator.
Bathroom
4.15m x 1.84m
With a double-glazed window to the rear elevation, a double-glazed window to the side elevation, tiled flooring, bath with mixer shower tap, shower cubicle with shower head and shower screen, a WC, a wash hand basin, tiled splashbacks, a feature wall-mounted chrome radiator.
Front Garden
With mature borders and a pathway to the front door.
Garden
A mature and established rear garden with patio seating area, additional patio seating area, mature and established flower beds and well-maintained borders.
Parking - On street
Permit Parking Zones
The property is within a controlled parking zone. Buyers and tenants should make their own enquiries with the local council regarding permit availability and associated costs.
Disclaimer
Measurements are taken electronically and are for guidance only — not to be relied upon as exact. Services, appliances, and fittings have not been tested. Buyers must satisfy themselves through inspection. Floor plans are not to scale and are for layout guidance only. Knightsbridge Estate Agents make no warranties regarding the property. By law, we must carry out anti-money laundering checks for buyers and sellers. These are handled on our behalf by Lifetime Legal, who will contact you once you instruct us to sell or have an offer accepted. A £60 fee (incl. VAT) covers required data and any manual checks. This must be paid before we can publish your property (for vendors) or issue a memorandum of sale (for buyers). The fee is non-refundable and paid directly to Lifetime Legal. We receive a portion of this fee for facilitating the checks.
Brochures
Key Facts for BuyersProperty Brochure- COUNCIL TAXA payment made to your local authority in order to pay for local services like schools, libraries, and refuse collection. The amount you pay depends on the value of the property.Read more about council Tax in our glossary page.
- Band: B
- PARKINGDetails of how and where vehicles can be parked, and any associated costs.Read more about parking in our glossary page.
- On street
- GARDENA property has access to an outdoor space, which could be private or shared.
- Front garden,Private garden
- ACCESSIBILITYHow a property has been adapted to meet the needs of vulnerable or disabled individuals.Read more about accessibility in our glossary page.
- Ask agent
Clarendon Park Road, Clarendon Park, Leicester
Add an important place to see how long it'd take to get there from our property listings.
__mins driving to your place
Get an instant, personalised result:
- Show sellers you’re serious
- Secure viewings faster with agents
- No impact on your credit score



Your mortgage
Notes
Staying secure when looking for property
Ensure you're up to date with our latest advice on how to avoid fraud or scams when looking for property online.
Visit our security centre to find out moreDisclaimer - Property reference 82a7f4ee-c1da-4e91-846a-4f9a3ae0584f. The information displayed about this property comprises a property advertisement. Rightmove.co.uk makes no warranty as to the accuracy or completeness of the advertisement or any linked or associated information, and Rightmove has no control over the content. This property advertisement does not constitute property particulars. The information is provided and maintained by Knightsbridge Estate Agents & Valuers, Leicester. Please contact the selling agent or developer directly to obtain any information which may be available under the terms of The Energy Performance of Buildings (Certificates and Inspections) (England and Wales) Regulations 2007 or the Home Report if in relation to a residential property in Scotland.
*This is the average speed from the provider with the fastest broadband package available at this postcode. The average speed displayed is based on the download speeds of at least 50% of customers at peak time (8pm to 10pm). Fibre/cable services at the postcode are subject to availability and may differ between properties within a postcode. Speeds can be affected by a range of technical and environmental factors. The speed at the property may be lower than that listed above. You can check the estimated speed and confirm availability to a property prior to purchasing on the broadband provider's website. Providers may increase charges. The information is provided and maintained by Decision Technologies Limited. **This is indicative only and based on a 2-person household with multiple devices and simultaneous usage. Broadband performance is affected by multiple factors including number of occupants and devices, simultaneous usage, router range etc. For more information speak to your broadband provider.
Map data ©OpenStreetMap contributors.





