
High Street, Rudston, YO25 4UB

- PROPERTY TYPE
Link Detached House
- BEDROOMS
4
- BATHROOMS
2
- SIZE
Ask agent
- TENUREDescribes how you own a property. There are different types of tenure - freehold, leasehold, and commonhold.Read more about tenure in our glossary page.
Freehold
Key features
- Link-Detached House
- Village Location
- Four Bedrooms
- Period Property
- Refurbished Throughout
- Spacious Throughout
- Detached Holiday Cottage
Description
Quirky yet stylish, this beautiful period property is not one to miss. The Old Village Shop is a four double bedroom detached house which is situated in a sought-after village location. The property stands proud on a lovely plot and is deceivingly spacious from the outside. The current owners have drastically improved it throughout and have created a modern yet cosy cottage feel. Not only is the property impressive, it also boasts a detached one-bedroom holiday cottage to the rear of the plot, which produces a useful income and would be ideal for an Airbnb. *No onward chain*
The property briefly comprises:- entrance hall, living area, kitchen/breakfast area, office, utility room, shower room, hallway leading to an additional dining/snug area. To the first floor landing is four bedrooms and family bathroom. Large garden to the rear with detached garage and off-street parking with access to a secluded self-contained one-bedroom cottage, which sits to the rear with its own outside space. The cottage has kitchen/diner/lounge, bedroom and shower room.
LOCATION
Rudston is situated between Driffield and Bridlington, approximately 6 miles west of Bridlington, and lies on the B1253 road. Driffield and Bridlington offer excellent shopping facilities, including national stores such as W H Smiths, Boots, Tesco’s, Morrisons, Aldi, Lidl and Iceland Foods, to name but a few. The Gypsey Race (an intermittent stream) runs through the village, which lies in the Great Wold Valley. The Rudston Monolith stands in the Rudston Parish Church of All Saints. At over 25 feet tall, it is the tallest standing stone in England, and gave the village its name.
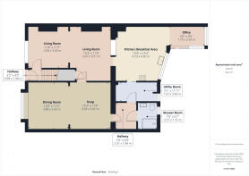
THE ACCOMMODATION COMPRISES:-
ENTRANCE
Door to the front aspect, coving, stairs leading to the first floor landing, fitted carpets and radiator.
OPEN PLAN LIVING AREA- 11'8 (3.58m) x 11'3 (3.43m)/15'3 (4.67m) x 11'6 (3.51m)
A spacious and bright living area which is split into two sections with window to the front aspect, coving, picture rail, wall lighting, two electric fireplaces with surround, understairs storage cupboard, wooden flooring, radiators, TV point and power points. This space leads to:
KITCHEN/BREAKFAST AREA- 15'6 (4.73m) x 14'3 (4.35m)
Modern and sleek kitchen with window to the rear aspect, inset spotlights, coving, a range of wall and base units with island and separate breakfast bar, one and a half sink with drainer unit, space for American fridge/freezer, integrated dishwasher, Rangemaster style oven and gas hob with extractor hood, vinyl flooring, radiator and power points.
DINING/SNUG AREA- 12'8 (3.88m) x 11'2 (3.43m)/13'2 (4.03m) x 11'4 (3.47m)
Another large reception area which is versatile. The current vendors are using the space as a dining/snug room with window to the front aspect, coving, fitted carpets, radiator and power points.
OFFICE- 5'8 (1.75m) x 9'6 (2.92m)
An conservatory extension to the property which is currently used as an office space with sliding door to the side aspect, window to the side and rear aspect and power points.
UTILITY ROOM- 5'1 (1.57m) x 11'11 (3.63m)
Window to the rear aspect, skylight, built in storage, plumbing for washing machine, space for dryer and power points.
HALLWAY- 7'6 (2.31m) x 6'0 (1.84m)
Built in shelving, vinyl flooring and power points.
SHOWER ROOM- 7'6 (2.31m) x 5'7 (1.72m)
Opaque window to the rear aspect, three piece bathroom suite comprising:- low flush WC, sink with pedestal and tiled splash back, walk in shower, heated towel rail and extractor fan.
FIRST FLOOR LANDING
Window to the front aspect, coving, fitted carpets, radiator and power points.
BEDROOM ONE- 15'4 (4.68m) x 9'8 (2.96m)
Window to the rear aspect, coving, built in wardrobes, cast iron feature fireplace, fitted carpets, radiator and power points.
BEDROOM TWO- 14'8 (4.47m) x 9'3 (2.84m)
Window to the front aspect, coving, built in wardrobes, cast iron feature fireplace, fitted carpets, radiator and power points.
BEDROOM THREE- 12'0 (3.67m) x 11'6 (3.51m)
Window to the front aspect, coving, laminated flooring, radiator and power points.
BEDROOM FOUR- 11'1 (3.39m) x 11'4 (3.48m)
Window to the rear aspect, coving, built in storage cupboards, fitted carpets, radiator and power points.
BATHROOM- 6'0 (1.84m) x 6'7 (2.03m)
Opaque window to the rear aspect, partially tiled walls and wet wall panelling, three piece bathroom suite comprising:- low flush WC, sink with vanity unit and mixer tap, panelled bath with over head shower attachment, vinyl flooring, heated towel rail and extractor fan.
GARDEN
North facing garden which is mainly laid with lawn, patio area to the immediate rear, patio area to the outside of the annex, planted flower and shrubs with gravelled area. There is a gate to the rear allowing access to the driveway.
THE COTTAGE
There is a detached one bedroom cottage which sits in the garden and is current tenanted out on a Assured Short Hold Tenancy (AST) at £650 per month. There is however, permission for tourism use also which would be great as an Airbnb. There is also a great opportunity to offer assisted living with other rental/income opportunities. It comprises of the following:
OPEN PLAN KITCHEN/DINER/LIVING AREA- 13'0 (3.97m) x 16'4 (5.00m)
French doors to the side aspect, window to the front and side aspect, stairs leading to the first floor landing, a range of wall and base units, tiled splash back, one and a half sink with drainer unit, space for fridge, plumbing for washing machine, electric oven, electric hob, extractor hood, electric log burner, tiled flooring, wall mounted electric radiator, TV point and power points.
FIRST FLOOR LANDING
Window to the side aspect, fitted carpet and power points.
BEDROOM ONE- 13'0 (3.96m) x 8'5 (2.58m)
Double bedroom with window to the side aspect, fitted carpets, wall mounted electric radiator and power points
BATHROOM- 8'9 (2.69m) x 4'8 (1.43m)
Tiled splash back, three piece bathroom suite comprising:- low flush WC, sink with vanity unit and mixer tap, shower cubicle, vinyl flooring and extractor fan.
GARAGE
To the rear of the property is a detached garage with off street parking. Up and over door with power and lighting.
PARKING
Off street parking for two/three cars.
SERVICES
Understood to be connected to mains. Mains gas, water and electric.
TENURE
The property is Freehold and offered with the benefit of vacant possession upon completion.
COUNCIL TAX BAND
Council Tax is payable to the East Riding of Yorkshire Council. The property is shown on the Council Tax Property Bandings List in Valuation Band 'C'.
EPC
This property's energy rating is E. The energy rating for the Waddling Duck holiday cottage is D
VIEWING
Strictly by appointment with the sole agents.
FREE VALUATION
If you are looking to sell your own property, we will be very happy to provide you with a free, no obligation market appraisal and valuation. We offer very competitive fees and an outstanding personal service that is rated 5 star by our fully verified clients.
Brochures
Brochure 1Brochure 1- COUNCIL TAXA payment made to your local authority in order to pay for local services like schools, libraries, and refuse collection. The amount you pay depends on the value of the property.Read more about council Tax in our glossary page.
- Band: C
- PARKINGDetails of how and where vehicles can be parked, and any associated costs.Read more about parking in our glossary page.
- Yes
- GARDENA property has access to an outdoor space, which could be private or shared.
- Yes
- ACCESSIBILITYHow a property has been adapted to meet the needs of vulnerable or disabled individuals.Read more about accessibility in our glossary page.
- Ask agent
High Street, Rudston, YO25 4UB
Add an important place to see how long it'd take to get there from our property listings.
__mins driving to your place
Get an instant, personalised result:
- Show sellers you’re serious
- Secure viewings faster with agents
- No impact on your credit score
Your mortgage
Notes
Staying secure when looking for property
Ensure you're up to date with our latest advice on how to avoid fraud or scams when looking for property online.
Visit our security centre to find out moreDisclaimer - Property reference dah_1729829074. The information displayed about this property comprises a property advertisement. Rightmove.co.uk makes no warranty as to the accuracy or completeness of the advertisement or any linked or associated information, and Rightmove has no control over the content. This property advertisement does not constitute property particulars. The information is provided and maintained by Dee Atkinson & Harrison, Driffield. Please contact the selling agent or developer directly to obtain any information which may be available under the terms of The Energy Performance of Buildings (Certificates and Inspections) (England and Wales) Regulations 2007 or the Home Report if in relation to a residential property in Scotland.
*This is the average speed from the provider with the fastest broadband package available at this postcode. The average speed displayed is based on the download speeds of at least 50% of customers at peak time (8pm to 10pm). Fibre/cable services at the postcode are subject to availability and may differ between properties within a postcode. Speeds can be affected by a range of technical and environmental factors. The speed at the property may be lower than that listed above. You can check the estimated speed and confirm availability to a property prior to purchasing on the broadband provider's website. Providers may increase charges. The information is provided and maintained by Decision Technologies Limited. **This is indicative only and based on a 2-person household with multiple devices and simultaneous usage. Broadband performance is affected by multiple factors including number of occupants and devices, simultaneous usage, router range etc. For more information speak to your broadband provider.
Map data ©OpenStreetMap contributors.









