
Rockville Road, Broadgreen, Liverpool, L14

- PROPERTY TYPE
 Semi-Detached
- BEDROOMS
 3
- BATHROOMS
 1
- SIZE
 Ask agent
- TENUREDescribes how you own a property. There are different types of tenure - freehold, leasehold, and commonhold.Read more about tenure in our glossary page.
 Freehold
Key features
- Fantastic Three Bedroom Semi Detached Property
 - Located In Popular Residential Area Of Broadgreen
 - Generously Proportioned & Beautifully Presented
 - Entrance Hall, Welcoming Lounge & Sitting Room
 - Dining Room & Substantial Modern Fitted Kitchen
 - Three Spacious & Impeccably Finished Bedrooms
 - Contemporary Style Three-Piece Bathroom Suite
 - Brilliant Garden To The Rear & Off-Road Parking
 
Description
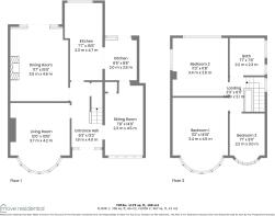
An inviting entrance hall greets you into the property, leading through to a bright and spacious family lounge, awash with natural light courtesy of a bay window. Finished in a neutral tasteful décor which complements the attractive wood style flooring, this presents a welcoming space to relax and unwind. The tasteful presentation continues through to the impeccably finished dining room, enjoying a feature fireplace and a set of French doors providing views and access out to the rear garden, offering a delightful setting for enjoying family mealtimes and entertaining guests. Continuing through you will find a generously sized modern fitted kitchen, complete with a range of stylish fitted base and wall units and complementary worktops providing plentiful surface space. A garage conversion accommodates a third reception room, ideal for a play room or home office, which concludes the ground floor.
Ascending to the first floor, you will discover two substantial double bedrooms and a well-proportioned single room, each immaculately presented featuring plush carpeting throughout. Accompanying the sleeping accommodation and adding the finishing touch to the interior of this impressive home is a contemporary style three-piece family bathroom suite, featuring chic patterned flooring.
Externally, the property is further enhanced by a sizable rear garden which offers a brilliant outdoor space for the whole household to enjoy, consisting of a lawn and raised decking area. To the front, a driveway provides ample off-road parking for two vehicles.
Brochures
Property BrochureFull Details- COUNCIL TAXA payment made to your local authority in order to pay for local services like schools, libraries, and refuse collection. The amount you pay depends on the value of the property.Read more about council Tax in our glossary page.
 - Band: C
 - PARKINGDetails of how and where vehicles can be parked, and any associated costs.Read more about parking in our glossary page.
 - Yes
 - GARDENA property has access to an outdoor space, which could be private or shared.
 - Yes
 - ACCESSIBILITYHow a property has been adapted to meet the needs of vulnerable or disabled individuals.Read more about accessibility in our glossary page.
 - Ask agent
 
Rockville Road, Broadgreen, Liverpool, L14
Add an important place to see how long it'd take to get there from our property listings.
__mins driving to your place
Get an instant, personalised result:
- Show sellers you’re serious
 - Secure viewings faster with agents
 - No impact on your credit score
 

Your mortgage
Notes
Staying secure when looking for property
Ensure you're up to date with our latest advice on how to avoid fraud or scams when looking for property online.
Visit our security centre to find out moreDisclaimer - Property reference 12601258. The information displayed about this property comprises a property advertisement. Rightmove.co.uk makes no warranty as to the accuracy or completeness of the advertisement or any linked or associated information, and Rightmove has no control over the content. This property advertisement does not constitute property particulars. The information is provided and maintained by Move Residential, Mossley Hill. Please contact the selling agent or developer directly to obtain any information which may be available under the terms of The Energy Performance of Buildings (Certificates and Inspections) (England and Wales) Regulations 2007 or the Home Report if in relation to a residential property in Scotland.
*This is the average speed from the provider with the fastest broadband package available at this postcode. The average speed displayed is based on the download speeds of at least 50% of customers at peak time (8pm to 10pm). Fibre/cable services at the postcode are subject to availability and may differ between properties within a postcode. Speeds can be affected by a range of technical and environmental factors. The speed at the property may be lower than that listed above. You can check the estimated speed and confirm availability to a property prior to purchasing on the broadband provider's website. Providers may increase charges. The information is provided and maintained by Decision Technologies Limited. **This is indicative only and based on a 2-person household with multiple devices and simultaneous usage. Broadband performance is affected by multiple factors including number of occupants and devices, simultaneous usage, router range etc. For more information speak to your broadband provider.
Map data ©OpenStreetMap contributors.





