
High Street, Adderbury, Banbury, Oxfordshire, OX17

- PROPERTY TYPE
Village House
- BEDROOMS
4
- BATHROOMS
1
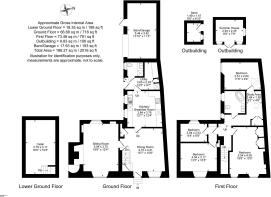
- SIZE
Ask agent
- TENUREDescribes how you own a property. There are different types of tenure - freehold, leasehold, and commonhold.Read more about tenure in our glossary page.
Ask agent
Description
This beautiful village home has been meticulously renovated by the present owners and is presented in first class order throughout.
Character features are abound, with timber ceiling beams, window shutters, original wood panelled doors and a fabulous inglenook fireplace in the Sitting Room.
On the first floor, there are four generous bedrooms which share a very spacious family bathroom. In addition, there is a study area, ideal for working from home.
On the ground floor, the spacious dining/family room opens into the sitting room which retains a wealth of character. The spacious kitchen/dining room opens into the utility and cloakroom.
The rear garden is a delight and offers private parking if desired. Accessed from the garden is the barn, which presents a fabulous opportunity to further develop.
A superb opportunity in a popular village position.
The picturesque village of Adderbury offers many amenities including a hotel and Public Houses, Hairdressers, Library, Coffee Shop, Recreation Ground and the Church of St Mary. The village has a good community spirit and offers many clubs ranging from babies and toddlers’ groups, to Brownies, Scouts, Photography, Gardening, WI, Bowls, Cricket, Tennis and Squash.
Also, within the village there is the Christopher Rawlins Church of England primary school. Secondary education can be found at Bloxham – the Warriner School or Bloxham School which is an independent co-educational school catering for boarders and day pupils. Alternatively, secondary education can be found at Banbury - Blessed George Napier School or North Oxfordshire Academy.
Further comprehensive facilities can be found in both Banbury and Oxford whilst access to the M40 motorway can be gained at Junctions 10 or 11. Mainline stations are also available from both Banbury and Bicester.
Deddington c. 3 miles
Banbury c. 4 miles
Chipping Norton c. 13 miles
Oxford c. 21 miles
Birmingham c. 55 miles
London c. 74 miles
M40 Access c. 5 Miles
London via Bicester c. 43 minutes
Buyers Purchase Fee:
Please note that buyers are required to pay a Purchase Fee of £300 (inc. of VAT) to Mark David Estate Agents Ltd on offer acceptance, to process a new transaction.
Brochures
Particulars- COUNCIL TAXA payment made to your local authority in order to pay for local services like schools, libraries, and refuse collection. The amount you pay depends on the value of the property.Read more about council Tax in our glossary page.
- Band: E
- LISTED PROPERTYA property designated as being of architectural or historical interest, with additional obligations imposed upon the owner.Read more about listed properties in our glossary page.
- Listed
- PARKINGDetails of how and where vehicles can be parked, and any associated costs.Read more about parking in our glossary page.
- Yes
- GARDENA property has access to an outdoor space, which could be private or shared.
- Yes
- ACCESSIBILITYHow a property has been adapted to meet the needs of vulnerable or disabled individuals.Read more about accessibility in our glossary page.
- Ask agent
High Street, Adderbury, Banbury, Oxfordshire, OX17
Add an important place to see how long it'd take to get there from our property listings.
__mins driving to your place
Get an instant, personalised result:
- Show sellers you’re serious
- Secure viewings faster with agents
- No impact on your credit score
Your mortgage
Notes
Staying secure when looking for property
Ensure you're up to date with our latest advice on how to avoid fraud or scams when looking for property online.
Visit our security centre to find out moreDisclaimer - Property reference DDD210229. The information displayed about this property comprises a property advertisement. Rightmove.co.uk makes no warranty as to the accuracy or completeness of the advertisement or any linked or associated information, and Rightmove has no control over the content. This property advertisement does not constitute property particulars. The information is provided and maintained by Mark David Estate Agents, Deddington. Please contact the selling agent or developer directly to obtain any information which may be available under the terms of The Energy Performance of Buildings (Certificates and Inspections) (England and Wales) Regulations 2007 or the Home Report if in relation to a residential property in Scotland.
*This is the average speed from the provider with the fastest broadband package available at this postcode. The average speed displayed is based on the download speeds of at least 50% of customers at peak time (8pm to 10pm). Fibre/cable services at the postcode are subject to availability and may differ between properties within a postcode. Speeds can be affected by a range of technical and environmental factors. The speed at the property may be lower than that listed above. You can check the estimated speed and confirm availability to a property prior to purchasing on the broadband provider's website. Providers may increase charges. The information is provided and maintained by Decision Technologies Limited. **This is indicative only and based on a 2-person household with multiple devices and simultaneous usage. Broadband performance is affected by multiple factors including number of occupants and devices, simultaneous usage, router range etc. For more information speak to your broadband provider.
Map data ©OpenStreetMap contributors.





