
Residential development for sale
Bidwell Lane, Clipsham, Oakham
- PROPERTY TYPE
Residential Development
- SIZE
Ask agent
Description
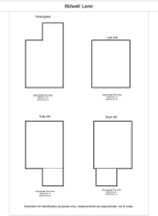
Larkhill Barn is part of a four barn development with prices ranging from £150,000 to £170,000. Via class Q permitted development , planning has been obtained for approximately 1296-1615sqft ground floor with a first floor of approximately an extra 862sqft. The barns have the added benefit of electric and water already in place from the village making connection easier and cheaper. Also, due to the nature of the planning, there is no local authority cil payment, saving over £79,000 on the development as a whole.
The development would benefit by being carried out in one, however, individual purchase may be possible, subject to other interest. Being located on the edge of this picturesque popular village with gastro pub, and having other adjacent examples of completed similar barn conversions, with less and less of these barns becoming available for development, this is a rare opportunity to be able to build a grand design property which is not as large as some have previously had to be. With excellent access to both A1 and main line trains from Grantham to London in under an hour with the historical Georgian market town of Stamford and county capital of Rutland , market town of Oakham in close proximity. Please note that the existing barn cladding and steel frame alteration to four dwellings is still required. The landowner does have adjoining land which may allow for small paddock or orchards to some of the barns by further negotiation.
Brochures
Brochure 1Bidwell Lane, Clipsham, Oakham
NEAREST STATIONS
Distances are straight line measurements from the centre of the postcode- Stamford Station6.8 miles
Notes
Disclaimer - Property reference S1355273. The information displayed about this property comprises a property advertisement. Rightmove.co.uk makes no warranty as to the accuracy or completeness of the advertisement or any linked or associated information, and Rightmove has no control over the content. This property advertisement does not constitute property particulars. The information is provided and maintained by Moores Property Hub, East Midlands. Please contact the selling agent or developer directly to obtain any information which may be available under the terms of The Energy Performance of Buildings (Certificates and Inspections) (England and Wales) Regulations 2007 or the Home Report if in relation to a residential property in Scotland.
Map data ©OpenStreetMap contributors.






