Hall Street, Long Melford, Sudbury, Suffolk, CO10
Letting details
- Let available date:
- Ask agent
- PROPERTY TYPE
Office
- SIZE
Ask agent
Description
LOCATION
Long Melford is a large village and civil parish in the Babergh district, in the county of Suffolk with a population of c.6200.
The town is situated on Suffolk's border with Essex, 3 miles from Sudbury, approximately 16 miles from Colchester and 14 miles from Bury St Edmunds.
The premises occupy an established trading location fronting Hall Street, within the principle shopping area.
The premises are considered suitable for a variety of uses.
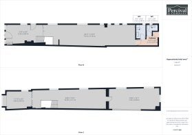
Ground Floor
Reception Area – 17’5 x 9’3
Office space – 42’11 x 10’3
2 x Cloakrooms
SERVICES - The main services of electricity, water and drainage are connected. Heating is via an oil fired boiler.
PLANNING – Use Class E planning use. All interested parties should contact Babergh Mid Suffolk District Council.
OUTGOINGS - From an inspection of the Valuation Office Agency website, we understand that the premises have a Rateable Value Assessment of £ tbc (2023 Assessment) and would be eligible for Small Business Rate Relief.
TERMS - The premises are available immediately on new Lease terms, for a term to be agreed, at a commencing rental of £15,000 per annum.
VIEWINGS - Strictly by appointment with the sole letting agents, Percival & Company, on .
Brochures
ParticularsHall Street, Long Melford, Sudbury, Suffolk, CO10
NEAREST STATIONS
Distances are straight line measurements from the centre of the postcode- Sudbury Station3.0 miles
Notes
Disclaimer - Property reference FPE250087_L. The information displayed about this property comprises a property advertisement. Rightmove.co.uk makes no warranty as to the accuracy or completeness of the advertisement or any linked or associated information, and Rightmove has no control over the content. This property advertisement does not constitute property particulars. The information is provided and maintained by Percival & Company, Earls Colne. Please contact the selling agent or developer directly to obtain any information which may be available under the terms of The Energy Performance of Buildings (Certificates and Inspections) (England and Wales) Regulations 2007 or the Home Report if in relation to a residential property in Scotland.
Map data ©OpenStreetMap contributors.








