1 bedroom flat for sale
Streatham High Road, The High Streatham High Road, SW16

- PROPERTY TYPE
Flat
- BEDROOMS
1
- BATHROOMS
1
- SIZE
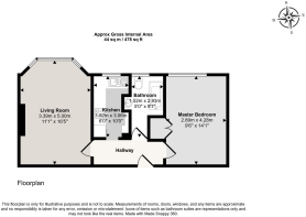
Ask agent
Key features
- Chain Free
- Long Lease
- Excellent Local Amenities - Cafes, Restaurants, Gyms, Cinema and more
- 3 min walk to Streatham Hill Station, 15 min bus to Brixton
- Lift
- Private entrance off Leigham Avenue
- EPC C
Description
Chain Free, First floor, one bedroom apartment in iconic Art Deco building “The High” SW16.
Guide Price: £280,000 to £290,000
THE PROPERTY
Bright and airy first floor, one bedroom apartment with separate galley kitchen in the iconic “The High”. Tucked away with its private entrance off Leigham Avenue, this home enjoys the best of both worlds: all the convenience of Streatham High Road, yet with the peace and quiet of a leafy residential street.
One of the building’s most unique features is its serene, residents-only community garden. A lush, landscaped retreat thoughtfully designed on the site of the building’s original Art Deco swimming pool.
OPEN DAY: We’re hosting an Open Day on Friday 27h June and Saturday 28h June - book your slot today to avoid disappointment.
THE AREA
"The High" stands as a testament to Streatham's rich architectural heritage, dating back to the early 20th century when Art Deco flourished. Known for its distinctive facade and historical significance, this building has been a focal point in the community for decades.
Today, Streatham is a vibrant neighbourhood known for its independent eateries, cafes, bars, leisure facilities and close proximity to the open space of Streatham Common.
TRANSPORT & PARKING
Streatham Station (Zone 3) – 3 mins’ walk, with fast services to London Bridge, Victoria, Blackfriars & beyond (Southern and Thameslink lines)
Buses on Streatham High Road – frequent day & night routes to Brixton, Clapham, Croydon & Central London
Brixton Tube (Northern Line) – 10 minutes by bus or train
Excellent road links via the A23 and easy access to cycling routes
KEY FEATURES
Chain Free
Long lease
Quiet entrance off Leigham Avenue
Beautifully bright rooms with large double glazed windows
Serene private residents’ garden
Secure entry system and well-maintained communal areas
Close to excellent amenities
EPC Rating: C
- COUNCIL TAXA payment made to your local authority in order to pay for local services like schools, libraries, and refuse collection. The amount you pay depends on the value of the property.Read more about council Tax in our glossary page.
- Band: B
- PARKINGDetails of how and where vehicles can be parked, and any associated costs.Read more about parking in our glossary page.
- Yes
- GARDENA property has access to an outdoor space, which could be private or shared.
- Yes
- ACCESSIBILITYHow a property has been adapted to meet the needs of vulnerable or disabled individuals.Read more about accessibility in our glossary page.
- Ask agent
Energy performance certificate - ask agent
Streatham High Road, The High Streatham High Road, SW16
Add an important place to see how long it'd take to get there from our property listings.
__mins driving to your place
Get an instant, personalised result:
- Show sellers you’re serious
- Secure viewings faster with agents
- No impact on your credit score
Your mortgage
Notes
Staying secure when looking for property
Ensure you're up to date with our latest advice on how to avoid fraud or scams when looking for property online.
Visit our security centre to find out moreDisclaimer - Property reference 8474304d-6336-4952-96cf-52f20eb72086. The information displayed about this property comprises a property advertisement. Rightmove.co.uk makes no warranty as to the accuracy or completeness of the advertisement or any linked or associated information, and Rightmove has no control over the content. This property advertisement does not constitute property particulars. The information is provided and maintained by EmpoweredEdge, London. Please contact the selling agent or developer directly to obtain any information which may be available under the terms of The Energy Performance of Buildings (Certificates and Inspections) (England and Wales) Regulations 2007 or the Home Report if in relation to a residential property in Scotland.
*This is the average speed from the provider with the fastest broadband package available at this postcode. The average speed displayed is based on the download speeds of at least 50% of customers at peak time (8pm to 10pm). Fibre/cable services at the postcode are subject to availability and may differ between properties within a postcode. Speeds can be affected by a range of technical and environmental factors. The speed at the property may be lower than that listed above. You can check the estimated speed and confirm availability to a property prior to purchasing on the broadband provider's website. Providers may increase charges. The information is provided and maintained by Decision Technologies Limited. **This is indicative only and based on a 2-person household with multiple devices and simultaneous usage. Broadband performance is affected by multiple factors including number of occupants and devices, simultaneous usage, router range etc. For more information speak to your broadband provider.
Map data ©OpenStreetMap contributors.




