
9 Derngate, Northampton

- PROPERTY TYPE
Mews
- BEDROOMS
2
- BATHROOMS
2
- SIZE
Ask agent
Key features
- TWO DOUBLE BEDROOMS
- TWO ENSUITES
- WELL PRESENTED
- GARDEN
- OPEN PLAN LIVING/KITCHEN
- WC
- SECURE PARKING
- TOWN CENTRE
Description
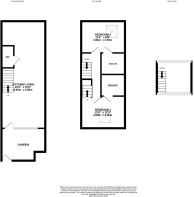
Stonhills are pleased to offer this beautifully presented two double bedroom mews-style home, located in the highly sought-after Derngate Lofts development in the heart of Northampton town centre. This unique and spacious property is set over two floors and offers the perfect blend of modern living and character within a private, gated setting.
The accommodation comprises a large open-plan living and dining area with a modern integrated kitchen, a downstairs WC, and two generous double bedrooms, both with en-suite shower rooms. The main bedroom also benefits from access to a useful loft room — ideal as a study, dressing room, or occasional space — though head height is restricted.
Outside, the home benefits from secure allocated parking and access to a private garden — a rare feature for town centre properties.
Derngate Lofts is a well-regarded and stylish development, positioned within easy reach of Northampton’s Cultural Quarter, parks, shops, restaurants, and the mainline train station with direct links to London and Birmingham.
This is a fantastic opportunity to purchase a distinctive, low-maintenance home in one of Northampton’s most desirable locations.
Let me know if you’d like a condensed version for portals or brochures!
Brochures
9 Derngate, Northampton- COUNCIL TAXA payment made to your local authority in order to pay for local services like schools, libraries, and refuse collection. The amount you pay depends on the value of the property.Read more about council Tax in our glossary page.
- Ask agent
- PARKINGDetails of how and where vehicles can be parked, and any associated costs.Read more about parking in our glossary page.
- Yes
- GARDENA property has access to an outdoor space, which could be private or shared.
- Yes
- ACCESSIBILITYHow a property has been adapted to meet the needs of vulnerable or disabled individuals.Read more about accessibility in our glossary page.
- Ask agent
Energy performance certificate - ask agent
9 Derngate, Northampton
Add an important place to see how long it'd take to get there from our property listings.
__mins driving to your place
Get an instant, personalised result:
- Show sellers you’re serious
- Secure viewings faster with agents
- No impact on your credit score




Your mortgage
Notes
Staying secure when looking for property
Ensure you're up to date with our latest advice on how to avoid fraud or scams when looking for property online.
Visit our security centre to find out moreDisclaimer - Property reference 33983295. The information displayed about this property comprises a property advertisement. Rightmove.co.uk makes no warranty as to the accuracy or completeness of the advertisement or any linked or associated information, and Rightmove has no control over the content. This property advertisement does not constitute property particulars. The information is provided and maintained by Stonhills Estate Agents, Northampton. Please contact the selling agent or developer directly to obtain any information which may be available under the terms of The Energy Performance of Buildings (Certificates and Inspections) (England and Wales) Regulations 2007 or the Home Report if in relation to a residential property in Scotland.
*This is the average speed from the provider with the fastest broadband package available at this postcode. The average speed displayed is based on the download speeds of at least 50% of customers at peak time (8pm to 10pm). Fibre/cable services at the postcode are subject to availability and may differ between properties within a postcode. Speeds can be affected by a range of technical and environmental factors. The speed at the property may be lower than that listed above. You can check the estimated speed and confirm availability to a property prior to purchasing on the broadband provider's website. Providers may increase charges. The information is provided and maintained by Decision Technologies Limited. **This is indicative only and based on a 2-person household with multiple devices and simultaneous usage. Broadband performance is affected by multiple factors including number of occupants and devices, simultaneous usage, router range etc. For more information speak to your broadband provider.
Map data ©OpenStreetMap contributors.





