
Somerden Green, Chiddingstone

- PROPERTY TYPE
Detached
- BEDROOMS
8
- BATHROOMS
5
- SIZE
3,227 sq ft
300 sq m
- TENUREDescribes how you own a property. There are different types of tenure - freehold, leasehold, and commonhold.Read more about tenure in our glossary page.
Freehold
Key features
- Delightful Grade II Listed Rural Property
- Glorious Uninterrupted Rural Views & Walkable to Chiddingstone School
- Stunning Green Oak Extension & Bespoke Kitchen by Woodworks
- Three Reception Rooms & Two Bath/Shower Rooms
- Four Double Bedrooms & Guest Bedroom with En-Suite Shower Room
- Vaulted Ceilings & Abundance of Period Features & Beams
- Beautifully Landscaped Gardens
- Green Oak Garden Gazebo
- Detached Timber Garage, Block Paved & Gravel Parking Areas
- Four Bedroom Barn Conversion, Parking, Garage & Garden
Description
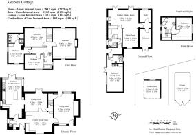
Accommodation - •As soon as you enter into the entrance hall you are struck by the character of this delightful home, there is a modern cloakroom, and the space opens up into the snug/television room having an aspect to front, abundance of character and beams and original brick flooring.
•Two further receptions rooms, dual aspect sitting room with impressive inglenook fireplace with fireside benches, staircase rising to the first floor, stable door to the terrace, feature oak architrave, leaded light casement windows and original front door. Formal dining room with French doors also opening to the terrace and open archway leading into the kitchen with limestone flooring. Both rooms enjoy good head height and an enviable outlook over the gardens and countryside beyond.
•Stunning Green Oak kitchen extension, kitchen by Woodworks fitted with a comprehensive range of bespoke solid wood in-frame wall mounted cabinets and base units of cupboards and drawers with complementing quartz worktops and upstands, contrasting island unit and smart limestone flooring. Appliances include an electric AGA, Neff oven with induction hob, integral dishwasher, microwave and space for an American style fridge/freezer. Cupboard housing Grant oil fired boiler.
•On the first floor the character and charm continue, the stunning dual aspect master bedroom has an impressive, vaulted ceiling with beams, fireplace with wood burning stove, mezzanine area and solid oak timber flooring. Dual aspect guest suite extension with contemporary en-suite shower room and two further double bedrooms, both with mezzanine area, one with original crown-post, both enjoying an aspect to rear with far reaching views.
•A contemporary family bathroom fitted with a white suite comprising panelled bath with shower over and glazed screen, close coupled toilet and stand basin, finished with travertine wall and floor tiling, completes the first floor accommodation.
•The beautifully landscaped gardens have taken inspiration from an award winning Chelsea garden designer. Predominately laid to lawn, lined with mature trees and soft cottage style planting adding colour and texture to the borders. Raised Indian stone and herringbone brick terrace with Green Oak gazebo adorned with roses creates a perfect outdoor oasis for relaxing, entertaining or enjoying the sun setting over the surrounding countryside.
•Detached four bedroom barn conversion, a highly versatile addition which could be utilised as a rental or Airbnb for additional income or multi-generational living as an annexe for elderly parents or teenagers. Private parking area, courtyard garden, raised decked terrace and private area of garden.
•Services & Points of Note: Mains electricity and water. Oil fired central heating to main house, Grant boiler sited in the kitchen. Barn having air conditioning and wall mounted electric heaters. Private drainage, Titan sewage treatment plant, serving both properties. Alarm system. EV Charger point for barn. Screened oil tank. Area of front garden on a separate title and further leased area on a peppercorn rent. Informal arrangement towards the upkeep of the lane typically approximately £400 per annum.
•Council Tax: G – Sevenoaks District Council.
•EPC: House - Exempt – Grade II Listed.
•EPC: Barn: D
Situation - Keepers Cottage and Barn are situated within the High Weald Area of Outstanding Natural Beauty, on the outskirts and within walking distance of the historic National Trust village of Chiddingstone providing sought after Church of England Primary school, Tulip Tree tea rooms, village shop, St Mary the Virgin Church and historic Chiddingstone Castle, as well The Castle Inn, serving locally brewed beer.
Nearby Chiddingstone Causeway also provides local amenities including shop and Post Office, church, village hall, the popular Little Brown Jug Public House and Penshurst Railway Station (Tonbridge/Redhill Line).
The larger towns of Edenbridge, Sevenoaks, Tonbridge and Tunbridge Wells all provide a broader range of amenities, including shops and restaurants. Commuter train services can be accessed at Hildenborough, Sevenoaks and Tonbridge for services to London Charing Cross/Canon Street and Edenbridge for services on the Victoria Line. Conveniently, the A21 and M25 are easily accessible, offering routes to Gatwick and Heathrow Airports, Channel Tunnel and Bluewater shopping centre.
Well regarded schools include Chiddingstone, Four Elms and Leigh primary schools. Grammar schools for both boys and girls in Tonbridge and Tunbridge Wells with annexes in Sevenoaks. Tonbridge and Sevenoaks Public Schools and several Preparatory Schools.
Leisure facilities include golf courses at Hever and Nizels with private health and fitness centre and sailing on Bough Beech Reservoir. Within the vicinity there are many historical properties including Chiddingstone & Hever Castles, Chartwell and Knole Park.
Brochures
Keepers Cottage & Barn £1,975,000 2025.pdf- COUNCIL TAXA payment made to your local authority in order to pay for local services like schools, libraries, and refuse collection. The amount you pay depends on the value of the property.Read more about council Tax in our glossary page.
- Band: G
- PARKINGDetails of how and where vehicles can be parked, and any associated costs.Read more about parking in our glossary page.
- Driveway
- GARDENA property has access to an outdoor space, which could be private or shared.
- Yes
- ACCESSIBILITYHow a property has been adapted to meet the needs of vulnerable or disabled individuals.Read more about accessibility in our glossary page.
- Ask agent
Energy performance certificate - ask agent
Somerden Green, Chiddingstone
Add an important place to see how long it'd take to get there from our property listings.
__mins driving to your place
Get an instant, personalised result:
- Show sellers you’re serious
- Secure viewings faster with agents
- No impact on your credit score



Your mortgage
Notes
Staying secure when looking for property
Ensure you're up to date with our latest advice on how to avoid fraud or scams when looking for property online.
Visit our security centre to find out moreDisclaimer - Property reference 33983913. The information displayed about this property comprises a property advertisement. Rightmove.co.uk makes no warranty as to the accuracy or completeness of the advertisement or any linked or associated information, and Rightmove has no control over the content. This property advertisement does not constitute property particulars. The information is provided and maintained by James Millard Estate Agents, Hildenborough. Please contact the selling agent or developer directly to obtain any information which may be available under the terms of The Energy Performance of Buildings (Certificates and Inspections) (England and Wales) Regulations 2007 or the Home Report if in relation to a residential property in Scotland.
*This is the average speed from the provider with the fastest broadband package available at this postcode. The average speed displayed is based on the download speeds of at least 50% of customers at peak time (8pm to 10pm). Fibre/cable services at the postcode are subject to availability and may differ between properties within a postcode. Speeds can be affected by a range of technical and environmental factors. The speed at the property may be lower than that listed above. You can check the estimated speed and confirm availability to a property prior to purchasing on the broadband provider's website. Providers may increase charges. The information is provided and maintained by Decision Technologies Limited. **This is indicative only and based on a 2-person household with multiple devices and simultaneous usage. Broadband performance is affected by multiple factors including number of occupants and devices, simultaneous usage, router range etc. For more information speak to your broadband provider.
Map data ©OpenStreetMap contributors.





