Light industrial facility for sale
Phase 2, Celsius Parc , Cupola Way, Foxhills Industrial Estate , Scunthorpe , North Lincolnshire , DN15
- SIZE AVAILABLE
17,012 sq ft
1,580 sq m
- SECTOR
Light industrial facility for sale
Key features
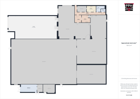
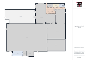
- Detached industrial premises of 1,581 sq m (17,012 sq ft) approx.
- Site Area of 0.641 hectares (1.584 acres) approx.
- Well established industrial location with 24/7 security, including CCTV.
- PV panels located on the roof providing 164.16 kWh and a large power supply of 600KVA.
Description
The accommodation is presently sub-divided to provide a warehouse/production area with adjoining areas which could be incorporated to provide a larger area, if required, together with dispatch/loading area, with an automated dock level access door, together with two ground level access doors. There are good quality ancillary offices, kitchen, staff changing and WC's, including a shower. The property further benefits from comprehensive fire/security alarms, PV solar panels to the roof and a large 600KVA electrical supply. There is a large plant room to the side elevation together with an EV charger.
Externally, the property benefits from extensive on-site parking and servicing to the front and side of the property with access via double gates and a secure palisade fenced perimeter boundary to the property with outside lighting.
Energy Performance Certificates
EPC CertificateBrochures
Phase 2, Celsius Parc , Cupola Way, Foxhills Industrial Estate , Scunthorpe , North Lincolnshire , DN15
NEAREST STATIONS
Distances are straight line measurements from the centre of the postcode- Scunthorpe Station1.8 miles
- Althorpe Station3.7 miles
Notes
Disclaimer - Property reference 23031FH. The information displayed about this property comprises a property advertisement. Rightmove.co.uk makes no warranty as to the accuracy or completeness of the advertisement or any linked or associated information, and Rightmove has no control over the content. This property advertisement does not constitute property particulars. The information is provided and maintained by PPH Commercial Limited, Scunthorpe. Please contact the selling agent or developer directly to obtain any information which may be available under the terms of The Energy Performance of Buildings (Certificates and Inspections) (England and Wales) Regulations 2007 or the Home Report if in relation to a residential property in Scotland.
Map data ©OpenStreetMap contributors.





