3 bedroom terraced house for sale
Yeading Avenue,Harrow,HA2 9RH

- PROPERTY TYPE
Terraced
- BEDROOMS
3
- SIZE
Ask agent
- TENUREDescribes how you own a property. There are different types of tenure - freehold, leasehold, and commonhold.Read more about tenure in our glossary page.
Freehold
Key features
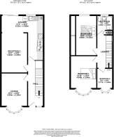
- Three Bed Property
- Mid terace House
- family bathroom
- Fitted Kitchen
- Two Large Reception Area
- Walking Distance To Met/Piccadilly Line
- Potential To Extend Further STPP
- Large Private Rear Garden
Description
Situated close to excellent transport links, local schools, shops, and amenities, this home is a great opportunity for those looking to settle in a vibrant and well-connected community.
For more information and viewings call our dedicated sales team today.
Address: Yeading Avenue, Rayners Lane, Harrow, HA2 9RH Guide Price: £ 530,000 // Tenure : Freehold // Chain Free // Blank Canvas // Investment Potential
Council Tax Band: D (Harrow London Borough Council)
EPC Rating: D
DISCLAIMER: Property Hub does make sure the details are given in the property particular and the advertisement are as accurate as possible, however, we urge the buyer or associated parties come to know about any details that are not correct, wrong, or inaccurate including photos and description please let our agency know as soon as possible. Property Hub will not warranty or guarantee the appliance, chattels, or fixture and fitting that may come with property sales. The properties are generally sold as seen, however, we strongly suggest the buyer/seller observe and check the property fixture & fitting Forms (TA10), along with the property information Form (TA06) as well as the Leasehold Information Form ( TA07). This property advertisement does not constitute property particulars, your conveyancer should check the papers of the sale, title, and other property-related matters thoroughly and advise you before you exchange the property and complete the sale. We strongly suggest you should conduct the full survey of the property to secure your best interest and the surveyor must be a member of the Royal Institute of Charter Surveyors (RICS).
- COUNCIL TAXA payment made to your local authority in order to pay for local services like schools, libraries, and refuse collection. The amount you pay depends on the value of the property.Read more about council Tax in our glossary page.
- Band: D
- PARKINGDetails of how and where vehicles can be parked, and any associated costs.Read more about parking in our glossary page.
- Garage
- GARDENA property has access to an outdoor space, which could be private or shared.
- Yes
- ACCESSIBILITYHow a property has been adapted to meet the needs of vulnerable or disabled individuals.Read more about accessibility in our glossary page.
- Ask agent
Yeading Avenue,Harrow,HA2 9RH
Add an important place to see how long it'd take to get there from our property listings.
__mins driving to your place
Get an instant, personalised result:
- Show sellers you’re serious
- Secure viewings faster with agents
- No impact on your credit score
Your mortgage
Notes
Staying secure when looking for property
Ensure you're up to date with our latest advice on how to avoid fraud or scams when looking for property online.
Visit our security centre to find out moreDisclaimer - Property reference 103231003401. The information displayed about this property comprises a property advertisement. Rightmove.co.uk makes no warranty as to the accuracy or completeness of the advertisement or any linked or associated information, and Rightmove has no control over the content. This property advertisement does not constitute property particulars. The information is provided and maintained by Property Hub, Wembley. Please contact the selling agent or developer directly to obtain any information which may be available under the terms of The Energy Performance of Buildings (Certificates and Inspections) (England and Wales) Regulations 2007 or the Home Report if in relation to a residential property in Scotland.
*This is the average speed from the provider with the fastest broadband package available at this postcode. The average speed displayed is based on the download speeds of at least 50% of customers at peak time (8pm to 10pm). Fibre/cable services at the postcode are subject to availability and may differ between properties within a postcode. Speeds can be affected by a range of technical and environmental factors. The speed at the property may be lower than that listed above. You can check the estimated speed and confirm availability to a property prior to purchasing on the broadband provider's website. Providers may increase charges. The information is provided and maintained by Decision Technologies Limited. **This is indicative only and based on a 2-person household with multiple devices and simultaneous usage. Broadband performance is affected by multiple factors including number of occupants and devices, simultaneous usage, router range etc. For more information speak to your broadband provider.
Map data ©OpenStreetMap contributors.





