3 bedroom house for sale
St. Harmon, Rhayader

- PROPERTY TYPE
House
- BEDROOMS
3
- BATHROOMS
2
- SIZE
Ask agent
- TENUREDescribes how you own a property. There are different types of tenure - freehold, leasehold, and commonhold.Read more about tenure in our glossary page.
Freehold
Description
The house would benefit from some internal upgrading but offers prospective purchasers with the option to purchase a delightful family home in an enviable location.
* Entrance Hallway * Lounge * Siting Room/Dining Room * Kitchen * Pantry * Bathroom *
* Three Bedrooms * First Floor WC * Outside WC * Garden Shed *EPC Rating E *
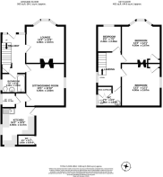
Accommodation Comprises: -
Covered Entrance - With attractive brick archway.
UPVC entrance door with obscure glazed side panels opens in to the:
Entrance Hall - Picture rail. Fitted carpet. Radiator.
Original pine panelled staircase with cupboard under.
Lounge - Fireplace with open firegrate and having tiled hearth and back plate with wood mantel surround.
Picture rail, fitted carpet, radiator.
Large bay window to front with rural views.
Sitting/Dining Room - Attractive original in-built open fire with adjacent oven, having slate fire surround. Built-in cupboard with shelving over in alcove,
Picture rail, radiator, large window to side overlooking the garden.
Kitchen - Range of base and wall units with worktops and tiled splashbacks.
Single drainer inlaid sink, electric cooker, washing machine.
Radiator. Window to each side and rear, and glazed external door to the garden.
Walk-In Pantry - Walk-in Pantry with shelving and window to side.
Bathroom - Panelled bath with tiled surround, electric shower heater and glass shower screen.
Pedestal wash hand basin. WC suite.
Quarry tiled floor, radiator, window to side.
First Floor - A balustraded staircase rises to the First Floor.
Galleried Landing - Fitted carpet, window to side, access-hatch to roof space.
Bedroom 1 - Large bay window overlooking adjoining countryside.
Tiled fireplace (currently blanked off). Picture rail. Built-in wardrobe with hooks.
Carpet. Radiator.
Bedroom 2 - Large window overlooking side countryside.
Tiled fireplace with open firegrate. Built-in wardrobe with hooks.
Carpet. Radiator. Picture Rail.
Bedroom 3 - Picture rail, carpet, radiator.
Window to front.
First Floor Wc - Dual flush WC suite, pedestal wash hand basin with tiled splashback.
Airing cupboard with batten shelving.
Vinyl floor. Window to side.
Local Area - Rhayader is a friendly market town ( situated in the beautiful upper Wye Valley.
The town, which is the first on the River Wye, has a good range of local facilities such as supermarkets, butcher, grocer, delicatessen, chemist, doctor’s surgery, primary school and well equipped leisure centre with two squash courts, gym, swimming pool and jacuzzi.
A wider range of facilities including secondary schools is available at Llandrindod Wells (11 miles), Builth Wells (13 miles) and Llanidloes (14 miles) respectively.
The noted Elan Valley ( with its wonderful lakes, reservoirs, dams, mountains and open hills is about 4 miles to the west.
The west Wales coast and university town of Aberystwyth is 34 miles distant. The nearest railway station, on the Heart of Wales line, is located at Llandrindod Wells.
Excellent road links are afforded by the main north-south road A470, and the east-west A44.
Viewing Arrangements - Viewings are strictly through the Sole Agents, Clare Evans & Co tel
The Property Ombudsman - Clare Evans & Co is a member of The Property Ombudsman Estate Agents Scheme and therefore adhere to their Code of Practice. A copy of the Code of Practice is available in the office and on request. Clare Evans & Co's complaints procedure is also available on request.
Council Tax - We are advised that the property is in Council Tax Band ''
Local Authority - Powys County Council. Tel No:
Flood Risk (From Nrw) - Flooding from rivers:
VERY LOW RISK Risk less than 0.1% chance each year
Flooding from the sea:
VERY LOW RISK Risk less than 0.1% chance each year
Flooding from surface water and small watercourses
Risk greater than 3.3% chance each year.
Broadband Speed - To check the potential broadband speed please consult:
Important Notice - These particulars are offered on the understanding that all negotiations are conducted through this company. Neither these particulars, nor oral representations, form part of any offer or contract and their accuracy cannot be guaranteed. Any floor plan provided is for representation purposes only, as defined by the RICS Code of Measuring Practice and whilst every attempt has been made to ensure their accuracy the measurements of windows, doors and rooms are approximate and should be used as such by prospective purchasers. Any services, systems and appliances mentioned have not been tested by us and we cannot verify that they are in working order. All photographs remain the copyright of Clare Evans & Co.
Please Note - The access to the property is through the front boundary hedge.
Pma Reference - 24069225
Brochures
St. Harmon, RhayaderBrochure- COUNCIL TAXA payment made to your local authority in order to pay for local services like schools, libraries, and refuse collection. The amount you pay depends on the value of the property.Read more about council Tax in our glossary page.
- Band: D
- PARKINGDetails of how and where vehicles can be parked, and any associated costs.Read more about parking in our glossary page.
- Yes
- GARDENA property has access to an outdoor space, which could be private or shared.
- Yes
- ACCESSIBILITYHow a property has been adapted to meet the needs of vulnerable or disabled individuals.Read more about accessibility in our glossary page.
- Ask agent
St. Harmon, Rhayader
Add an important place to see how long it'd take to get there from our property listings.
__mins driving to your place
Get an instant, personalised result:
- Show sellers you’re serious
- Secure viewings faster with agents
- No impact on your credit score
Your mortgage
Notes
Staying secure when looking for property
Ensure you're up to date with our latest advice on how to avoid fraud or scams when looking for property online.
Visit our security centre to find out moreDisclaimer - Property reference 33986428. The information displayed about this property comprises a property advertisement. Rightmove.co.uk makes no warranty as to the accuracy or completeness of the advertisement or any linked or associated information, and Rightmove has no control over the content. This property advertisement does not constitute property particulars. The information is provided and maintained by Clare Evans & Co, Rhayader. Please contact the selling agent or developer directly to obtain any information which may be available under the terms of The Energy Performance of Buildings (Certificates and Inspections) (England and Wales) Regulations 2007 or the Home Report if in relation to a residential property in Scotland.
*This is the average speed from the provider with the fastest broadband package available at this postcode. The average speed displayed is based on the download speeds of at least 50% of customers at peak time (8pm to 10pm). Fibre/cable services at the postcode are subject to availability and may differ between properties within a postcode. Speeds can be affected by a range of technical and environmental factors. The speed at the property may be lower than that listed above. You can check the estimated speed and confirm availability to a property prior to purchasing on the broadband provider's website. Providers may increase charges. The information is provided and maintained by Decision Technologies Limited. **This is indicative only and based on a 2-person household with multiple devices and simultaneous usage. Broadband performance is affected by multiple factors including number of occupants and devices, simultaneous usage, router range etc. For more information speak to your broadband provider.
Map data ©OpenStreetMap contributors.




