Plot for sale
Borrowdale Plot, Keltybridge, KY4
- PROPERTY TYPE
Plot
- BEDROOMS
4
- BATHROOMS
2
- SIZE
Ask agent
Key features
- Building Plot of 775sqm
- Full Planning Consent - 23/01695/FLL
- Planning Permission for 4 Bedroom Detached Bungalow
- Village Location with Aspects towards Benarty Hill
- Close to All Amenities & Motorway Access
Description
An outstanding opportunity to develop a Building Plot with Full Planning Permission for a Detached Bungalow. The development is set on a large plot of approximately 775sqm and situated in a sought after residential location on the edge of the village of Keltybridge. The property will offer countryside living while being within easy reach of the main motorway networks and local amenities.
Details of the full planning permission are available on the Perth & Kinross Council planning website using reference 23/01695/FLL
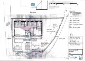
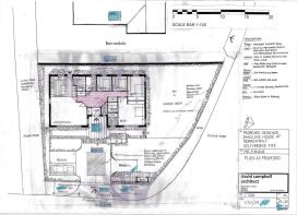
Proposed Layout - The proposed layout indicates the following: Entrance Vestibule, Reception Hallway, WC/Cloakroom, Open Plan Sitting/Dining Room/Kitchen, Utility Room, Master Bedroom with En Suite & Dressing Room, 3 further Bedrooms and Family Bathroom.
Viewing is highly recommended.
Accommodation
Entrance Vestibule
Entry from the front into the entrance vestibule. Storage cupboard.
Reception Hallway
Reception hallway providing access to the open plan kitchen/sitting/dining room, utility room, wc/cloakroom, 2 storage cupboards, 4 bedrooms and bathroom.
Open Plan Kitchen/Sitting/Dining Room
Large open plan kitchen/dining/sitting room.
Utility Room
Utility Room to the rear accessed via the kitchen.
Master Bedroom
Master bedroom to the front with access to the en suite and dressing room.
Bedroom 2
Bedroom to the rear.
Bedroom 3
Bedroom to the rear.
Bedroom 4
Bedroom to the rear.
Bathroom
Bathroom to the rear.
Gardens
Gardens to the front and side.
Parking
Driveway parking for 3 vehicles.
Brochures
Brochure 1Borrowdale Plot, Keltybridge, KY4
NEAREST STATIONS
Distances are straight line measurements from the centre of the postcode- Cowdenbeath Station2.8 miles
- Lochgelly Station3.0 miles
- Dunfermline Queen Margaret Station4.6 miles
Notes
Disclaimer - Property reference 29170500. The information displayed about this property comprises a property advertisement. Rightmove.co.uk makes no warranty as to the accuracy or completeness of the advertisement or any linked or associated information, and Rightmove has no control over the content. This property advertisement does not constitute property particulars. The information is provided and maintained by Andersons Solicitors, Kinross. Please contact the selling agent or developer directly to obtain any information which may be available under the terms of The Energy Performance of Buildings (Certificates and Inspections) (England and Wales) Regulations 2007 or the Home Report if in relation to a residential property in Scotland.
Map data ©OpenStreetMap contributors.







